Схема отопления 2-х этажного частного дома. Подключение радиаторов, однотрубные и двухтрубные системы
- Схема отопления 2-х этажного частного дома. Подключение радиаторов, однотрубные и двухтрубные системы
- Отопление двухэтажного дома двухконтурным котлом. Чем отличается двухконтурный котел
- Схема отопления двухэтажного дома с настенным газовым котлом. Виды отопительных систем
- Как развести отопление на два контура. Какую разводку отопительной сети выбрать?
- Однотрубная система отопления 2-х этажного дома. Одна магистраль: плюсы и минусы
- Отопление 2-этажного дома без насоса. Виды конструкций
Схема отопления 2-х этажного частного дома. Подключение радиаторов, однотрубные и двухтрубные системы

В двухтрубной системе отопления, в отличии от однотрубной, все радиаторы имеют одинаковую температуру и равномерно отапливают дом.
Проектирование отопления частного двухэтажного дома заставляет подумать над вопросом выбора однотрубной или двухтрубной схемы. Однотрубные системы проще в монтаже, но они обладают одним важным недостатком – температура теплоносителя в последнем радиаторе будет очень низкой, поэтому самая дальняя от котла комната будет холодной, а это очень плохо.
В однотрубных системах радиаторы подключаются по нижней схеме, когда теплоноситель заходит с одного бока, а уходит с другого бока. Если дом не очень большой, а вы хотите сэкономить и проложить однотрубную систему, мы рекомендуем схему подключения «ленинградка» - она предполагает создание перемычки между входом и выходом. В результате часть горячего теплоносителя потечет по перемычке дальше, а часть направится в радиатор. Благодаря этому тепло будет распределяться более равномерно.
Схема самотечной системы отопления двухэтажного частного дома, с использованием однотрубной системы, может включать в себя применение циркуляционного насоса. В результате мы получим достаточно эффективное однотрубное отопление с равномерным распределением тепла. Можно пойти еще дальше, применив «ленинградку» и циркуляционный насос одновременно.
Проекты отопления частного двухэтажного дома чаще всего предусматривают создание двухтрубных систем с диагональным или боковым подключением радиаторов. Улучшенная схема и вовсе предусматривает раздельную подачу нагретого теплоносителя на первый и второй этаж, без обхода двух этажей сразу. Также она включает в себя установку фурнитуры для возможного отключения радиаторов отопительной системы – за счет этого реализуется возможность индивидуальной регулировки температуры в отдельных комнатах.
Отопление двухэтажного дома двухконтурным котлом. Чем отличается двухконтурный котел
Принципиальное отличие от одноконтурных аналогов — лишь в том, что тепло сгорания топлива может быть использовано не только для поддержания температуры теплоносителя в контуре отопления, но и для нагрева горячей воды для хознужд.
Уточнение: одноконтурные котлы тоже могут использоваться для нагрева воды в накопительной емкости путем косвенного нагрева — когда теплоноситель отдает часть своего тепла, проходя через вторичный теплообменник внутри теплоизолированной емкости. Ключевое отличие двухконтурного котла — в непосредственной передаче тепловой энергии от сгорающего топлива горячей воде.
Технические детали того, как реализована передача тепла в разных моделях котлов, нам не очень интересны. С точки зрения проектирования отопительной системы важна лишь одна особенность двухконтурного котла: когда расходуется горячая вода, теплоноситель перестает нагреваться.
Что это означает в практическом плане?
Для хорошо утепленных домов большой площади режим работы котла неважен вообще. Схема отопления с двухконтурным котлом будет точно такой же, как с одноконтурным. Дело в том, что дом имеет тепловую инерционность, и весьма большую.
Даже если котел будет в течение двух часов работать только на нагрев горячей воды (что в реальной жизни бывает крайне редко), температура в помещении изменится максимум на один-два градуса.
Если частный дом имеет небольшой объем внутренних помещений и/или плохо утеплен, становится важной тепловая инерционность системы отопления. Сами радиаторы и теплоноситель в контуре должны остывать по возможности долго
Результат достигается подбором радиаторов с большим внутренним объемом и увеличенным диаметром труб контура отопления.Наконец, если в силу каких-то причин планируется ОЧЕНЬ объемный и длительный расход горячей воды — от самой идеи двухконтурного котла лучше отказаться в пользу комбинации одноконтурного и нагревательной колонки. Никакая схема отопления не сможет обеспечить постоянную температуру в доме, если большую часть суток теплоноситель не нагревается.
Котел греет или теплоноситель, или горячую воду. Одновременная работа двух контуров невозможна.
Еще на один важный момент, вероятно, стоит обратить внимание. Систему с естественной циркуляцией проектировать с двухконтурным котлом не стоит
Почему?
После прекращения нагрева теплоносителя циркуляция в системе отопления очень быстро остановится. Ее возобновление займет весьма продолжительное время; в процессе повторного прогрева радиаторы в контуре будут нагреты очень неравномерно. Несколько таких циклов в течение дня сделают распределение температур в доме просто некомфортным.
Впрочем, ситуация изначально несколько надуманная просто потому, что большая часть современных двухконтурных котлов комплектуется циркуляционными насосами.
Однако: при проектировании системы отопления для одноэтажного дома не будет лишним заложить в проект возможность работы отопления за счет естественной циркуляции. Просто на случай длительного отключения электричества.
Схема отопления двухэтажного дома с настенным газовым котлом. Виды отопительных систем
Практика показывает, что большинство домовладельцев выдвигает к системе отопления двухэтажного дома 3 основных требования:
- В доме всегда должно быть тепло.
- Минимальный расход энергоносителей – природного газа, дров, электричества и так далее.
- Красота. Трубы, арматуру и приборы обогрева желательно убрать с глаз, чтобы не портили интерьер.
Требования перечислены в порядке важности с точки зрения пользователей. О стоимости монтажа мы поговорим в процессе рассмотрения систем.

Пожелания вполне понятны, но их следует увязать с техническими возможностями. Например, в отдаленных регионах случаются перебои с подачей электроэнергии либо отсутствует магистральный газ. Отсюда совет: сначала определите основное топливо и резервный энергоноситель, подберите котел и отопительные приборы . Отразите пожелания на бумаге – набросайте своими руками черновой проект.
Далеко не всегда хозяин дома может сам обустраивать инженерные сети – разрабатывать схемы, монтировать оборудование и трубы. В таком случае есть смысл обратиться к специалистам инженерной фирмы, которая занимается перечисленными работами. Например, в центральном регионе РФ услуги по установке котлов и монтажу систем отопления оказывает компания «ТеплоМосква».
Такой основательный подход позволит смонтировать схему отопления двухэтажного дома, которую не придется переделывать впоследствии. На выбор есть 5 вариантов систем:
- самотечная (она же – гравитационная и конвекционная);
- однотрубная;
- двухтрубная;
- лучевая (иначе – коллекторная);
- водяные контуры напольного обогрева, называемые теплыми полами.
Примечание. Первая схема подразумевает естественную циркуляцию теплоносителя по трубам и сообщающийся с атмосферой расширительный бак. В остальных реализован принцип принудительной циркуляции с помощью насоса и работа под давлением (используется закрытый мембранный бачок).

Пример чернового проекта отопления 2-этажного особняка
Указанные системы допускается комбинировать друг с другом. К примеру, на первом этаже сделать теплые полы, а на втором собрать лучевую схему. Теперь подробно рассмотрим каждый вариант по отдельности.
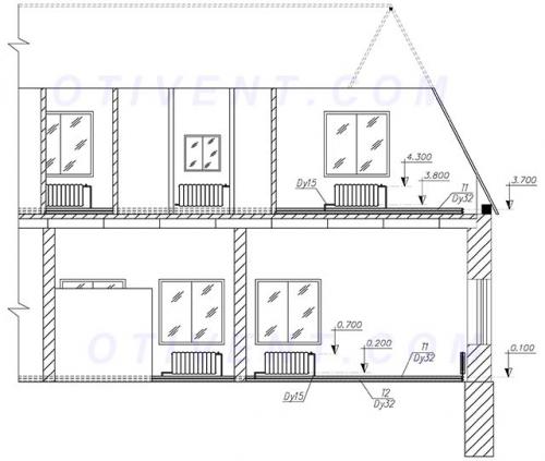
Как развести отопление на два контура. Какую разводку отопительной сети выбрать?
В зависимости от расположения подающего трубопровода двухтрубное отопление классифицируется на две разновидности – с верхней и нижней разводкой.
Схема двухтрубной системы отопления с верхней разводкой предполагает монтаж расширительного бака и разводящей магистрали в наивысшей точке отопительного контура, над радиаторами. Такую укладку невозможно выполнить в одноэтажном здании с плоской крышей, поскольку для размещения коммуникаций потребуется утепленный чердак либо специально отведенная комнатка на втором этаже двухэтажного дома.
Система с нижней разводкой
Двухтрубная система отопления с нижней разводкой отличается от верхней тем, что разводящий трубопровод в ней расположен в подвальном помещении либо в подпольной нише, под радиаторами. Крайним контуром отопления является труба обратки, которая устанавливается на 20-30 см ниже, чем подающая линия.
Это более сложная конфигурация, требующая подключения верхней воздушной трубы, по которой будут выводится излишки воздуха из радиаторов. При отсутствии подвального помещения дополнительные проблемы могут возникнуть из-за необходимости установки котла ниже уровня радиаторов.
Система с верхней разводкой
Как нижняя, так и верхняя схема двухтрубной системы отопления могут выполняться в горизонтальной либо вертикальной конфигурации. Однако вертикальные сети, как правило, выполняются с нижней разводкой. При таком монтаже нет необходимости устанавливать мощный насос для принудительной циркуляции, поскольку из-за разницы между температурами в трубе обратки и подачи создается сильный перепад давления, увеличивающий скорость движения теплоносителя. Если же ввиду особенностей планировки здания такую укладку сделать невозможно, обустраивается магистраль с верхней разводкой.
Выбор диаметра труб и правила монтажа двухтрубной сети
Монтируя двухтрубное отопление крайне важно выбрать правильный диаметр труб, в противном случае вы можете получить неравномерный прогрев удаленных от котла радиаторов. У большей части котлов для бытовой эксплуатации диаметр подающего и обратного патрубка равен 25 либо 32 мм, что подходит для двухтрубной конфигурации
Если же вы имеете котел с патрубками 20 мм, лучше остановиться на однотрубной системе отопления.
Размерная сетка представленных на рынке полимерных труб состоит из диаметров 16, 20, 25 и 32 мм. Выполнять монтаж системы своими руками нужно с учетом ключевого правила: первая секция разводящей трубы должна соответствовать диаметру патрубков котла, а каждый последующий участок трубы после тройника ответвления на радиатор – на один типоразмер меньше.
Схема диаметров труб в двухконтурной системе
На практике это выглядит следующим образом – с котла выходит диаметр 32 мм, через тройник к нему трубой 16 мм подключен радиатор, далее после тройника диаметр подающей магистрали уменьшается до 25 мм, на следующем отводе к радиатору линии 16 мм после тройника диаметр уменьшается до 20 мм и так далее. Если же количество радиаторов больше, чем типоразмеров труб, необходимо разделять подающую магистраль на два плеча.
Выполняя монтаж системы своими руками придерживайтесь следующих рекомендаций:
- подающая и обратная магистраль должны располагаться параллельно друг другу;
- каждый отвод на радиатор необходимо оснастить запорным краном;
- распределительный бак, в случае его установки в чердачном помещении при монтаже сети с верхней разводкой, необходимо утеплять;
- крепление труб на стенах должно размещаться с шагом не более 60 см.
Обустраивая систему с принудительной циркуляцией важно правильно подобрать мощность циркуляционного насоса. Конкретный выбор делается исходя из размеров здания:
- для домов площадью до 250 м2 достаточно насоса мощностью 3.5 м3/час и напором в 0.4 МПа;
- 250-350 м2 – мощность от 4.5 м3/час, напор 0.6 МПа;
- свыше 350 м2 – мощность от 11 м3/час, напор от 0.8 МПа.
Несмотря на то, что двухтрубное отопление своими руками устанавливать сложнее, чем однотрубную сеть, такая система благодаря высокой надежности и КПД полностью оправдывает себя в процессе эксплуатации.
Однотрубная система отопления 2-х этажного дома. Одна магистраль: плюсы и минусы
Однотрубная система отопления двухэтажного дома — схема «ленинградка» — состоит из одной магистрали, проложенной по периметру здания горизонтально, над полом каждого этажа. Отопительные приборы подсоединяются к магистрали 2 концами, поочередно. Эта разновидность тепловой сети хорошо подходит для домов, где два этажа занимают небольшую площадь (до 80 м² каждый). Этому есть причины:
- Теплоноситель, поступающий в каждый последующий радиатор, имеет все более низкую температуру из-за подмешивания охлажденной воды из предыдущих батарей. Поэтому протяженность кольца ограничена 4-5 отопительными приборами.
- Чтобы хорошо обогревать второй этаж и комнаты, где стоят последние по счету батареи, их теплоотдачу следует увеличить путем добора секций.
- Горизонтальная сеть двухэтажного дома с естественной циркуляцией должна выполняться с большим уклоном (до 1 см на 1 м погонный трубы). Котел ставится в углублении, а на чердаке располагается расширительный бак, сообщающийся с атмосферой.
Ленинградская разводка отопления двухэтажного дома с принудительной подачей теплоносителя работает гораздо стабильнее и эффективнее, чем методом самотека. Для естественной циркуляции в частном доме лучше сделать вертикальные стояки, пронизывающие перекрытия и раздающие тепло радиаторам у окон. Подача воды в стояки осуществляется от горизонтального коллектора, проложенного в чердачном помещении, возврат в котел — по такой же магистрали, идущей над полом 1 этажа.
Как и в первом случае, открытый расширительный бак ставится на чердаке 2-этажного коттеджа, а магистрали прокладываются с уклоном. Если система отопления закрытая, то уклоны требуются минимальные (3 мм на погонный метр трубы), а мембранный бачок ставится в котельной.
Однотрубные разводки отопления двухэтажного дома хоть и недороги в монтаже, но сложны в расчете и исполнении.
Да и не всякому хозяину понравится, когда по части помещений проходят трубопроводы большого диаметра, их приходится прятать под короба.
Отопление 2-этажного дома без насоса. Виды конструкций
Контур отопления — это совокупность элементов, предназначенных для обогревания жилища путём передачи тепла воздуху. Наиболее распространённым видом отопления является система, использующая в качестве источника нагрева котлы или бойлеры, подключённые к водопроводу. Вода, проходя через нагреватель, достигает определённой температуры, а после направляется в отопительный контур.
В системах с теплоносителем, в качестве которого используется вода, циркуляция может быть организована двумя путями:
- естественным;
- принудительным.
Контура с естественным движением воды просты и надёжны, но для их эффективного использования нужна правильно построенная система. Для второго же способа используется насосное оборудование, которое, создавая давление, заставляет воду перемещаться.
В качестве источника тепла, служащего для нагревания воды, используются котлы (бойлеры). Их принцип действия основан на превращении определённого для них рода энергии в тепло с последующей его передачей теплоносителю. По типу источника нагрева котельное оборудование бывает газовым, твердотопливным, электрическим или мазутным.
Любой из этих видов котлов может использоваться в системе отопления частного дома без насоса, но наиболее популярным является газовый и твердотопливный.
По типу соединения элементов контура система отопления может быть однотрубной или двухтрубной . Если все приборы контура включены относительно друг друга последовательно, то есть теплоноситель проходит по порядку все элементы и возвращается в котёл, то такая система называется однотрубной. Её существенным недостатком является неравномерность прогрева. Это связано с тем, что на каждом элементе происходит потеря какого-то количества тепла, поэтому разница температур котла может быть существенной.
Система двухтрубного типа подразумевает параллельное подключение радиаторов к стояку. К недостаткам такого подключения относят осложнение конструкции и увеличенный в два раза расход материала по сравнению с однотрубной системой. Но построение контура обогрева для больших многоэтажных помещений выполняется только таким соединением.