Как правильно соединить между собой радиаторы отопления. Критерии выбора схемы
- Как правильно соединить между собой радиаторы отопления. Критерии выбора схемы
- Ключ для соединения радиаторов. Радиаторный ключ — виды, размеры, как сделать своими руками
- Как правильно собрать алюминиевый радиатор отопления. Монтаж стальных, алюминиевых и биметаллических радиаторов
- Как соединить радиатор отопления с трубой. Что необходимо для монтажа
- Как правильно подключить радиатор отопления при однотрубной системе. Как правильно подключаются радиаторы отопления при двухтрубной системе: разновидности
- Схемы подключения радиаторов отопления. Устройство радиатора отопления
- Правильное подключение радиаторов отопления. О способах подключения батарей
- Последовательное подключение радиаторов отопления. Способы подключения радиаторов отопления
- Как подключить вторую батарею отопления. Двухтрубный вариант подключения
Как правильно соединить между собой радиаторы отопления. Критерии выбора схемы
К выбору системы теплоснабжения жилого объекта предъявляются большие требования. Критериев, оказывающих влияние на выбор очень много, все могут учесть только специалисты с применением особо сложных инженерных расчетов при выполнении проекта. Для ориентировочного выбора рассматривают главные:
- Назначение и вариант обустройства объекта отопления: сезонного проживания в виде загородных домиков и постоянного в капитальных домах и коттеджах. Легкие конструкции большинства загородных домов, не рассчитаны на сопротивление низким температурам, отапливается такой объект периодически, поэтому батареи в них устраивают калориферного типа, желательно воздушного типа, чтобы они не разморозилисьв отсутствии жителей, иначе говоря, дом «холодный». Для того чтобы построить дом капитальным, потребуется утеплить стены и кровлю. В этом случае надежным вариантом отопления будет водяное двухтрубное отопление с чугунными или биметаллическими радиаторами с автоматическим управлением температурного режима при отсутствии жителей.
- Вторым аспектом подбора схемы является вид топлива, используемого источником отопления: жидкое, твердое и газообразное.Применение солярки и газа позволяет автоматизировать нагрев помещений, а твердого топлива — нет, поскольку процесс горения будет протекать до тех пор, пока не выгорит все топливо.
- Третьим немаловажным фактором для выбора схемы, является вид системы отопления: центральная от котельной или ТЭЦ, индивидуальная для одной многоэтажки или комплекса домов и автономная — обустраивается в отдельном одно-двухэтажном доме или даже в квартире многоквартирного дома не выше 3-х этажей.
- Последующим существенным критерием считается общая стоимость монтажа оборудования, трубопроводов, соединительных деталей и запорно-регулирующейарматуры.
Ключ для соединения радиаторов. Радиаторный ключ — виды, размеры, как сделать своими руками
На практике за долгие годы эксплуатации таких изделий детали креплений под воздействием множества циклов нагрева/охлаждения и в результате реакций с теплоносителем «прикипают» к радиатору и друг к другу, поэтому снимать секции чугунных радиаторов целесообразно только с целью их замены или полного.
Особенности инструмента
Несмотря на многообразие моделей отопительных устройств, все они устроены по схожему принципу. Отдельные секции радиаторов крепятся между собой специальными ниппель-гайками со встречной резьбой.


При этом крепеж расположен глубоко внутри секции, а раскручивание гаек требует значительных физических усилий.

Поэтому для сборки и разборки секций радиаторов отопления применяется специальный инструмент, который в общем случае представляет собой достаточно длинный и прочный отрезок металла цилиндрического сечения с «лопаткой» правильных размеров на рабочем конце.

Классификация
По способу изготовления ключи для радиаторов отопления можно разделить на самодельные и изготавливаемые промышленным способом. Промышленные инструменты часто имеют на себе насечки, соответствующие стандартной длине секции и позволяющие легко осуществлять монтажные работы.

По форме различают прямые и Т-образные ключи. К нерабочему концу Т-образного инструмента присоединен отрезок металлического прута, который используется как рукоятка при вращении ключа. Прямые ключи на нерабочем конце имеют «петельку», применяемую для вставления металлического прута, позволяющего создать рычаг.

По виду радиаторов, для которых возможно применение ключа, они подразделяются на:
- Используемые для современных радиаторов;
- Используемые только для старых чугунных моделей;
- Комбинированные (для монтажа ниппелей всех существующих на сегодня типоразмеров).
Различия по размеру рабочей части
Главным различием между ключами для разных типов радиаторов являются размеры рабочей части. «Лопатка» ключей, применяемых для современных отопительных устройств, рассчитана на ниппели с внутренним диаметром 25 мм и размером резьбы 1 дюйм, поэтому ее длина должна составлять не менее 30 мм, ширина – 23 мм, а толщина – 6 мм.
«Лопатка» для ключа, применяемого для чугунных батарей, рассчитана на ниппели с резьбой в 5/4 дюйма, поэтому должна иметь длину от 30 мм, ширину 25 мм и толщину 8 мм. Комбинированные ключи обычно устанавливаются в «трещотку». Они имеют ступенчатую рабочую часть с несколькими стандартными размерами, например, 3/8, 1/2, 3/4, 1 и 5/4 дюйма, расположенными в форме «елочки». Такие ключи производятся только промышленным способом.
Как сделать самостоятельно

Чтобы сделать радиаторный ключ своими руками, сначала нужно найти подходящий отрезок металлической арматуры. Размер отрезка следует подбирать так, чтобы длина готового ключа составляла не менее половины длины радиатора, с которым предполагается работать, плюс 30 см (для демонтажа 7-секционных алюминиевых/биметаллических радиаторов достаточно ключа длиной 69 см).

Для изготовления инструмента понадобятся автоген, молот и наковальня. Предполагаемый рабочий конец заготовки нужно нагреть до белого каления. После этого на наковальне с помощью молота куют «лопатку». Операцию следует повторять несколько раз до формирования рабочей части нужных размеров. Доводку можно осуществлять с помощью болгарки или шлиф-машины.


Полезно при доводке иметь пример используемого в радиаторе ниппеля, «примеряя» к нему изготавливаемый инструмент.
Чтобы сделать Т-образный ключ, достаточно приварить перпендикулярно к противоположному от рабочего концу пруток длиной от 20 см. Для самостоятельного изготовления ключа с «петелькой» нужно взять чуть более длинную заготовку и, нагрев автогеном, изогнуть ее с помощью клещей. Не забывайте приварить изогнутый край.
ВидеоВ сюжете - Пошаговая инструкция скручивания и раскручивания алюминиевого радиатора автономного отопления состоящей из нескольких секций
В сюжете - Делаемсвоими руками
В сюжете - Как выковать ключ для батарей-радиаторов
В сюжете - Как сделать ключ для разборки радиаторов отопления
Советы по применению
Учтите, что демонтаж секций современных радиаторов требует меньше усилий, чем работа с их чугунными аналогами. Если крепления чугунных радиаторов слишком сильно «прикипели», перед демонтажем стоит разогреть их паяльной лампой. Также помните, что уже изготовленный ключ всегда можно довести «по месту» с помощью болгарки.
Как правильно собрать алюминиевый радиатор отопления. Монтаж стальных, алюминиевых и биметаллических радиаторов
Теперь давайте разберем, как правильно устанавливать радиаторы отопления. Алюминиевые, биметаллические и стальные модели продаются в специальной пленке. Так вот, не спешите срывать ее – она послужит дополнительной защитой изделия от грязи.
Помните! Срывать пленку лучше после окончания всех работ по установке батареи.
Разберем, как выполняется зацепка радиатора на кронштейны, а также подключение его к трубопроводу.
Совет : Прежде чем, вы начнете сборку изделия, лучше потренироваться на «сухую», так вы и опыт получите, и поймете, что к чему.
- отключается система отопления или, если есть запорные краны, просто перекрывается место перед агрегатом. Благодаря этому, можно не выключать котел, а просто обесточить батарею, которую требуется заменить;
- если демонтаж не требуется, на готовые кронштейны вешается батарея, проверяется по уровню и регулируется до отметки нуля;
- в зависимости от выбранной схемы закручиваются краны, заглушки и запорная арматура;
Совет : Лучше всего если в трубопроводе, который подводит теплоноситель к изделию, вмонтировать запорную арматуру. В случае потребности ремонта, это позволит не отключать отопительную систему полностью. Но для этого придется сделать байпас.
- когда краны установлены, необходимо подтянуть их динамометрическим ключом.
Важно! Подтягивать нужно аккуратно, руководствуясь инструкцией. Обычно именно там указывают на рекомендуемую силу затяжки. Если документ не содержит этой информации, придется определять на ощупь. Просто потихоньку вращайте гайки, и следите, чтобы паронитовые или резиновые прокладки не передавило.
- подключите трубопровод, каким образом это делать – пайкой, сваркой или сгонами — решать исключительно вам, ведь все зависит от ситуации, типа строения и предпочтений самого владельца жилья;
- начинается опрессовка системы;
- теперь можно проводить пробный запуск.
Если монтаж выполнен правильно, протечек быть не должно. А в том случае, когда такие обнаружены, нужно исправить проблему, подтянув соединения.
Помните! Монтируя алюминиевые батареи, работайте с ними аккуратно, чтобы не нанести механических повреждений. Неосторожное поведением можно погнуть их – это конечно не ухудшит качество работы, но значительно снизит их привлекательность.
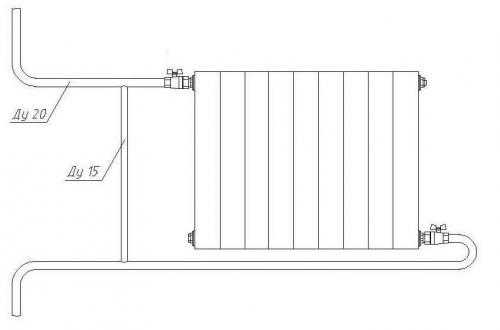
Как соединить радиатор отопления с трубой. Что необходимо для монтажа
Установка радиаторов отопления любого типа требует наличия устройств и расходных материалов. Набор необходимых материалов почти одинаков, но для чугунных батарей, например, заглушки идут большого размера, а кран маевского не ставят, но зато, где-то в высшей точке системы, ставят автоматический воздухоотводчик. А вот установка радиаторов отопления алюминиевых и биметаллических абсолютно одинакова.
Стальные панельные тоже имеют некоторые отличия, но только в плане навешивания — с ними в комплекте идут кронштейны, а на задней панели имеются специальные отлитые из металла дужки, которыми отопительный прибор цепляется за крючки кронштейнов.

Вот за эти дужки заводят крюки
Кран Маевского или автоматический воздухоотводчик
Это небольшое устройство для сброса воздуха , который может скапливаться в радиаторе. Ставится на свободный верхний выход (коллектор). Обязательно должен быть на каждом отопительном приборе при установке алюминиевых и биметаллических радиаторов. Размер этого устройства значительно меньше диаметра коллектора, так что потребуется еще переходник, но краны маевского обычно идут в комплекте с переходниками, вам только надо будет знать диаметр коллектора (подсоединительные размеры).

Кран маевского и способ его установки
Кроме крана маевского существуют еще автоматические воздухоотводчики. Их тоже можно ставить на радиаторы, но они имеют чуть большие размеры и почему-то выпускаются только в латунном или никелированном корпусе. В белой эмали нет. В общем, картина получается непривлекательная и, хоть они и спускают воздух автоматически, их ставят редко.

Так выглядит компактный автоматический воздухоотводчик (есть более громоздкие модели)
Выходов у радиатора с боковым подключением четыре. Два из них заняты подающим и обратным трубопроводом, на третьем ставят кран маевского. Четвертый вход закрывается заглушкой. Она, как и большинство современных батарей, чаще всего выкрашена белой эмалью и совершенно не портит внешний вид.

Где ставить заглушку и кран маевского при разных способах подключения
Запорная арматура
Нужны будут еще два шаровых крана или запорных с возможностью регулировки. Они ставятся на каждой батарее на входе и на выходе. Если это обычные шаровые краны, они нужны чтобы при необходимости можно было отключить радиатор и снять его (экстренный ремонт, замена во время отопительного сезона). В таком случае даже если что-то с радиатором случилось, вы его отсечете, а остальная система будет работать. Плюс такого решения — небольшая цена шаровых кранов, минус — невозможность регулировки теплоотдачи.

Краны на радиатор отопления
Практически те же задачи, но еще с возможностью изменять интенсивность потока теплоносителя, выполняют запорные регулирующие краны. Они дороже, но и позволяют подстраивать теплоотдачу (делать ее меньше), да и внешне они лучше смотрятся, есть в прямом и угловом исполнении, так что сама обвязка более аккуратна.
При желании можно на подаче теплоносителя после шарового крана поставить терморегулятор. Это относительно небольшое устройство, которое позволяет менять теплоотдачу отопительного прибора. Если радиатор греет плохо, их ставить нельзя — будет еще хуже, так как они могут только сделать меньше поток. Есть терморегуляторы на батареи разные — автоматические электронные, но чаще используют самый простой — механический.
Сопутствующие материалы и инструменты
Еще для навешивания на стены нужны будут крюки или кронштейны. Их количество зависит от размера батарей:
- если секций не больше 8 или длинна радиатора не более 1,2 м, достаточно двух точек крепления сверху и одной снизу;
- на каждые следующие 50 см или 5-6 секций добавляют по одному крепежу сверху и снизу.
Такде необходима фум лента или льняная подмотка, сантехническая паста для герметизации соединений. Нужна будет еще дрель со сверлами, уровень (лучше нивелир, но подойдет и обычный пузырьковый), некоторое количество дюбелей. Также надо будет оборудование для соединения труб и фитингов, но оно зависит от вида труб. Вот и все.
Как правильно подключить радиатор отопления при однотрубной системе. Как правильно подключаются радиаторы отопления при двухтрубной системе: разновидности
Различают две разновидности систем обогрева: одно- и двухтрубные. Чтобы определиться с оптимальным методом подсоединения батарей к обогревательному контуру, определимся с особенностями функционирования каждого вида.
Обогревание при однотрубной сети являет собой экономный вариант. Использование такой схемы позволяет существенно сэкономить на растратах при покупке материала и его монтаже. Подключение радиаторов отопления по однотрубной системе применяется в многоэтажках, а также частных домах. Принцип подсоединения такого вида обусловлен тем, что каждый радиатор соединён между собой последовательным способом, как показано ниже.

Из выхода крайнего радиатора контур возвращается к обогреваемому котлу или стояку многоэтажек. Подсоединение радиаторов к однотрубной системе имеет не только преимущество в виде экономии, но ещё и недостаток — отсутствие возможности регулировать теплоотдачу. Для этого можно установить один регулятор на первом теплообменнике, что позволит контролировать всю систему в целом. Ещё одним минусом такого типа системы обогрева является разница температур на начальном и конечном регистре. Батареи, которые подсоединены первыми к котлу, отдают больше тепла, нежели конечные теплообменники в контуре. Это отражается на температурных показателях в помещении, которая будет отличаться в зависимости от того, сколько регистров обогрева установлено в помещении. Если в небольшом частном доме последовательное подключение радиаторов функционирует эффективно, то в многоэтажном доме теплообменники на верхних этажах будут недополучать тепла.
Двухтрубная разводка является более приемлемым вариантом, так как она имеет две нити трубопровода, которые отходят от котла: подача и обратка. Каждый источник подключён к обеим трубам, поэтому такой вариант ещё называют параллельным способом. Преимущество данной системы сложно недооценить, так как каждый теплообменник получает теплоноситель с одинаковым показателем температуры. Это значит, что в доме или квартире каждая батарея будет иметь одинаковую температуру.

На каждом регистре обогрева устанавливается регулятор, при помощи которого контролируется температура в помещении. В отличие от однотрубной, двухтрубная конструкция имеет такой недостаток, как затраты на покупку труб. Для сооружения контура двухтрубного типа понадобится вдвое больше материалов, поэтому у владельцев частных домов возникает вопрос, что же лучше выбрать.

Схемы подключения радиаторов отопления. Устройство радиатора отопления
состоит из нескольких теплообменных секций. Чем больше секций, тем, соответственно, выше мощность батареи. Существуют такие модели радиаторов, которые можно «доращивать» новыми секциями в случае необходимости уже в процессе эксплуатации.
Через все секции проходит один коллектор в верхней части и один в нижней. В каждой секции есть вертикальный канал, соединяющий верхний и нижний коллектор. Это касается всех секций, включая крайние. Поэтому радиатор имеет 4 выхода, но используются только два из них. Один подключается к трубе подачи теплоносителя, а второй служит для отвода остывшей воды обратно в котел. Незадействованные выходы закрывают заглушками. Так устроено большинство радиаторов.
Виды трубной системы
В схеме отопительной системы принципиальное значение имеет взаиморасположение входа подачи теплоносителя и выхода «обратки». Это зависит от направления теплоносителя и от типа трубной системы.
Однотрубная система
Это упрощенный вариант обустройства отопления в коттедже. Данный вариант довольно экономичен, так как требует для разводки меньше труб и выполняется с меньшими трудозатратами на монтажные работы. Система представляет собой цепь радиаторов, соединенных одной трубой. Теплоноситель, нагретый в котле, поступает поочередно в каждый радиатор, перетекая из одного в другой. То есть «обратка» из одой батареи становится подачей для следующей, и т. д.
Для однотрубных систем сейчас можно установить специальные модули Радиплект и Радиплект Терм от Gibax, благодаря которым можно поддерживать температуру в домеилирежимами. Их монтаж достаточно прост, а минимальное количество соединений даст дополнительную гарантию на надежность соединений.
Однотрубная схема подключения радиаторов отопления в частном доме имеет один существенный недостаток – при ней радиаторы нагреваются неравномерно. Самым горячим всегда будет первый радиатор, а дальше от батареи к батарее температура будет постепенно снижаться. Следовательно, поддерживать одинаковую температуру во всех помещениях имея однотрубное отопление невозможно.
При определенных особенностях планировки однотрубная система может быть вполне подходящей. Так, если в небольшом доме цепь радиаторов будет начинаться с жилых комнат и заканчиваться техническими помещениями, этот вариант может оказаться оптимальной. Но в просторных коттеджах лучше устанавливать двухтрубное отопление.
Двухтрубная система
Более дорогостоящий в обустройстве, но простой и удобный в эксплуатации вариант. В этой системе функционируют одновременно две линии труб. Первая подает горячую воду к каждой батарее. То есть идет одна труба с заходом в каждый радиатор. Теплоноситель, прежде чем попасть в радиатор, независимо от его расположения в цепи, не заходит в соседние радиаторы, а идет напрямую. Вторая труба собирает обратку из всех радиаторов и доставляет ее в коллектор нагрева.
Преимущества донного типа разводки в том, что во всех точках теплообмена достигается практически одна температура. Такая система лучше поддается регулировке и обеспечивает равномерный обогрев всего здания.
Лучевая (коллекторная) система
Коллекторная схема это вариант двухтрубного подключения, но с более сложной разводкой. Применяется в тех случаях, когда нужно скрыть трубы, например под напольным покрытием. В этом случае обустраивается два коллектора – под подачу и под обратку, и от каждого радиатора тянется одна труба в первый коллектор, и еще одна во второй.
В некоторых схемах подключения применяются два вида системы. Весь дом может отапливаться по двухтрубному принципу, но для отдельного участка, например веранды или большой гостиной применена связка нескольких радиаторов по однотрубному принципу. При разработке двухтрубной схемы подключения батарей отопления в частном доме главное не запутаться в коллекторах подачи и обратки.
Терморегулятор для радиатора отопления: конструкция и установка
Схема подключения радиаторов к отопительной системе
Теплоноситель перемещается по трубам и каналам батарей благодаря двум факторам. Первый – это стремление жидкости заполнить пустоты. При отсутствии воздушных пробок создается естественный динамический напор теплоносителя. Второй фактор – движение потоков разной температуры. Горячая вода стремится вверх, вытесняя в нижний поток холодную.
Диагональное верхнее подключение
Диагональное подключение радиаторов с верхней подачей позволяет обустроить самое эффективное отопление помещений. Горячая вода подается в верхний вход, внутри она распространяется по секциям, и, остывая, опускается вниз, после чего вытесняется в нижний вход в коллектор обратки, расположенный с другой стороны радиатора.
Правильное подключение радиаторов отопления. О способах подключения батарей
Начнем с того, что схема подключения бывает:
- односторонней;
- перекрестной;
- нижней.

Схемы подключения радиаторов отопления
По одностороннему варианту подключение производится, как правило, в городских квартирах, где используется центральное отопление. Здесь трубы подсоединяются лишь с одной стороны батареи. Преимущество схемы в том, что система может работать с максимальной номинальной мощностью, однако то, насколько эффективна теплоотдача, зависит от кол-ва секций батареи. Вода в данном случае не может доходить до удаленных от места подсоединения участков, что негативно влияет на эффективности всей отопительной системы. Данный эффект особенно заметен при использовании батареи, состоящей из 15-ти секций, потому при подключении многосекционных радиаторов предпочтение лучше отдавать другой схеме.

Адаптер для нижнего одностороннего подключения радиатора
В последние годы все большую популярность обретают биметаллические радиаторы, их можно подключать по диагональной (ее также называют перекрестной) схеме. Суть данной схемы в том, что подводка подсоединяется сверху, а отводка – снизу, но с другой стороны. При таком монтаже жидкость более равномерно распределяется по батарее, а значит, минимизируются потери ее мощности.

Диагональное подключение радиаторов отопления
На заметку! При использовании диагональной схемы необходимо учитывать то, как располагаются отводящая/подводящая трубы. Ведь если подвод сделать снизу, а отвод – сверху, то радиатор может потерять свыше 50% своей мощности.

Диагональная схема подключения радиаторов отопления при двухтрубной и однотрубной системе
Порой описанные выше схемы по тем или иными причинам не используются в помещении. Тогда остается только нижнее подключение , при котором образуется сквозной проход теплоносителя; очевидно, что до верхних секций радиатора жидкость в таком случае не доходит, из-за чего теплоотдача может снизиться на 15%. Тем не менее, данную схему нередко применяют в частных домах с индивидуальным отоплением. А теплоотдачу можно восполнить посредством распределительных трубок.

Последовательное подключение радиаторов отопления. Способы подключения радиаторов отопления
Отопительные радиаторы монтируются на стену, или, изредка, на пол. Предусмотрено несколько способов их подключения.
Сами способы разделяют по стороне подводки труб (боковое, нижнее) и по схеме подключения нескольких радиаторов одновременно (параллельное, последовательное, перекрестное).
Выбор конкретного варианта производится исходя из нескольких условий :
Рассмотрим способы подключения более подробно.
Боковое
Этот вариант самый простой распространенный, так как большинство моделей радиаторов имеют именно боковой выход патрубков. Так рассчитано производителем.
Боковое подключение удобно также тем, что отвинчивать гайки сбоку намного удобнее, чем снизу под корпусом прибора.
Помимо нижней подводки встречаются настенные радиаторы с верхней подводкой. Верхняя сторона обычно хорошо заметна, поэтому соединение будет на виду и такая схема применяется производителями редко. Технологически подключение при ней не отличается от вариантов при нижнем или боковом расположении.
Нижнее
Нижняя подводка труб наиболее часто используется, когда они проложены скрытно под штукатуркой. Нужно учитывать, что трубы с теплоносителем при прокладке даже в негорючих стенах требуют хорошей теплоизоляции.
Температура теплоносителя до 90 С не представляет пожарной опасности. Теплоизоляция сооружается для того, чтобы нагревался только радиатор, а не стена изнутри. При правильно спроектированной теплоизоляции КПД отопительной системы не падает.
Параллельное
Параллельно соединяют мощные секции. Преимущество этого способа — радиаторы хорошо отделены друг от друга.
Их можно заменять, ремонтировать, отключать, а работа всей отопительной сети не нарушается. Вариант часто используется в частных домах и автономных отопительных системах.
Последовательное
Последовательная схема выгодна, когда ставятся радиаторы небольшой мощности и в одной общей отопительной системе их большое количество.
В последовательной схеме достигается максимальная экономия соединительных трубопроводов. Именно поэтому ее можно часто видеть в централизованных сетях, в то время как двухтрубная параллельная схема там практически не встречается.
Перекрестное
Под перекрестной подразумевают комбинированную схему подключения с параллельным и последовательным соединением.
Вариант подходит, когда нужно использовать модели радиаторов различной мощности. По перекрестной схеме собираются многие централизованные системы отопления.
Как подключить вторую батарею отопления. Двухтрубный вариант подключения
Рассмотрим ее особенности:
- Инструкция по монтажу схемы подразумевает наличие двух отдельных трубопроводов, к которым подключается каждое из устройств.
- При этом один водопровод является подающим, откуда поступает горячая вода, а другой – обратным, отдающим уже охлажденную воду.
- Так как пути, преодолеваемые теплоносителем, как в подающей трубе, так и в обратной, равны, их гидравлическое сопротивление одинаково. То есть такая схема гидравлически уравновешена, что делает ее применение наиболее оптимальным.

Правильное подключение радиаторов отопления при двухтрубной системе — диагональный метод
Совет: использование в данном случае диагонального метода подключения приборов отопления сделает работу системы более эффективной.
- Впрочем, схемы могут быть и тупиковыми, а это означает, что самый:
- длинный путь проделывает уже остывшая вода, отходящая от последнего в цепи прибора отопления;
- короткий — пролегает от первого.
По этой причине придется регулировать подачу горячей воды своими руками в каждой из батареи кранами или использовать термостатические клапаны.
Схема может быть принудительной (встраивается насос) и самотечной, основное достоинство последней заключается в том, что она не требует наличия электричества. Для этого делается верхняя разводка, а приборы отопления. так же, как и в предыдущем случае, подключаются диагонально.

Принудительная двухтрубная схема подключения радиаторов отопления с котлом и насосом
Используется она чаще всего в небольших жилых домах, имеющих не больше двух этажей. Хотя она станет идеальной в населенных пунктах, испытывающих перебои с электроэнергией, используется не часто, что объясняется необходимостью применения большого количества материалов и неэстетичным внешним видом.
Используется не только в жилых домах, но и в любых других зданиях, вне зависимости от их назначения. Ее организация требует больших затрат материалов и сил, но все же преимущества такой системы неоспоримы.
В системе есть возможность автоматического регулирования температуры
Совет: вы сможете легко подобрать ее для любых строений, какими бы сложными они ни были.
На одной ветке возможно расположение большого количества устройств отопления, и это не потребует дополнительной установки гидравлических регуляторов давления. Подача воды и обратный отток в таких схемах подключаются отдельно, что позволяет регулировать обогрев всех помещений дома автоматически. В данном случае терморегуляторы не будут оказывать никакого влияния на другие приборы, а их цена лишь ненамного увеличит стоимость монтажа.
