Подключение радиатора отопления к полипропиленовым трубам: выбор радиаторов, запорной арматуры и фитингов
- Подключение радиатора отопления к полипропиленовым трубам: выбор радиаторов, запорной арматуры и фитингов
- Подключение радиаторов отопления к металлическим трубам. Основные способы подключения
- Подключение радиатора полипропиленовыми трубами. Место радиаторов в системе отопления
- Фитинги для подключения радиаторов отопления. Разновидности соединительных элементов
- Какой трубой подключить радиатор отопления. О способах подключения батарей
- Схемы подключения радиаторов отопления. Однотрубная схема отопительных систем
- Подключение металлопластиковых труб к радиатору. Как устроен радиатор отопления
- Радиатор отопления из пластиковых труб. Отопление частного дома пластиковыми трубами и радиаторами
- Соединение батареи с трубой. Как правильно подключить батареи отопления своими руками, в зависимости от вида радиатора?
Подключение радиатора отопления к полипропиленовым трубам: выбор радиаторов, запорной арматуры и фитингов
Обратите внимание: при нагреве до 95 градусов максимально допустимое давление снижается до 6-7 кгс/см.
Человеку, не понаслышке знакомому с режимами работы различных систем отопления, сделать выводы из приведенных цифр нетрудно: полипропилен стоит использовать только в автономных отопительных контурах.
Почему? Ведь штатные параметры ЦО (4 — 6 кгс/см2, 50 — 95С) вроде бы укладываются в типичные характеристики полипропилена?
Да потому, что реальные условия эксплуатации ЦО порой отличаются от предусмотренных ГОСТами и СНиПами.
- При экстремально низких уличных температурах практикуется работа элеваторного узла без сопла, с заглушенным подсосом. В этом режиме в систему отопления поступает теплоноситель с подающей нитки теплотрассы, имеющий температуру до 150С.
- При гидроударе (возникающем, в частности, при чрезмерно быстром заполнении контура) на фронте потока воды давление может достигать 25 — 30 кгс/см2.

Полипропилен на такое давление явно не рассчитан.
Кроме того, о полипропилене полезно знать еще несколько вещей.
Значительное удлинение при нагреве заставляет прокладывать длинные прямые участки розлива и подводок с использованием компенсаторов — изгибов трубы. позволяющих избежать ее деформации на прямых участках.
Удлинение может быть уменьшено при использовании армированных труб.
Для них характерен меньший коэффициент температурного расширения:
- 3 мм/1 м.п./50С для труб, армированных фиброй (рубленным стекловолокном);
- 1,5 мм/1 м.п./50С для армированного алюминиевой фольгой полипропилена.
Важный момент: при соединении с фитингом алюминиевая фольга в зоне сварки должна быть зачищена.
В противном случае возможно расслоение трубы из-за электрохимической коррозии алюминия.
Подключение радиаторов отопления к металлическим трубам. Основные способы подключения
Типы подключения радиаторов отопления:
Рассмотрим более подробно их особенности, преимущества и недостатки.
Диагональное (поперечное)
При диагональной схеме подающая труба подключается к одному из верхних патрубков радиатора, а отводящая труба – к одному из нижних, расположенных с противоположной стороны прибора. В результате поступающий нагретый теплоноситель равномерно распределяется по всему объему внутренней поверхности радиатора, обеспечивая максимальную теплоотдачу.
При этом теплопотери не превышают 2%.

Фото диагональной схемы подключения
Считается, что такая схема обеспечивает наиболее эффективную работу батареи . Номинальная мощность устройства, указанная производителем в паспорте изделия, привязывается именно к диагональному типу подключения.
Наиболее востребована такая схема при большом количестве секций радиатора (больше 10-12), что обеспечивает равномерный прогрев всей площади прибора.
К недостаткам относится:
- дополнительный расход труб;
- сложность и неудобство монтажа;
- неэстетичный внешний вид.
В многоэтажных домах эта схема практически не используется.
Боковое (одностороннее)
Подающая труба подсоединяется к верхнему патрубку прибора, а отводящая труба – к нижнему патрубку на той же стороне, т.е. обе трубы подключаются к одной из крайних секций радиатора.
Это обеспечивает достаточно эффективный и равномерный нагрев всех секций при небольших тепловых потерях (до 2-5%).
Наибольший эффект достигается при подключении батарей с 10-15 секциями, а также в многоквартирных жилых домах с параллельным подключением обогревателей.
При увеличении количества секций тепловая эффективность резко снижается за счет неравномерного прогрева другой стороны радиатора.

Боковое подключение батареи
В процессе однотрубного подключения в схему обычно включается дополнительный элемент – перемычка (байпас) в виде отрезка трубы меньшего диаметра, чем подающая и отводящая труба. Он устанавливается между этими трубами в непосредственной близости от радиатора.
Байпас регулирует подачу теплоносителя и обеспечивает возможность отключения прибора, если произошла поломка (засорение, течь и пр.) без прекращения работоспособности всей системы отопления.
Нижнее (седельное или вертикальное)
Нижнюю схему подключения радиаторов отопления называют «ленинградкой » .
Поводящая труба присоединится к одному из нижних патрубков, а отводящая труба – ко второму нижнему патрубку с противоположной стороны.
При таком варианте подключения верхняя и нижняя часть прибора может прогреваться неравномерно, а теплопотери могут составить до 15%. Однако это чаще характерно для систем в многоквартирных домах с большим числом приборов отопления и большой длиной труб. Для автономных систем частных домов такие теплопотери практически не заметны.

Наиболее часто седельная схема используется для частных одноэтажных домов , когда трубы проложены под полом или спрятаны внутри него.
Это позволяет значительно улучшить внешний дизайн радиатора, сделав трубы практически незаметными.
Отдельной разновидностью нижней схемы является вертикальное подключение, которое применяется для отдельных видов отопительных приборов особой конструкции (панельные стальные и алюминиевые радиаторы с нижней подводкой).

Вертикальная схема для радиаторов с нижней подводкой
У таких радиаторов патрубки подключения подводящей и отводящей труб располагаются рядом в нижней части прибора. Для соединения используется специальный запорно-присоединительный узел.
- Преимущества: экономия материалов и улучшенный дизайн за счет незаметности подключаемых трубопроводов.
- Недостатки: неравномерный прогрев и снижение эффективности теплоотдачи.
Подключение радиатора полипропиленовыми трубами. Место радиаторов в системе отопления
Использование радиаторов в обогреве жилых помещений играет на сегодняшний день важную роль. Большинство жилых объектов, особенно квартиры в многоэтажных домах, в силу проектных факторов не могут быть оборудованы внутрипольным обогревом, требующим значительной толщины межэтажных плит. Поэтому основную работу по обогреву внутренних жилых пространств выполняют настенные радиаторы, часто называемые батареями.
Радиаторы передают тепловую энергию от теплоносителя окружающему пространству. Интенсивность теплопередачи зависит от температуры теплоносителя, теплопроводности материала изготовления радиатора и площади теплоотдачи. Конструкция современных моделей радиаторов имеет ряд технических усовершенствований, позволяющих выполнять их подключение в отопительных контурах практически любой схемы разводки.
На заметку: в чугунных батареях старого образца имелись только патрубки для подачи и выхода теплоносителя, современные же модели дополнительно оснащены встроенными воздухоотводчиками — для устранения воздушных пробок.
*
Новая конструкция батарей кардинально облегчила эксплуатацию системы отопления и повысила её эффективность — при наличии воздушных пробок в нагревательных приборах достаточно открыть спускной клапан и стравить воздух.
Биметаллический радиатор водяного отопления с увеличивающим площадь теплоотдачи оребрением
Благодаря современным моделям батарей отопления стало возможным выбирать оптимальную схему подключения, устанавливать нагревательные приборы максимально рационально и эффективно. Но эффективность работы и долговечность эксплуатации контура водяного отопления зависит от качества выполнения обвязки — условия, необходимого при использовании полипропиленовых труб, несмотря на многочисленные достоинства этого материала.
Важно! Подключение полипропиленовых труб к металлическому стояку производится посредством специальных переходников, один конец которого — металлический имеет резьбовое соединение, а ко второму — полимерному полипропиленовая труба подключается способом горячей сварки. Врезая радиатор отопления в контур из полипропиленовых труб, необходимо использовать соединительные фитинги, переходники и муфты, изготовленные из аналогичного материала.
Полипропиленовые трубы имеют высокий коэффициент теплового расширения, поэтому при монтаже отопительного контура следует оставлять зазоры между торцами участков трубопровода и стеной, чтобы при линейном удлинении от воздействии горячего теплоносителя пролёт трубы не упирался концами в стену и не деформировался. При этом следует учитывать, что, чем длиннее пролёт трубопровода, тем на большую величину он удлинится.
Армирование полипропиленовых труб алюминием или стекловолокном уменьшает линейное расширение, но не решает проблемы полностью, поэтому на участках значительной длины необходимо предусматривать П-образные или, если позволяет место размещения, спиральные компенсаторы.
Фитинги для подключения радиаторов отопления. Разновидности соединительных элементов
Совет: не стоит экономить на рассматриваемых компонентах отопительной системы. Хоть они и могут казаться малозначительными, именно на них осуществляется наибольшая нагрузка.
Фитинги для подключения радиаторов отопления бывают следующих видов:
Вид №1: муфта

Фото латунных муфт
Это наиболее простые элементы, позволяющие создать элементарное соединение трубы с входом в батарею в том случае, если их диаметры совпадают. Цена таких деталей наиболее низкая.
Вид №2: переходники
Образец металлического переходника
Это та же муфта, но уже с отличающимися на концах диаметрами, что позволяет выполнить подсоединение даже в случае несоответствия соединяемых элементов. Размеры фитингов для радиаторов при этом соответствуют стандартам используемых в сантехнике труб.
Схема переходника
Вид №3: углы или отводы

Угловой сгон
Позволяют направить трубу от батареи под нужным углом, например в обход предмета мебельного интерьера или выступа стены.
Схема отвода
Вид №4: тройники

Тройник для подключения перемычки
Благодаря использованию тройников можно установить специальную перемычку перед батареей. Это даёт возможность отключения радиатора для замены или ремонта без остановки всей отопительной системы, так как теплоноситель попросту пойдёт другим путём в случае перекрытия вентилей.
Схема тройника
Вид №5: крестовины

Образец крестовины
Позволяют объединить трубы с одинаковыми диаметрами в точках их разветвления. При подключении к батареям используются редко, но знать о них всё равно не помешает.
Схема крестовины
Вид №6: штуцер

Образец штуцера
Штуцер, как правило, используется для подсоединения к батарее гибкого шланга, что требуется для его промывки. Также бывают модели, позволяющие соединять металлические трубы с полипропиленовыми.
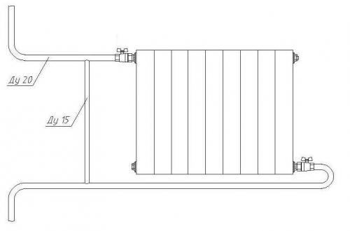
Какой трубой подключить радиатор отопления. О способах подключения батарей
Начнем с того, что схема подключения бывает:
- односторонней;
- перекрестной;
- нижней.

Схемы подключения радиаторов отопления
По одностороннему варианту подключение производится, как правило, в городских квартирах, где используется центральное отопление. Здесь трубы подсоединяются лишь с одной стороны батареи. Преимущество схемы в том, что система может работать с максимальной номинальной мощностью, однако то, насколько эффективна теплоотдача, зависит от кол-ва секций батареи. Вода в данном случае не может доходить до удаленных от места подсоединения участков, что негативно влияет на эффективности всей отопительной системы. Данный эффект особенно заметен при использовании батареи, состоящей из 15-ти секций, потому при подключении многосекционных радиаторов предпочтение лучше отдавать другой схеме.

Адаптер для нижнего одностороннего подключения радиатора
В последние годы все большую популярность обретают биметаллические радиаторы, их можно подключать по диагональной (ее также называют перекрестной) схеме. Суть данной схемы в том, что подводка подсоединяется сверху, а отводка – снизу, но с другой стороны. При таком монтаже жидкость более равномерно распределяется по батарее, а значит, минимизируются потери ее мощности.

Диагональное подключение радиаторов отопления
На заметку! При использовании диагональной схемы необходимо учитывать то, как располагаются отводящая/подводящая трубы. Ведь если подвод сделать снизу, а отвод – сверху, то радиатор может потерять свыше 50% своей мощности.

Диагональная схема подключения радиаторов отопления при двухтрубной и однотрубной системе
Порой описанные выше схемы по тем или иными причинам не используются в помещении. Тогда остается только нижнее подключение , при котором образуется сквозной проход теплоносителя; очевидно, что до верхних секций радиатора жидкость в таком случае не доходит, из-за чего теплоотдача может снизиться на 15%. Тем не менее, данную схему нередко применяют в частных домах с индивидуальным отоплением. А теплоотдачу можно восполнить посредством распределительных трубок.

Схемы подключения радиаторов отопления. Однотрубная схема отопительных систем

Однотрубная система отопления: вертикальная и горизонтальная разводка.
В однотрубной схеме систем отопления подвод горячего теплоносителя (подача) к радиатору и отвод остывшего (обратка) осуществляется по одной трубе. Все приборы относительно направления движения теплоносителя соединены между собой последовательно. Поэтому температура теплоносителя на входе в каждый последующий радиатор по стояку значительно снижается после снятия тепла с предыдущего радиатора. Соответственно теплоотдача радиаторов с удалением от первого прибора снижается.
Такие схемы используются, в основном, в старых системах центрального теплоснабжения многоэтажных зданий и в автономных системах гравитационного типа (естественная циркуляция теплоносителя) в частных жилых домах. Главным определяющим недостатком однотрубной системы является невозможность независимой регулировки теплоотдачи каждого радиатора в отдельности.
Для устранения этого недостатка возможно использование однотрубной схемы с байпасом (перемычкой между подачей и обраткой), но и в этой схеме первый радиатор будет на ветке всегда самый горячий, а последний самым холодным.

В многоэтажных домах используется вертикальная однотрубная система отопления.
В многоэтажных домах использование такой схемы позволяет экономить на длине и стоимости подводящих сетей. Как правило, отопительная система выполнена в виде вертикальных стояков, проходящих через все этажи здания. Теплоотдача радиаторов рассчитывается при проектировании системы и не может быть отрегулирована с помощью радиаторных вентилей или другой регулирующей арматуры. При современных требованиях к комфортным условиям в помещениях, эта схема подключения приборов водяного обогрева не удовлетворяет требованиям жителей квартир, находящихся на разных этажах, но присоединенных к одному стояку системы отопления. Потребители тепла вынуждены «терпеть» перегрев или недогрев температуры воздуха в переходный осенний и весенний период.

Отопление по однотрубной схеме в частном доме.
В частных домах однотрубная схема используется в гравитационных отопительных сетях, в которых циркуляция горячей воды осуществляется благодаря дифференциалу плотностей нагретого и остывшего теплоносителей. Поэтому такие системы получили название естественных. Главным плюсом этой системы является энергонезависимость. Когда, например, при отсутствии в системе циркуляционного насоса, подключаемого к сетям электроснабжения и, в случае перебоев с энергопитанием, система отопления продолжает функционировать.
Главным недостатком гравитационной однотрубной схемы подключения является неравномерное распределение температуры теплоносителя по радиаторам. Первые радиаторы на ветке будут самые горячие, а по мере удаления от источника тепла температура будет падать. Металлоемкость гравитационных систем всегда выше, чем у принудительных за счет большего диаметра трубопроводов.
Подключение металлопластиковых труб к радиатору. Как устроен радиатор отопления
Если упрощенно взглянуть на большинство радиаторов отопления, то их гидравлическая конструкция представляет собой достаточно несложную, понятную схему. Это два горизонтальных коллектора, которые соединены между собой вертикальными каналами-перемычками, по которым происходит перемещение теплоносителя. Вся эта система или выполнена из металла, обеспечивающего необходимую высокую теплоотдачу (яркий пример – мощность секции чугунного радиатора ), либо «одета» в специальный кожух, конструкция которого предполагает максимальную площадь контакта с воздухом (например, биметаллические радиаторы).

Очень упрощенно – схема устройства большинства радиаторов отопления
1 – Верхний коллектор;
2 – Нижний коллектор;
3 – Вертикальные каналы в секциях радиатора;
4 – Теплообменный корпус (кожух) радиатора.
Оба коллектора, верхний и нижний, с обеих сторон имеют выходы (соответственно, на схеме верхняя пара В1-В2, и нижняя В3-В4). Понятно, что при подключении радиатора к трубам контура отопления подключается лишь два выхода из четырех, а оставшиеся два глушатся. И вот от схемы подключения, то есть от взаимного расположения трубы подачи теплоносителя и выхода в «обратку» во многом зависит эффективность работы установленной батареи.
И прежде всего, планируя установку радиаторов, хозяин должен точно разобраться, какая же система отопления функционирует или будет создаваться в его доме или квартире. То есть он должен четко представлять, откуда поступает теплоноситель и в какую сторону направлен его поток.
Радиатор отопления из пластиковых труб. Отопление частного дома пластиковыми трубами и радиаторами

Трубопроводы в системе отопления дома или квартиры играют ключевую роль. С их помощью происходит транспортировка теплоносителя, обеспечивается равномерное тепловое распределение. Наряду со стальными магистралями все чаще встречается отопление частного дома пластиковыми трубами и радиаторами.
Особенности использования пластиковых труб в отоплении
Для того чтобы сделать пластиковое отопление своими руками предварительно следует выяснить все нюансы использования этого типа труб. Они изготавливаются из полимерных материалов различного типа, что в итоге и определяет их функциональные особенности.
Пластиковые трубы для отопления
Качественная разводка пластикового отопления обладает целым рядом преимущество. К ним относятся простота монтажа, доступная стоимость материалов и возможность изготовления сложных систем.
Однако нужно учитывать технические характеристики полимерных изделий. Некоторые из моделей труб не приспособлены для эксплуатации в системах теплоснабжения.
Обратите внимание
Поэтому перед тем как делать пластиковое отопление в частном доме, следует правильно выбрать трубы.
После профессиональной установки водяное отопление из пластиковых труб должно иметь следующие свойства:
- Минимальные тепловые потери . Полимеры обладают наименьшим значением теплопередачи. Это минимизирует отдачу тепловой энергии от теплоносителя во время его транспортировки к радиаторам и батареям;
- Критические значения давления в системе . Этот показатель является определяющим при выборе труб. Многие модели рассчитаны на максимальное давление до 20 атм. Однако монтаж пластикового отопления осуществляются с помощью пайки или механических фитингов. Чаще всего поломки происходят в этих местах;
- Максимальная температура воды . Перед тем как выбрать пластиковые трубы для отопления проводится предварительный расчет температурного режима работы системы. Практически все модели полимерных труб рассчитаны на максимальное температурное воздействие до +90°С;
- Температурное расширение . Это является одним из свойств полимеров. Во время эксплуатации трубы и пластиковые радиаторы отопления могут увеличить свои габаритные размеры на 3-5%. Поэтому для предотвращения повышенного поверхностного натяжения устанавливают специальные компенсационные узлы.
Соединение батареи с трубой. Как правильно подключить батареи отопления своими руками, в зависимости от вида радиатора?
Правильно установленные и подключенные батареи отопления – важная задача. От того, как проведена процедура, зависит насколько комфортно будет находиться в помещении.
Верное расположение расходует меньше топлива, при этом в жилище тепло при любой непогоде.
Особенности установки различных видов радиаторов
Радиаторы отопления для помещения по материалу изготовления разделяются на несколько видов. Каждый имеет свои особенности монтажа.
Давайте перечислим их.
Алюминиевые
Самые бюджетные отопительные приборы. Характеристика моделей:
- корпус изготавливается методом вдавливания расплавленного металла в форму, процесс происходит под высоким давлением;
- конструкция цельная, лёгкая, с проточными каналами внутри;
- поверхность алюминиевая, защищённая прочной плёнкой.
Особенность установки – сложно подсоединить патрубок из алюминия к сети теплоснабжения, который состоит из стали. Причина – прямой контакт двух металлов приводит к образованию разрушительных процессов в алюминии.
Решение проблемы: подключение приборов должно происходить путём прикручивания специализированных переходников для подсоединения к трубам теплоносителя. Можно использовать запорные краны с патрубками из бронзы.

Стальные
Одни из самых популярных моделей отопительных приборов, т. к. батареи из стали нагреваются за считанные минуты. Бывают двух видов: монолитные и секционные трубчатые.
Особенность монтажа – всегда есть возможность увеличить или снизить число регистров в одном радиаторе, заменить повреждённую деталь на новый сегмент.

Биметаллические
Отопительный радиатор, состоящий из двух металлов:
- основа – это каркас в виде трубки из стали, где горизонтальные коллекторы соединены друг с другом вертикальными каналами;
- корпус состоит из алюминия, который повышает теплотехнические функции прибора.

Биметаллические батареи проще всего монтировать самостоятельно. Достаточно иметь под рукой инструкцию, которая идёт в комплекте к любому прибору.
Простота установки приводит к тому, что биметаллические батареи чаще всего выбирают, чтобы произвести замену устаревших радиаторов, не изменяя расположенность трубопроводов с подводящейся горячей водой.
Сгоны и переходники, которые монтируют в ходе подключения, соединяют приспособление с трубой для отопления без сварочных механизмов.
Модели из чугунного материала
По внешнему виду приборы не очень красиво смотрятся, но не всегда стоит акцентировать на этом внимание и отказываться от дешёвого, эффективного и простого в эксплуатации приспособления.

Прибор состоит из отдельных элементов. Батарею принято собирать из разной численности регистров с минимальным количеством в 2-4 шт. В чугунном радиаторе можно убрать или добавить секцию. Подобным образом происходит корректировка производительности и починка обогревательного прибора.
Медные
Наиболее дорогая по стоимости разновидность радиаторов. Цена высока из-за характеристик:
- медь – хорошо проводит тепловую энергию;
- продолжительность службы около 30 лет;
- внутреннее наполнение состоит из вертикальных труб из меди, которые отталкивают вредные примеси теплоносителя;
- металл устойчив перед ржавчиной.
Особенность подключения – вариант крепления приспособления к трубопроводу отопительных систем . Для установки понадобятся специальные фитинговые элементы, сгоны и переходники. Нужно это для того, чтобы избежать прямого контакта меди с железом.
Если в системе задействованы трубы из полипропилена, то придётся купить специализированный набор фитингов.
