Как подключить радиаторы в однотрубной схеме. Лучевая (коллекторная) система
- Как подключить радиаторы в однотрубной схеме. Лучевая (коллекторная) система
- Однотрубная система отопления с нижним подключением. Варианты подключения радиаторов
- Диагональное подключение радиатора отопления при однотрубной системе. Двухтрубный
- Диагональное подключение радиаторов подача снизу. Батареи отопления с боковым подключением
- Радиаторы для однотрубной системы отопления. Виды систем отопления
- Двухтрубная система отопления с нижним подключением. Как устроена двухтрубная система отопления
- Схемы подключения радиаторов отопления. Однотрубная схема отопительных систем
- Подключение радиаторов отопления при двухтрубной системе. О способах подключения батарей
Как подключить радиаторы в однотрубной схеме. Лучевая (коллекторная) система
Коллекторная схема это вариант двухтрубного подключения, но с более сложной разводкой. Применяется в тех случаях, когда нужно скрыть трубы, например под напольным покрытием. В этом случае обустраивается два коллектора – под подачу и под обратку, и от каждого радиатора тянется одна труба в первый коллектор, и еще одна во второй.
В некоторых схемах подключения применяются два вида системы. Весь дом может отапливаться по двухтрубному принципу, но для отдельного участка, например веранды или большой гостиной применена связка нескольких радиаторов по однотрубному принципу. При разработке двухтрубной схемы подключения батарей отопления в частном доме главное не запутаться в коллекторах подачи и обратки.
Схема подключения радиаторов к отопительной системе
Теплоноситель перемещается по трубам и каналам батарей благодаря двум факторам. Первый – это стремление жидкости заполнить пустоты. При отсутствии воздушных пробок создается естественный динамический напор теплоносителя. Второй фактор – движение потоков разной температуры. Горячая вода стремится вверх, вытесняя в нижний поток холодную.
Диагональное верхнее подключение
Диагональное подключение радиаторов с верхней подачей позволяет обустроить самое эффективное отопление помещений. Горячая вода подается в верхний вход, внутри она распространяется по секциям, и, остывая, опускается вниз, после чего вытесняется в нижний вход в коллектор обратки, расположенный с другой стороны радиатора.
Однотрубная система отопления с нижним подключением. Варианты подключения радиаторов
Производя монтаж однотрубной системы отопления, используют следующие варианты подсоединения радиаторных теплообменников:
Нижнее.Нижнее подключение наиболее часто используют в ленинградках. Хотя по эффективности теплообмена батареями его принято считать не самым удачным, благодаря наименьшему расходу трубных материалов, эстетичному внешнему виду открытой магистрали, данный метод получил довольно широкое распространение.
Также при нижнем подсоединении лучше вымываются все загрязнения внизу батарей, что увеличивает срок их службы и снижает вероятность заужения проходного канала из-за отложений.
Диагональное.Подключение батарей по диагонали считается одним из самых лучших вариантов по эффективности теплоотдачи. При его организации подающий трубопровод подсоединяют к верхнему патрубку, а линию обратки к нижнему выводу с противоположной стороны.
Помимо высокой тепловой эффективности, диагональ обеспечивает и более равномерный нагрев всей площади радиаторных теплообменников.
Диагональная схема подсоединения используется в однотрубных ленинградках и при подключении многосекционных батарей к вертикально расположенному стояку.
Рис. 3 Примеры бокового подключения стальных радиаторов
. Подробнее про нижнее подключение радиаторов, специальную арматуру, используемую для этого, можно в отдельной статье на нашем сайте.
Боковое.Подключение радиаторных теплообменников с одной стороны в основном используют в случаях, если центральный трубопровод проложен по вертикали. Данный вариант можно наблюдать в самотечных индивидуальных системах и квартирах многоэтажных коммунальных домов. В последнем случае теплоноситель может поступать в радиатор сверху или снизу.
Чтобы избежать возникновения аварийных ситуаций с нарушением циркуляции отопительной жидкости по контуру при боковом подключении вертикально расположенных батарей, между трубопроводами подачи иобязательно ставят байпасную перемычку.
К главным недостаткам бокового подключения относят часто недостаточный нагрев наиболее удаленных от стояка секций в длинных радиаторах.
Диагональное подключение радиатора отопления при однотрубной системе. Двухтрубный
Применение двух труб помогает избавиться от главного недостатка, который имеет однотрубная подводка — неравномерный нагрев теплообменников. В двухтрубной разводке используются два трубопровода: первый подводит тепловой носитель к отопительным приборам, а второй работает в обратке, транспортируя охлажденную жидкость к котлу. Таким образом, температура последнего в двухтрубной системе теплообменника практически не отличается от параметров первого. Двухтрубная подводка не так часто применяется в коммунальном домостроении, в индивидуальном строительстве имеет несколько вариантов соединения, основные из них — тупиковый и попутный.
В тупиковом варианте включение радиаторных устройств производят последовательно от котла подающим и обратным трубопроводом, при этом чем дальше расположен обогреватель, тем по большему пути проходит до него тепловой носитель. Присоединение последней в цепи батареи происходит по самому длинному пути — это приводит к тому, что тепловые обменники при таком включении прогреваются неравномерно.
Правильное подключение радиаторов отопления при двухтрубной системе — применение попутной схемы Тихельмана, в которой рабочее тело в подающей и обратной линии двигается по замкнутому контуру в одном направлении (отсюда название — попутка). При ее реализации, в отличие от тупикового монтажа, где трубы как бы упираются в тупик на крайнем нагревателе и возвращаются обратно, используется круговая проводка. В этом варианте общая длина контура подачи и обратки, подходящего к каждому радиатору, одинакова вне зависимости от расстояния до котла — это способствует их равномерному прогреву.
Таким образом, попутка является наиболее выигрышной из всех рассмотренных выше разводок с точки зрения равномерности прогрева теплообменников — это помогает сэкономить финансовые средства на установке регулировочных элементов (терморегуляторов) в каждое отдельно стоящее устройство.
Диагональное подключение радиаторов подача снизу. Батареи отопления с боковым подключением
При боковом подключении вариантов намного больше: тут подающий и обратный трубопровод можно подсоединить в два патрубка, соответственно, вариантов четыре.
Вариант №1. Диагональное подключение
Такое подключение радиаторов отопления считают наиболее эффективным, его берут за эталон и именно так испытывают производители свои отопительные приборы и данные в паспорте по тепловой мощности — для такой подводки. Все остальные типы подключения менее эффективно отдают тепло.
Диагональная схема подключения радиаторов отопления при двухтрубной и однотрубной системе
Все потому, что при диагональном подключении батарей горячий теплоноситель подается на верхний вход с одной стороны, проходит через весь радиатор и выходит с противоположной, нижней стороны.
Вариант №2. Одностороннее
Как понятно из названия, подключаются трубопроводы с одной стороны — подача сверху, обратка — снизу. Этот вариант удобен, когда стояк проходит сбоку от отопительного прибора, что часто бывает в квартирах, потому именно такой тип подключения обычно и преобладает. Когда теплоноситель подводится снизу, такая схема используется нечасто — не очень удобно располагать трубы.
Боковое подключение для двухтрубной и однотрубной системы
При таком подключении радиаторов эффективность нагрева только чуть ниже — на 2 %. Но это только если секций в радиаторах немного — не более 10. При более длинной батарее ее дальний от край будет плохо греться или вообще останется холодным. В панельных радиаторах для решения проблемы ставят удлинители потока — трубки, которые доводят теплоноситель чуть дальше середины. Такие же устройства можно устанавливать в алюминиевые или биметаллические радиаторы, улучшая при этом теплоотдачу.
Вариант №3. Нижнее или седельное подключение
Из всех вариантов седельное подключение радиаторов отопления самое малоэффективное. Потери составляют примерно 12-14%. Но данный вариант самый незаметный — трубы обычно укладываются по полу или под ним и такой способ наиболее оптимальный с точки зрения эстетики. А чтобы потери не влияли на температуру в помещении, можно радиатор взять чуть более мощный чем требуется.
Седельное подключение радиаторов отопления
В системах с естественной циркуляцией такой тип подключения делать не стоит, а вот при наличии насоса работает она неплохо. В некоторых случаях даже не хуже бокового. Просто при какой-то скорости движения теплоносителя возникают вихревые потоки, вся поверхность разогревается, повышается теплоотдача. Данные явления пока не изучены до конца, потому спрогнозировать поведение теплоносителя пока невозможно.
Радиаторы для однотрубной системы отопления. Виды систем отопления
Количество тепла, которое будет излучать радиатор отопления, не в последнюю очередь зависит от вида системы отопления и выбранного типа подключения. Чтобы выбрать оптимальный вариант, надо сначала разобраться с тем, какие именно системы отопления бывают и чем они отличаются.
Однотрубные
Однотрубная система отопления — наиболее экономичный вариант с точки зрения затрат при монтаже. Потому именно такой тип разводки предпочитают в многоэтажных домах, хотя и в частных такая система далеко не редкость. При такой схеме радиаторы включены в магистраль последовательно и теплоноситель проходит сначала через один отопительный пробор, затем поступает на вход второго и так далее. Выход последнего радиатора подключается ко входу котла отопления или к стояку в многоэтажках.

Пример однотрубной системы
Недостаток такого способа разводки — невозможность регулировки теплоотдачи радиаторов. Установив регулятор на любом из радиаторов, вы будете регулировать всю остальную систему. Второй значительный недостаток — разная температура теплоносителя на различных радиаторов. Те, которые находятся ближе к котлу, греются очень хорошо, которые дальше — становятся все холоднее. Это — следствие последовательного подключения радиаторов отопления.
Двухтрубная разводка
Двухтрубная система отопления отличается тем, что в ней имеется две нитки трубопровода — подающий и обратный. Каждый радиатор подключен к обеим, то есть получается, что все радиаторы подключены к системе параллельно. Это хорошо тем, что на вход каждого из них поступает теплоноситель одной температуры. Второй положительный момент — на каждый из радиаторов можно установить терморегулятор и с его помощью изменять количество тепла, которое он выделяет.

Недостаток такой системы — количество труб при разводке системы больше почти в два раза. Зато систему легко можно сбалансировать.
Двухтрубная система отопления с нижним подключением. Как устроена двухтрубная система отопления
Отопление частного дома с использованием радиаторов подразумевает обустройство трубопроводной сети. Двухтрубная система отопления лучше всего подходит для самостоятельного изготовления, так как «прощает» неопытному мастеру некоторые ошибки в работе.
Общие сведения о двухтрубной системе отопления
Любая система обогрева с жидким теплоносителем состоит из одного или нескольких замкнутых контуров, соединяющих радиаторы и котёл.
В двухтрубной разводке горячий теплоноситель подаётся по одной ветви контура, а возвращается по другой, отсюда и происходит название.
Схема типичной двухтрубной системы отопления в частном доме.
Признаки классификации:
- Организация движения теплоносителя – самотёчная и принудительная.
- Конструкция – открытая или закрытая, горизонтальная или вертикальная.
- Разводка труб – лучевая, тупиковая, кольцевая.
Комбинируя свойства, можно добиться наилучшего соответствия условиям эксплуатации.
Преимущества и недостатки
Плюсы и минусы двухтрубной системы следует рассматривать с учётом эксплуатационных свойств и технических характеристик.
| Преимущества | Недостатки |
| Одинаковая температура теплоносителя во всех радиаторах | Повышенный расход труб – к радиатору необходимо вести 2 ветки, подводящую и отводящую |
| Регулировка теплоотдачи каждой батареи | Большой диаметр труб стояка и подводки к первым в контуре радиаторам |
| Небольшое гидравлическое сопротивление | |
| Работоспособность всей системы при поломке одного или нескольких радиаторов | |
| Использование в зданиях большой этажности | |
| Гибкость вариантов подводки – в полу, в стенах, вдоль стен, под потолком и за фальшпотолком |
В таблице отмечены общие для всех двухтрубных сетей недостатки. Однако каждому варианту разводки могут быть присущи отрицательные качества, ограничивающие применение, которые мы еще рассмотрим далее.
Схемы открытых и закрытых двухтрубных систем отопления
Циркуляция теплоносителя осуществляется тремя способами:
- самотёчным (гравитационный);
- принудительным с помощью насоса;
- комбинированным.
Кроме того, системы разделяются на открытые и закрытые. Этот показатель характеризует взаимодействие теплоносителя и атмосферы.
При нагревании объём любого жидкого теплоносителя увеличивается. Известно, что жидкость практически не поддаётся сжатию, поэтому для размещения «излишков» требуется отдельное устройство – расширительный бак.
Открытый тип
Схема двухтрубной системы отопления открытого типа.
В открытых системах бак устанавливают в высшей точке, он соединён с атмосферой патрубком.
Преимущества открытой системы – простота и минимум дополнительных устройств. В качестве расширительного бачка используют любую.
Готовый расширительный бак под СО открытого типа.
По мере необходимости в бак добавляют воду. Для этого:
- устанавливают краны и соединяют систему с водопроводом;
- доливают теплоноситель через открывающийся люк.
Внимание! Открытую систему не допускается заполнять антифризом – испарившиеся газы могут быть ядовиты.
Закрытый тип
В закрытых системах используют герметичный расширительный бачок с эластичной диафрагменной или баллонной мембраной внутри. Мембрана разделяет устройство на 2 части. В одну камеру насосом нагнетают воздух под давлением 1,2–1,5 атм, а вторая соединена с трубой системы отопления.
Когда теплоноситель нагревается и расширяется, его избыток заполняет бачок. При понижении температуры жидкости мембрана выдавливает теплоноситель в систему. Предварительное нагнетание в бак воздуха позволяет поддерживать давление, необходимое для работы котла, автоматика которого отключает питание при давлении меньше 1,2 атм.
В герметичных конструкциях можно использовать антифризы или гликоли.
Схема двухтрубной системы отопления закрытого типа.
В закрытых сетях бак располагают неподалёку от котла, что упрощает контроль за работоспособностью всей конструкции.
Самотёчные схемы
Самотёчные (гравитационные) системы работают за счёт законов физики. При нормальном атмосферном давлении, будучи нагретой до 50оС, вода имеет плотность 988 кг/м3, а при 85оС — 968 кг м3.
Схема двухтрубной гравитационной системы открытого типа.
В отопительном контуре горячая вода (более лёгкая) поднимается по трубам, а остывший в радиаторах теплоноситель движется вниз, возвращаясь в котел по «обратке». Циркуляционный насос не используется.
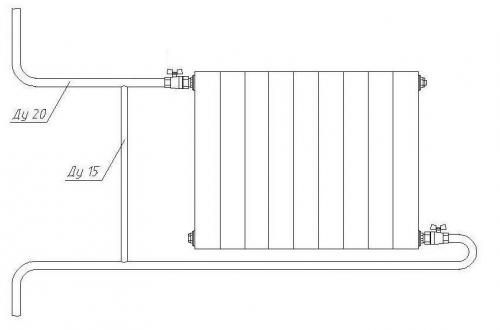
Схемы подключения радиаторов отопления. Однотрубная схема отопительных систем

Однотрубная система отопления: вертикальная и горизонтальная разводка.
В однотрубной схеме систем отопления подвод горячего теплоносителя (подача) к радиатору и отвод остывшего (обратка) осуществляется по одной трубе. Все приборы относительно направления движения теплоносителя соединены между собой последовательно. Поэтому температура теплоносителя на входе в каждый последующий радиатор по стояку значительно снижается после снятия тепла с предыдущего радиатора. Соответственно теплоотдача радиаторов с удалением от первого прибора снижается.
Такие схемы используются, в основном, в старых системах центрального теплоснабжения многоэтажных зданий и в автономных системах гравитационного типа (естественная циркуляция теплоносителя) в частных жилых домах. Главным определяющим недостатком однотрубной системы является невозможность независимой регулировки теплоотдачи каждого радиатора в отдельности.
Для устранения этого недостатка возможно использование однотрубной схемы с байпасом (перемычкой между подачей и обраткой), но и в этой схеме первый радиатор будет на ветке всегда самый горячий, а последний самым холодным.

В многоэтажных домах используется вертикальная однотрубная система отопления.
В многоэтажных домах использование такой схемы позволяет экономить на длине и стоимости подводящих сетей. Как правило, отопительная система выполнена в виде вертикальных стояков, проходящих через все этажи здания. Теплоотдача радиаторов рассчитывается при проектировании системы и не может быть отрегулирована с помощью радиаторных вентилей или другой регулирующей арматуры. При современных требованиях к комфортным условиям в помещениях, эта схема подключения приборов водяного обогрева не удовлетворяет требованиям жителей квартир, находящихся на разных этажах, но присоединенных к одному стояку системы отопления. Потребители тепла вынуждены «терпеть» перегрев или недогрев температуры воздуха в переходный осенний и весенний период.

Отопление по однотрубной схеме в частном доме.
В частных домах однотрубная схема используется в гравитационных отопительных сетях, в которых циркуляция горячей воды осуществляется благодаря дифференциалу плотностей нагретого и остывшего теплоносителей. Поэтому такие системы получили название естественных. Главным плюсом этой системы является энергонезависимость. Когда, например, при отсутствии в системе циркуляционного насоса, подключаемого к сетям электроснабжения и, в случае перебоев с энергопитанием, система отопления продолжает функционировать.
Главным недостатком гравитационной однотрубной схемы подключения является неравномерное распределение температуры теплоносителя по радиаторам. Первые радиаторы на ветке будут самые горячие, а по мере удаления от источника тепла температура будет падать. Металлоемкость гравитационных систем всегда выше, чем у принудительных за счет большего диаметра трубопроводов.
Подключение радиаторов отопления при двухтрубной системе. О способах подключения батарей
Начнем с того, что схема подключения бывает:
- односторонней;
- перекрестной;
- нижней.

Схемы подключения радиаторов отопления
По одностороннему варианту подключение производится, как правило, в городских квартирах, где используется центральное отопление. Здесь трубы подсоединяются лишь с одной стороны батареи. Преимущество схемы в том, что система может работать с максимальной номинальной мощностью, однако то, насколько эффективна теплоотдача, зависит от кол-ва секций батареи. Вода в данном случае не может доходить до удаленных от места подсоединения участков, что негативно влияет на эффективности всей отопительной системы. Данный эффект особенно заметен при использовании батареи, состоящей из 15-ти секций, потому при подключении многосекционных радиаторов предпочтение лучше отдавать другой схеме.

Адаптер для нижнего одностороннего подключения радиатора
В последние годы все большую популярность обретают биметаллические радиаторы, их можно подключать по диагональной (ее также называют перекрестной) схеме. Суть данной схемы в том, что подводка подсоединяется сверху, а отводка – снизу, но с другой стороны. При таком монтаже жидкость более равномерно распределяется по батарее, а значит, минимизируются потери ее мощности.

Диагональное подключение радиаторов отопления
На заметку! При использовании диагональной схемы необходимо учитывать то, как располагаются отводящая/подводящая трубы. Ведь если подвод сделать снизу, а отвод – сверху, то радиатор может потерять свыше 50% своей мощности.

Диагональная схема подключения радиаторов отопления при двухтрубной и однотрубной системе
Порой описанные выше схемы по тем или иными причинам не используются в помещении. Тогда остается только нижнее подключение , при котором образуется сквозной проход теплоносителя; очевидно, что до верхних секций радиатора жидкость в таком случае не доходит, из-за чего теплоотдача может снизиться на 15%. Тем не менее, данную схему нередко применяют в частных домах с индивидуальным отоплением. А теплоотдачу можно восполнить посредством распределительных трубок.
