Как соединить пропиленовую трубу с радиатором отопления. Особенности обвязки труб из полипропилена
- Как соединить пропиленовую трубу с радиатором отопления. Особенности обвязки труб из полипропилена
- Подключение радиаторов отопления к металлическим трубам. О способах подключения батарей
- Схемы подключения радиаторов отопления. Однотрубная схема отопительных систем
- Как подключить два радиатора к одной трубе. Однотрубный
- Соединение батареи с трубой. Как устроен радиатор отопления
- Фитинги для подключения радиаторов отопления. Разновидности соединительных элементов
- Подключение чугунной батареи полипропиленом. В чем секрет популярности
- Какой трубой подключить радиатор отопления. Устройство радиатора отопления
Как соединить пропиленовую трубу с радиатором отопления. Особенности обвязки труб из полипропилена
Основное достоинство пропиленовых труб, как они выглядят видно на фото, заключается в возможности создавать контур отопления любой конструкции. Если для обустройства системы теплоснабжения используется довольно сложная схема обвязки радиаторов отопления, вполне можно применять полипропиленовые изделия. Но при этом следует учитывать, что продолжительный трубопровод характеризуется высокой степенью теплопотерь.Перед тем, как создавать отопительную систему, владельцу недвижимости следует хорошенько все обдумать, возможно, ее лучше сделать более простой и тем самым повысить эффективность теплоснабжения.Нет необходимости пользоваться трубогибами и «болгарками», когда формируется узел обвязки радиатора. Соединение между собой полипропиленовых труб выполняться может одним из двух способов. Первый из них – это спайка. Такой метод считается наиболее надежным и при качественном выполнении работ протечка исключена.Второй способ соединения заключается в применении фитингов. Но такой метод менее надежен: в случае даже минимального смещения теплоноситель начинает просачиваться. Когда выполняется обвязка батарей отопления и есть возможность не делать соединение, ею непременно лучше воспользоваться.

Подключение радиаторов отопления к металлическим трубам. О способах подключения батарей
Начнем с того, что схема подключения бывает:
- односторонней;
- перекрестной;
- нижней.

Схемы подключения радиаторов отопления
По одностороннему варианту подключение производится, как правило, в городских квартирах, где используется центральное отопление. Здесь трубы подсоединяются лишь с одной стороны батареи. Преимущество схемы в том, что система может работать с максимальной номинальной мощностью, однако то, насколько эффективна теплоотдача, зависит от кол-ва секций батареи. Вода в данном случае не может доходить до удаленных от места подсоединения участков, что негативно влияет на эффективности всей отопительной системы. Данный эффект особенно заметен при использовании батареи, состоящей из 15-ти секций, потому при подключении многосекционных радиаторов предпочтение лучше отдавать другой схеме.

Адаптер для нижнего одностороннего подключения радиатора
В последние годы все большую популярность обретают биметаллические радиаторы, их можно подключать по диагональной (ее также называют перекрестной) схеме. Суть данной схемы в том, что подводка подсоединяется сверху, а отводка – снизу, но с другой стороны. При таком монтаже жидкость более равномерно распределяется по батарее, а значит, минимизируются потери ее мощности.

Диагональное подключение радиаторов отопления
На заметку! При использовании диагональной схемы необходимо учитывать то, как располагаются отводящая/подводящая трубы. Ведь если подвод сделать снизу, а отвод – сверху, то радиатор может потерять свыше 50% своей мощности.

Диагональная схема подключения радиаторов отопления при двухтрубной и однотрубной системе
Порой описанные выше схемы по тем или иными причинам не используются в помещении. Тогда остается только нижнее подключение , при котором образуется сквозной проход теплоносителя; очевидно, что до верхних секций радиатора жидкость в таком случае не доходит, из-за чего теплоотдача может снизиться на 15%. Тем не менее, данную схему нередко применяют в частных домах с индивидуальным отоплением. А теплоотдачу можно восполнить посредством распределительных трубок.

Схемы подключения радиаторов отопления. Однотрубная схема отопительных систем

Однотрубная система отопления: вертикальная и горизонтальная разводка.
В однотрубной схеме систем отопления подвод горячего теплоносителя (подача) к радиатору и отвод остывшего (обратка) осуществляется по одной трубе. Все приборы относительно направления движения теплоносителя соединены между собой последовательно. Поэтому температура теплоносителя на входе в каждый последующий радиатор по стояку значительно снижается после снятия тепла с предыдущего радиатора. Соответственно теплоотдача радиаторов с удалением от первого прибора снижается.
Такие схемы используются, в основном, в старых системах центрального теплоснабжения многоэтажных зданий и в автономных системах гравитационного типа (естественная циркуляция теплоносителя) в частных жилых домах. Главным определяющим недостатком однотрубной системы является невозможность независимой регулировки теплоотдачи каждого радиатора в отдельности.
Для устранения этого недостатка возможно использование однотрубной схемы с байпасом (перемычкой между подачей и обраткой), но и в этой схеме первый радиатор будет на ветке всегда самый горячий, а последний самым холодным.

В многоэтажных домах используется вертикальная однотрубная система отопления.
В многоэтажных домах использование такой схемы позволяет экономить на длине и стоимости подводящих сетей. Как правило, отопительная система выполнена в виде вертикальных стояков, проходящих через все этажи здания. Теплоотдача радиаторов рассчитывается при проектировании системы и не может быть отрегулирована с помощью радиаторных вентилей или другой регулирующей арматуры. При современных требованиях к комфортным условиям в помещениях, эта схема подключения приборов водяного обогрева не удовлетворяет требованиям жителей квартир, находящихся на разных этажах, но присоединенных к одному стояку системы отопления. Потребители тепла вынуждены «терпеть» перегрев или недогрев температуры воздуха в переходный осенний и весенний период.

Отопление по однотрубной схеме в частном доме.
В частных домах однотрубная схема используется в гравитационных отопительных сетях, в которых циркуляция горячей воды осуществляется благодаря дифференциалу плотностей нагретого и остывшего теплоносителей. Поэтому такие системы получили название естественных. Главным плюсом этой системы является энергонезависимость. Когда, например, при отсутствии в системе циркуляционного насоса, подключаемого к сетям электроснабжения и, в случае перебоев с энергопитанием, система отопления продолжает функционировать.
Главным недостатком гравитационной однотрубной схемы подключения является неравномерное распределение температуры теплоносителя по радиаторам. Первые радиаторы на ветке будут самые горячие, а по мере удаления от источника тепла температура будет падать. Металлоемкость гравитационных систем всегда выше, чем у принудительных за счет большего диаметра трубопроводов.
Как подключить два радиатора к одной трубе. Однотрубный
Однотрубное подключение радиаторов относят к самым дешевым способам обогрева помещений, для его реализации тепло подается последовательно в каждый из обогревателей. С выхода последнего по обратке рабочее тело поступает в котел и после нагрева снова направляется в радиаторы отопления, совершая круговое циклическое движение.
Однотрубная система широко применяется как в многоэтажках, так и в индивидуальном строительстве при обогреве коттеджей и дач. К ее преимуществам относят минимальный расход материалов, существенным недостатком является неравномерный нагрев – к радиатору, самому последнему в цепи, поступает жидкость с наименьшей температурой.
Рис. 2 Соединение радиаторов в однотрубной системе по схеме ленинградка
Решить проблему неравномерного прогрева в однотрубной разводке помогают различные инженерные решения, которые с одинаковой эффективностью используют в коммунальном и индивидуальном домостроении. Правильное подключение радиаторов отопления при однотрубной системе состоит в выборе одной из двух популярных схем ленинградки – с подсоединением отводов внизу или по диагонали.
В ленинградке реализовано последовательное подключение радиаторов отопления следующим способом: трубопровод проходит внизу у пола от выхода ко входу котла, делая замкнутую петлю, а все теплообменники подключаются к ней параллельно через нижние (верхние) входные и выходные фитинги.
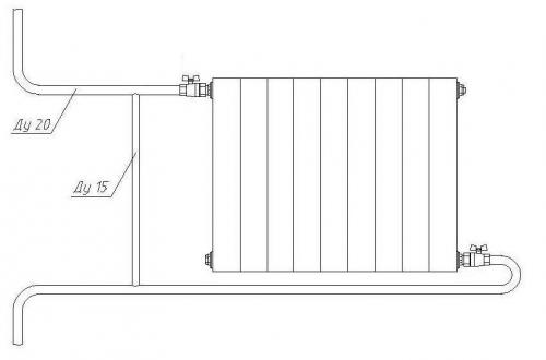
Подключение радиатора к однотрубной системе отопления с байпасом широко применяется в многоквартирных и частных домах, для его реализации задействуют входной и выходной батарейные фитинги с одной стороны, а между подающей и обратной трубой врезают вертикальную перемычку небольшого диаметра (байпас на рис. 9 слева).
Соединение батареи с трубой. Как устроен радиатор отопления
Если упрощенно взглянуть на большинство радиаторов отопления, то их гидравлическая конструкция представляет собой достаточно несложную, понятную схему. Это два горизонтальных коллектора, которые соединены между собой вертикальными каналами-перемычками, по которым происходит перемещение теплоносителя. Вся эта система или выполнена из металла, обеспечивающего необходимую высокую теплоотдачу (яркий пример – мощность секции чугунного радиатора ), либо «одета» в специальный кожух, конструкция которого предполагает максимальную площадь контакта с воздухом (например, биметаллические радиаторы).

Очень упрощенно – схема устройства большинства радиаторов отопления
1 – Верхний коллектор;
2 – Нижний коллектор;
3 – Вертикальные каналы в секциях радиатора;
4 – Теплообменный корпус (кожух) радиатора.
Оба коллектора, верхний и нижний, с обеих сторон имеют выходы (соответственно, на схеме верхняя пара В1-В2, и нижняя В3-В4). Понятно, что при подключении радиатора к трубам контура отопления подключается лишь два выхода из четырех, а оставшиеся два глушатся. И вот от схемы подключения, то есть от взаимного расположения трубы подачи теплоносителя и выхода в «обратку» во многом зависит эффективность работы установленной батареи.
И прежде всего, планируя установку радиаторов, хозяин должен точно разобраться, какая же система отопления функционирует или будет создаваться в его доме или квартире. То есть он должен четко представлять, откуда поступает теплоноситель и в какую сторону направлен его поток.
Фитинги для подключения радиаторов отопления. Разновидности соединительных элементов
Совет: не стоит экономить на рассматриваемых компонентах отопительной системы. Хоть они и могут казаться малозначительными, именно на них осуществляется наибольшая нагрузка.
Фитинги для подключения радиаторов отопления бывают следующих видов:
Вид №1: муфта

Фото латунных муфт
Это наиболее простые элементы, позволяющие создать элементарное соединение трубы с входом в батарею в том случае, если их диаметры совпадают. Цена таких деталей наиболее низкая.
Вид №2: переходники
Образец металлического переходника
Это та же муфта, но уже с отличающимися на концах диаметрами, что позволяет выполнить подсоединение даже в случае несоответствия соединяемых элементов. Размеры фитингов для радиаторов при этом соответствуют стандартам используемых в сантехнике труб.
Схема переходника
Вид №3: углы или отводы

Угловой сгон
Позволяют направить трубу от батареи под нужным углом, например в обход предмета мебельного интерьера или выступа стены.
Схема отвода
Вид №4: тройники

Тройник для подключения перемычки
Благодаря использованию тройников можно установить специальную перемычку перед батареей. Это даёт возможность отключения радиатора для замены или ремонта без остановки всей отопительной системы, так как теплоноситель попросту пойдёт другим путём в случае перекрытия вентилей.
Схема тройника
Вид №5: крестовины

Образец крестовины
Позволяют объединить трубы с одинаковыми диаметрами в точках их разветвления. При подключении к батареям используются редко, но знать о них всё равно не помешает.
Схема крестовины
Вид №6: штуцер

Образец штуцера
Штуцер, как правило, используется для подсоединения к батарее гибкого шланга, что требуется для его промывки. Также бывают модели, позволяющие соединять металлические трубы с полипропиленовыми.
Подключение чугунной батареи полипропиленом. В чем секрет популярности
- Начнем с того, что такие агрегаты считаются едва ли не самыми долговечными . Большинство солидных производителей смело дают гарантию на 50 лет. И это вполне оправдано, к примеру, в Царском селе по сей день функционирует радиатор, установленный еще 110 лет назад;
Важно: бытует мнение по поводу того, что сейчас чугунный радиатор хуже чем советских времен.
Это верно лишь отчасти.
Здесь все зависит от качества изделия и фирмы производителя.
Если батарея отлита согласно отечественным или европейским ГОСТам, то бояться нечего.
Но приобретая агрегаты от китайских или турецких «мастеров», человек, по сути, берет кота в мешке.

Стандартный МС 140.
- Чугун по своим характеристикам хотя и хрупкий металл, но все же достаточно прочный . Рабочим давлением для такой батареи является 8 – 12 атмосфер, плюс при кратковременных скачках или гидроударах, она может выдерживать нагрузку до 20 атмосфер. Если учесть тот факт, что в городской сети давление редко превышает 6 – 8 атмосфер, а средняя сила гидроудара 15 – 20 атмосфер, то запас прочности очевиден;
- Такие батареи присутствуют как в бюджетном сегменте рынка, так и в элитных товарах . Дело в том, что цена на классические МС-140 едва ли не самая низкая. В то же время стоимость художественного толстостенного литья может порой в несколько раз превышать цену хорошего биметалла;
- Приверженцы современных материалов забывают о качестве теплоносителя в наших городских сетях . Этот жесткий «коктейль» способен вывести из строя многие новомодные модели. В то время как чугун отличается абсолютной устойчивостью к любым химическим атакам и нейтральностью к коррозии, он попросту не ржавеет;

Дизайн современных батарей из чугуна.
- Благодаря большому диаметру каналов батареи, любой мусор проскакивает через нее, практически не задерживаясь . что весьма актуально для городских многоэтажек, со старой трубной разводкой ;
- Как известно чугун обладает высокой теплоемкостью . Батарея долго набирает температуру, но также долго ее удерживает. При перебоях с отоплением данный агрегат будет отдавать тепло еще несколько часов после отключения;

Варианты подсоединения батарей.
- Технически, установка чугунного радиатора отопления своими руками не представляет большой сложности . При наличии инструмента и пары помощников для поддержки, работу можно закончить в течение дня;
- Еще одним немаловажным достоинством считается тот факт, что комплектующие для чугунных радиаторов отопления можно найти в любом хозяйственном магазине и цена на них вполне приемлемая;
Характеристики современных чугунных радиаторов.
С причинами всенародной популярности мы как бы разобрались.
Теперь давайте поговорим о подводных камнях этих отопительных приборов:
- Первая причина, по которой многие отказываются от чугуна, это серьезный вес конструкции. Посудите сами, стандартная секция имеет массу порядка 7 кг, на одну комнату в среднем устанавливается 7 – 10 секций. В результате имеем от 50 до 70 кг пустой конструкции, при заполнении добавляется еще 1 – 1,5 кг на каждую секцию. Помимо проблем с установкой, не каждая стена может выдержать такой агрегат;
- Минимальный объем теплоносителя в одной ячейке составляет порядка 1л. У современных конкурентов этот показатель меньше в 3 – 5 раз. А как известно, чем больше жидкости, тем больше энергии требуется для ее прогрева и поддержания температуры. Плюс быстро регулировать температуру в таких системах. благодаря высокой инертности, весьма затруднительно;

Данные классического чугунного радиатора МС 140.
Какой трубой подключить радиатор отопления. Устройство радиатора отопления
состоит из нескольких теплообменных секций. Чем больше секций, тем, соответственно, выше мощность батареи. Существуют такие модели радиаторов, которые можно «доращивать» новыми секциями в случае необходимости уже в процессе эксплуатации.
Через все секции проходит один коллектор в верхней части и один в нижней. В каждой секции есть вертикальный канал, соединяющий верхний и нижний коллектор. Это касается всех секций, включая крайние. Поэтому радиатор имеет 4 выхода, но используются только два из них. Один подключается к трубе подачи теплоносителя, а второй служит для отвода остывшей воды обратно в котел. Незадействованные выходы закрывают заглушками. Так устроено большинство радиаторов.
Виды трубной системы
В схеме отопительной системы принципиальное значение имеет взаиморасположение входа подачи теплоносителя и выхода «обратки». Это зависит от направления теплоносителя и от типа трубной системы.
Однотрубная система
Это упрощенный вариант обустройства отопления в коттедже. Данный вариант довольно экономичен, так как требует для разводки меньше труб и выполняется с меньшими трудозатратами на монтажные работы. Система представляет собой цепь радиаторов, соединенных одной трубой. Теплоноситель, нагретый в котле, поступает поочередно в каждый радиатор, перетекая из одного в другой. То есть «обратка» из одой батареи становится подачей для следующей, и т. д.
Для однотрубных систем сейчас можно установить специальные модули Радиплект и Радиплект Терм от Gibax, благодаря которым можно поддерживать температуру в домеилирежимами. Их монтаж достаточно прост, а минимальное количество соединений даст дополнительную гарантию на надежность соединений.
Однотрубная схема подключения радиаторов отопления в частном доме имеет один существенный недостаток – при ней радиаторы нагреваются неравномерно. Самым горячим всегда будет первый радиатор, а дальше от батареи к батарее температура будет постепенно снижаться. Следовательно, поддерживать одинаковую температуру во всех помещениях имея однотрубное отопление невозможно.
При определенных особенностях планировки однотрубная система может быть вполне подходящей. Так, если в небольшом доме цепь радиаторов будет начинаться с жилых комнат и заканчиваться техническими помещениями, этот вариант может оказаться оптимальной. Но в просторных коттеджах лучше устанавливать двухтрубное отопление.
Двухтрубная система
Более дорогостоящий в обустройстве, но простой и удобный в эксплуатации вариант. В этой системе функционируют одновременно две линии труб. Первая подает горячую воду к каждой батарее. То есть идет одна труба с заходом в каждый радиатор. Теплоноситель, прежде чем попасть в радиатор, независимо от его расположения в цепи, не заходит в соседние радиаторы, а идет напрямую. Вторая труба собирает обратку из всех радиаторов и доставляет ее в коллектор нагрева.
Преимущества донного типа разводки в том, что во всех точках теплообмена достигается практически одна температура. Такая система лучше поддается регулировке и обеспечивает равномерный обогрев всего здания.
Лучевая (коллекторная) система
Коллекторная схема это вариант двухтрубного подключения, но с более сложной разводкой. Применяется в тех случаях, когда нужно скрыть трубы, например под напольным покрытием. В этом случае обустраивается два коллектора – под подачу и под обратку, и от каждого радиатора тянется одна труба в первый коллектор, и еще одна во второй.
В некоторых схемах подключения применяются два вида системы. Весь дом может отапливаться по двухтрубному принципу, но для отдельного участка, например веранды или большой гостиной применена связка нескольких радиаторов по однотрубному принципу. При разработке двухтрубной схемы подключения батарей отопления в частном доме главное не запутаться в коллекторах подачи и обратки.
Терморегулятор для радиатора отопления: конструкция и установка
Схема подключения радиаторов к отопительной системе
Теплоноситель перемещается по трубам и каналам батарей благодаря двум факторам. Первый – это стремление жидкости заполнить пустоты. При отсутствии воздушных пробок создается естественный динамический напор теплоносителя. Второй фактор – движение потоков разной температуры. Горячая вода стремится вверх, вытесняя в нижний поток холодную.
Диагональное верхнее подключение
Диагональное подключение радиаторов с верхней подачей позволяет обустроить самое эффективное отопление помещений. Горячая вода подается в верхний вход, внутри она распространяется по секциям, и, остывая, опускается вниз, после чего вытесняется в нижний вход в коллектор обратки, расположенный с другой стороны радиатора.