Варианты систем отопления двухэтажного частного дома. Схема отопления двухэтажного дома гарантирует правильную установку отопительного оборудования
- Варианты систем отопления двухэтажного частного дома. Схема отопления двухэтажного дома гарантирует правильную установку отопительного оборудования
- Схема отопления двухэтажного дома с настенным газовым котлом. Виды отопительных систем
- Схема отопления двухэтажного дома с теплым полом. На газе
- Какую систему отопления выбрать для двухэтажного дома. Особенности отопления двухэтажного дома
- Система отопления двухэтажного дома ленинградка. Конструктивные особенности
- Отопление двухэтажного дома двухконтурным котлом. Чем отличается двухконтурный котел
Варианты систем отопления двухэтажного частного дома. Схема отопления двухэтажного дома гарантирует правильную установку отопительного оборудования
Одним из самых главных заданий перед окончательным ремонтом является именно установка системы отопления. Сначала нужно сделать правильную схему отопления двухэтажного дома для того, чтобы все удалось. Ведь с отопительной системой Вы будете чувствовать себя комфортно и уютно в своем собственном частном доме.
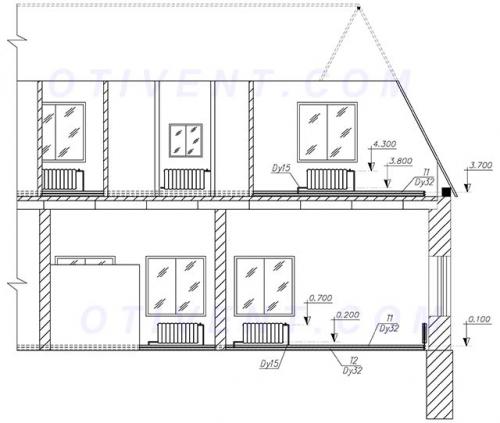
Рис. 1 План отопления двухэтажного дома
От правильного проекта отопления двухэтажного дома зависит эффективность и срок службы одноконтурного или двухконтурного отопительного оборудования, поэтому к этому делу нужно отнестись со всей серьезностью. Самое первая задача перед установкой одноконтурных отопительных агрегатов – это сделать расчет по поводу того, сколько нужно приобрести труб и других обязательных элементов крепления. Схема отопления двухэтажного дома зачастую требует установку двухтрубной системы.
Что нужно приобрести для того, чтобы установить одноконтурное или двухконтурное отопительное оборудование в доме:
- Во-первых, нужно определиться с выбором газового котла.
- Далее нужно подумать о количестве труб и о месте, где они будут устанавливаться.
- Стоит также подумать о том, как сделать правильную разводку.
- Далее нужно приобрести различные краники, фитинги и приборы для контроля и регулирования аппаратуры.
Если все правильно подобрать и следовать проекту отопления частного двухэтажного дома, то установка отопительной системы пройдет гладко и без проблем.
Схема отопления двухэтажного дома с настенным газовым котлом. Виды отопительных систем
Практика показывает, что большинство домовладельцев выдвигает к системе отопления двухэтажного дома 3 основных требования:
- В доме всегда должно быть тепло.
- Минимальный расход энергоносителей – природного газа, дров, электричества и так далее.
- Красота. Трубы, арматуру и приборы обогрева желательно убрать с глаз, чтобы не портили интерьер.
Требования перечислены в порядке важности с точки зрения пользователей. О стоимости монтажа мы поговорим в процессе рассмотрения систем.

Пожелания вполне понятны, но их следует увязать с техническими возможностями. Например, в отдаленных регионах случаются перебои с подачей электроэнергии либо отсутствует магистральный газ. Отсюда совет: сначала определите основное топливо и резервный энергоноситель, подберите котел и отопительные приборы . Отразите пожелания на бумаге – набросайте своими руками черновой проект.
Далеко не всегда хозяин дома может сам обустраивать инженерные сети – разрабатывать схемы, монтировать оборудование и трубы. В таком случае есть смысл обратиться к специалистам инженерной фирмы, которая занимается перечисленными работами. Например, в центральном регионе РФ услуги по установке котлов и монтажу систем отопления оказывает компания «ТеплоМосква».
Такой основательный подход позволит смонтировать схему отопления двухэтажного дома, которую не придется переделывать впоследствии. На выбор есть 5 вариантов систем:
- самотечная (она же – гравитационная и конвекционная);
- однотрубная;
- двухтрубная;
- лучевая (иначе – коллекторная);
- водяные контуры напольного обогрева, называемые теплыми полами.
Примечание. Первая схема подразумевает естественную циркуляцию теплоносителя по трубам и сообщающийся с атмосферой расширительный бак. В остальных реализован принцип принудительной циркуляции с помощью насоса и работа под давлением (используется закрытый мембранный бачок).

Пример чернового проекта отопления 2-этажного особняка
Указанные системы допускается комбинировать друг с другом. К примеру, на первом этаже сделать теплые полы, а на втором собрать лучевую схему. Теперь подробно рассмотрим каждый вариант по отдельности.
Схема отопления двухэтажного дома с теплым полом. На газе
Применение газа является самым дешевым видом топлива по энергоэффективности, однако и в данном способе есть масса отрицательных сторон.
В первую очередь это непомерные цены за услуги государственных организаций, подключающих индивидуальные дома к газовой магистрали. Для Московской области расценка в 2 миллиона рублей за подвод к забору индивидуального участка отрезка полимерного трубопровода небольшой длины в траншее под землей считается средней. К тому же придется тратить немало времени и средств на оформление документов, постройку отдельной котельной, внутреннюю разводку, закупку оборудования, монтаж теплых полов или радиаторов.
То есть начальные затраты на газовое отопление могут быть чрезмерно высокими для потребителей со средними доходами, но в дальнейшем из-за невысокой стоимости природного газа вложения окупятся.
В районах, где газовая магистраль проходит слишком далеко от дома, один из вариантов — применение газгольдеров. Обычно резервуар средним объемом около 5 кубических метров закапывают в землю и заправляют его сжиженным газом, которого многим хватает на один отопительный сезон.
Основной недостаток этого метода — высокая цена сжиженного газа, а также зависимость от энергетических компаний, устанавливающих цену на топливо по своему усмотрению.
Одно из главных преимуществ газа — возможность функционирования отопительной системы при отключении электроэнергии. Правда в этом случае придется использовать бензиновый генератор электричества для обеспечения функционирования котла и насосного оборудования.
Что такое автономная газификация индивидуального дома . В статье подробно рассказывается, как организовать автономную систему газификации в частном доме, какое нужно оборудование, кто его устанавливает, какие понадобятся документы!
Какую систему отопления выбрать для двухэтажного дома. Особенности отопления двухэтажного дома
Многие владельцы загородных двухэтажных домов ещё до окончания постройки начинают колебаться в выборе отопительной системы и основного нагревательного элемента. Газовой обогрев достаточно дорогой, но сам котел стоит несколько дешевле электрических аналогов. Кроме того, необходимость доставлять теплоноситель на второй этаж обусловливает потребность использования циркуляционного оборудования. Система с принудительной циркуляцией является обязательно в случае многоэтажных домов.

При этом не обязательно использовать воду как основной теплоноситель. Поскольку обычная проточная вода имеет множество минусов, которые мешают его использовать. К основным из них относят возможность разрыва труб в случае сильных морозов при отсутствии нагрева. Также, эта жидкость может привести к коррозии и забиванию радиаторов. Поэтому, в современном оборудовании гораздо чаще используют специальные незамерзающие составы — антифризы, которые не замерзают.
На текущий момент существует три основных вида разводки, каждая из которых имеет свои достоинства. Если их объединять с циркуляционной помпой, у них будет множество достоинств.
К таковым системам относят:
- Однотрубную.
- Коллекторную или лучевую.
- Двухтрубную.

Важным элементом в системе отопления двухэтажного дома является насос. Его обычно монтируют на ветви с подающий, либо обратный трубопровод, рядом с котлом. Это обеспечивает повышенную скорость циркуляции теплоносителя по трубам при нормальном давлении. Это позволяет увеличить скорость циркуляции в 2.5-5 раз. Это важно для домов с большой площадью, поскольку при использовании однотрубной разводки отопления теплоноситель будет слишком быстро остывать, и в помещениях, удаленных от котельной температура будет несколько ниже, чем в расположенных рядом.
Система отопления двухэтажного дома ленинградка. Конструктивные особенности
Ленинградка— это однотрубная система отопления, где теплоноситель циркулирует по одной магистрали (в отличие от двухтрубных, в которых подача и обратка разделены на 2 независимых контура). По сути это замкнутое кольцо из труб, проложенное по периметру дома, помещения или группы комнат. Рекомендуется использовать сечения не менее 32 мм, поскольку при меньшем диаметре котел постоянно находится под перегрузкой.

К магистрали подключаются отопительные радиаторы, которые могут быть стальными, металлическими или чугунными. Они используют воду из подачи и передают ее дальше к следующему прибору по этой же трубе.

В систему встраивается расширительный бачок, который бывает открытым с переливным патрубком или закрытым. Соответственно, система отопления называется открытой или закрытой.

Ленинградка может функционировать самостоятельно. Благодаря разнице температуры и давления в начальной и конечной точке контура теплоноситель движется по трубам самотеком. Но зачастую этого недостаточно. Для более равномерного распределения тепла, повышения эффективности работы оборудования и снижения износа в систему встраивается циркуляционный насос.

Многие современные котлы уже оснащены им, поэтому нет нужды устанавливать помпу дополнительно. В закрытых системах излишки воздуха и теплоносителя не имеют свободного выхода. При превышении давления больше критического срабатывает специальный блок из манометра, предохранительного клапана и воздухоотводчика — так называемая группа безопасности. Она обеспечивает автоматический сброс воздуха для предотвращения аварийной ситуации.

В открытых системах накопившийся воздух свободно выходит в атмосферу через расширительный бак. Он устанавливается в верхней точке, что позволяет поддерживать постоянные параметры давления и объема жидкости без каких-либо дополнительных устройств.
Отопление двухэтажного дома двухконтурным котлом. Чем отличается двухконтурный котел
Принципиальное отличие от одноконтурных аналогов — лишь в том, что тепло сгорания топлива может быть использовано не только для поддержания температуры теплоносителя в контуре отопления, но и для нагрева горячей воды для хознужд.
Уточнение: одноконтурные котлы тоже могут использоваться для нагрева воды в накопительной емкости путем косвенного нагрева — когда теплоноситель отдает часть своего тепла, проходя через вторичный теплообменник внутри теплоизолированной емкости. Ключевое отличие двухконтурного котла — в непосредственной передаче тепловой энергии от сгорающего топлива горячей воде.
Технические детали того, как реализована передача тепла в разных моделях котлов, нам не очень интересны. С точки зрения проектирования отопительной системы важна лишь одна особенность двухконтурного котла: когда расходуется горячая вода, теплоноситель перестает нагреваться.
Что это означает в практическом плане?
Для хорошо утепленных домов большой площади режим работы котла неважен вообще. Схема отопления с двухконтурным котлом будет точно такой же, как с одноконтурным. Дело в том, что дом имеет тепловую инерционность, и весьма большую.
Даже если котел будет в течение двух часов работать только на нагрев горячей воды (что в реальной жизни бывает крайне редко), температура в помещении изменится максимум на один-два градуса.
Если частный дом имеет небольшой объем внутренних помещений и/или плохо утеплен, становится важной тепловая инерционность системы отопления. Сами радиаторы и теплоноситель в контуре должны остывать по возможности долго
Результат достигается подбором радиаторов с большим внутренним объемом и увеличенным диаметром труб контура отопления.Наконец, если в силу каких-то причин планируется ОЧЕНЬ объемный и длительный расход горячей воды — от самой идеи двухконтурного котла лучше отказаться в пользу комбинации одноконтурного и нагревательной колонки. Никакая схема отопления не сможет обеспечить постоянную температуру в доме, если большую часть суток теплоноситель не нагревается.
Котел греет или теплоноситель, или горячую воду. Одновременная работа двух контуров невозможна.
Еще на один важный момент, вероятно, стоит обратить внимание. Систему с естественной циркуляцией проектировать с двухконтурным котлом не стоит
Почему?
После прекращения нагрева теплоносителя циркуляция в системе отопления очень быстро остановится. Ее возобновление займет весьма продолжительное время; в процессе повторного прогрева радиаторы в контуре будут нагреты очень неравномерно. Несколько таких циклов в течение дня сделают распределение температур в доме просто некомфортным.
Впрочем, ситуация изначально несколько надуманная просто потому, что большая часть современных двухконтурных котлов комплектуется циркуляционными насосами.
Однако: при проектировании системы отопления для одноэтажного дома не будет лишним заложить в проект возможность работы отопления за счет естественной циркуляции. Просто на случай длительного отключения электричества.