Как врезать алюминиевый радиатор в железное отопление. Общие правила установки радиаторов
- Как врезать алюминиевый радиатор в железное отопление. Общие правила установки радиаторов
- Как соединить радиатор отопления с трубой. Варианты обвязки радиаторов отопления
- Какое подключение радиаторов отопления лучше. Нижнее
- Как установить алюминиевый радиатор. Общие рекомендации по монтажу
- Правильная установка радиаторов отопления. Специфика установки чугунного радиатора
- Монтаж радиаторов отопления в частном доме. Расположение радиаторов
- Неправильное подключение радиаторов отопления. О способах подключения батарей
- Как закрутить футорку в радиатор. Обзор комплекта подключения радиатора футорки
Как врезать алюминиевый радиатор в железное отопление. Общие правила установки радиаторов
К стене батарея крепится специальными кронштейнами. Может быть установлена открытым образом, что наиболее оптимально, утоплена в нишу или закрыта декоративными элементами отделки. Принимая решение, как правильно установить алюминиевый радиатор отопления нужно учитывать, что при закрывании источника тепла возможна потеря до 30% мощности. Сделав такой выбор лучше удлинить отапливающие приборы за счет дополнительных секций.
При любом методе подключения будут задействованы три из четырех отверстий радиатора. Неиспользуемый канал закройте заглушкой.
Две точки соединения с системой будут работать как вход и выход. На третью, обязательно верхнюю, нужно подсоединить кран Маевского, через который производится удаление воздуха после заполнения системы теплоносителем.
Согласно расчетным нормам, устанавливающим, как правильно определить место подключения алюминиевого радиатора отопления необходимо выдержать следующие размеры:
- Между верхней частью батареи и подоконником должно быть свободное пространство не менее 10 см. Если расстояние сделать меньше поднимающийся теплый воздух будет нагревать подоконник, а не отапливать помещение.
- Зазор между полом и отопителем не должен превышать 12 см. С увеличением этого интервала ухудшается обогрев нижней части комнаты.
- Отступить от стены нужно на дистанцию, превышающую 2 см. При меньшем расстоянии невозможен свободный восходящий поток теплых масс воздуха за секциями, в результате тепловая энергия уйдет в стену.
Часто люди, не задумываясь о том, где и как правильно подключить радиатор отопления в квартире или ином помещении снижают КПД этого устройства. При этом потери составят немалую часть драгоценного тепла.
- Установка под выступающим из стены на 3 — 5 см элементом — порядка 4%.
- Размещение в открытой нише — до 7%.
- Частично закрывая решеткой — до 15%.
- Устанавливая решетку на всю площадь нагреваемых деталей — до 30%.
Для бокового и диагонального подключения вход лучше устроить через верхний канал. При подаче теплоносителя снизу до 15% снижается эффективность работы отопления.
Верхняя плоскость батареи должна находиться в горизонтальном положении.
Стараясь соблюдать условия того, как наиболее правильно и удобно подключить радиаторы отопления не забудьте применить кран подачи, имеющий на рукоятке регулировки цифровую или точечную шкалу. Наличие этой опции позволит без труда устанавливать количество поступающей жидкости.
Собирая соединения подающих и отводящих теплоноситель трубопроводов с отводами на радиатор и в точках подключения отапливающих комплектов следует применять краны, позволяющие отсоединить батарею от системы при необходимости ее ремонта или замены. Такой механизм называется «американка».
Прокладка труб, соединяющих радиатор с системой производится после установки секций.
Выбирая, как правильно подключить радиаторы отопления рассмотрим каждое сочетание вида системы и способа подключения отопителей.
Как соединить радиатор отопления с трубой. Варианты обвязки радиаторов отопления
Установка радиаторов отопления подразумевает их подключение к трубопроводам. Есть три основных способа подключения:
В случае если радиаторы ставите и нижним подключением, выбора у вас нет. Каждый производитель жестко привязывает подачу и обратку и его рекомендации соблюдать надо неукоснительно, так как иначе тепла просто не получите. С боковым подключением вариантов больше (подробнее о них написано тут ).
Обвязка при одностороннем подключении
Одностороннее подключение чаще всего применяется в квартирах. Может быть двухтрубным или однотрубным (наиболее частый вариант). В квартирах все еще используют металлические трубы, потому рассмотрим вариант обвязки радиатора стальными трубами на сгонах. Кроме труб подходящего диаметра нужны два шаровых крана, два тройника и два сгона — детали с наружной резьбой на обоих концах.
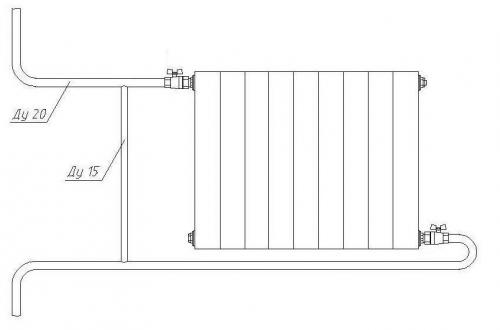
Боковое подключение с байпасом (однотрубная система)
Все это соединяется как показано на фото. При однотрубной системе байпас обязателен — он позволяет отключить радиатор не останавливая и не спуская систему. Кран на байпас ставить нельзя — им вы перекроете движение теплоносителя по стояку, чем вряд ли обрадуете соседей и, скорее всего, попадете под штраф.
Все резьбовые соединения уплотняются фум-лентой или льняной подмоткой, поверх которой наносится упаковочная паста. При вкручивании крана в коллектор радиатора много подмотки не требуется. Слишком больше ее количество может привести к появлению микротрещин и последующему разрушению. Это актуально практически для всех типов отопительных приборов, кроме чугунных. При установке всех остальных, пожалуйста, без фанатизма.
Вариант со сваркой
Если есть навыки/возможность использования сварки, можно байпас приварить. Именно так обычно выглядит обвязка радиаторов в квартирах.
При двухтрубной системе байпас не нужен. К верхнему входу подключается подача, к нижнему — обратка, краны, естественно, нужны.
Односторонняя обвязка при двухтрубной системе
При нижней разводке (трубы проложены по полу) такой тип подключения делают очень редко — получается неудобно и некрасиво, намного лучше в этом случае использовать диагональное подключение.
Обвязка при диагональном подключении
Установка радиаторов отопления с диагональным подключением — самый оптимальный вариант с точки зрения теплоотдачи. Она в этом случае самая высокая. При нижней разводке данный тип подключения реализуется несложно (пример на фото) — подача с оной стороны вверху, обратка с другой внизу.
Какое подключение радиаторов отопления лучше. Нижнее

Схема, ещё называемая вентильной, которая традиционно считается менее эффективной, нежели предыдущая. Однако она даёт возможность скрыто подвести трубопровод из пола, плинтуса, стены, что во многом определяет её популярность. Зачастую монтаж радиаторов отопления с нижним подключением выполняют своими руками хозяева автономных комплексов обогрева в небольших домах, коттеджах. Именно поэтому к такому способу установки наиболее адаптированы стальные панельные приборы, некоторые модели алюминиевых и биметаллических секционных, которые рекомендованы для индивидуальных систем обогрева.
Для реализации этой технологии они оснащаются двумя отверстиями в донной части, к которым подсоединяется разводка.
Нижнее однотрубное подключение вентильных радиаторов отопления
Предполагает наличие только одной магистрали (подающей), идущей замкнутым круговым контуром от котла и возвращающейся к нему же. Прибор врезается в эту линию, подсоединяясь к ней входным и выходящим патрубками. Основные преимущества такой схемы: минимальный расход материалов для её обустройства и простота сборки.
Недостатков несколько больше
- нижнее подключение радиаторов отопления к однотрубной системе исключает возможность регулировки мощности отдельной единицы
- неравномерный прогрев приборов, когда первые в цепи получают более горячий теплоноситель, последние – уже практически остывший
- необходимость сливать всю систему в случае ремонта или замены одного устройства
Нижнее подключение 2-трубное радиаторов отопления
В этом случае имеются две отдельных линии: подающая и обратная, каждая из которых подводится к определённому патрубку прибора. Для реализации такой разводки потребуется больше труб, запорно-регулирующей арматуры, фитингов и т.д., но, в конечном итоге, она позволит оптимизировать расход энергии без ущерба для комфорта микроклимата помещений. Во-первых, в таком комплексе имеется возможность индивидуально регулировать мощность каждого прибора благодаря установке ручных или термостатических вентилей. Во-вторых, наличие отсечной арматуры позволяет без проблем демонтировать прибор.
В 2-трубных системах нижнее подключение радиаторов отопления плюсы которого очевидны, а минусы не слишком существенны, является наиболее популярным вариантом. Оно может выполняться двумя способами
- Параллельным. В этом случае каждый прибор последовательно подсоединяется к подающей и обратной линиям. Вариант, где-то напоминающий однотрубную схему, но более усовершенствованный.
- Лучевым. Разводка идёт от распределительного коллектора индивидуально к каждому потребителю. Лучший в плане комфорта эксплуатации и экономичности способ, требующий значительных затрат на стадии монтажа.
Как установить алюминиевый радиатор. Общие рекомендации по монтажу
Установку алюминиевых радиаторов обычно проводят в теплое время года. Перед приобретением батарей надо рассчитать, сколько их всего потребуется. Для этого умножают площадь помещения на 100 Вт и делят на энергоотдачу отдельной секции (указано в паспорте изделия). Полученное число обозначает количество секций, необходимое для взятой площади.
Виды и комплектация алюминиевых радиаторов
Стандартные алюминиевые батареи обычно устанавливают в теплосеть с малым разрешенным давлением теплоносителя (до 18 атмосфер). Такими показателями отличаются автономные системы в малоэтажных домах, где исключены гидроудары и опрессовка с критическим давлением воды.
Внимание! В процессе эксплуатации в алюминиевых радиаторах накапливается водород. Его периодически стравливают через воздухоотводчик, иначе рано или поздно батарею разорвет. Нельзя проверять наличие водорода зажженной спичкой.
Усиленные отопительные приборы из алюминия выдерживают давление до 25 атмосфер. Такие изделия можно использовать в системе централизованного отопления. Допускается наращивание усиленной батареи до 12 секций, при условии искусственной циркуляции – до 24 секций.
Усиленный алюминиевый радиатор
Комплектующие (заглушки, прокладки, клапаны, кронштейны, шаровые краны) поставляются в упаковке с радиатором. Отдельно продается запорная арматура и для терморегулирования. С ее помощью не только корректируют температуру в помещении, но и перекрывают радиатор для ремонта или замены.
Основные комплектующие поставляются вместе с прибором
Трубы для радиаторов из алюминия
Трубы, к которым подключаюталюминиевые батареи, должны иметь специальный антикоррозионный слой. Если это локальная система, то батареи подсоединяют к ней металлопластиковыми трубами. К централизованной теплосети лучше подключаться через стальные трубы.
Прибор должен быть размещен на стене в соответствии с нормативами СНИП:
- Расстояние от подоконника до верхней плоскости радиатора, а также от пола до нижней плоскости – 10 см.
- Зазор между стеной и батареей – 5 см.
Следование этим указаниям обеспечит правильную циркуляцию теплого воздуха.
Правильная установка радиаторов отопления. Специфика установки чугунного радиатора
Как бы интенсивно ни продвигали производители новаторских батарей свои эстетичные сверхлегкие алюминиевые и биметаллические продукты, немало осталось приверженцев чугуна. Не радующий изяществом материал невероятно долго сохраняет тепло, постепенно передавая его в обогреваемое пространство. Желающим узнать, как правильно установить радиатор отопления, выполненный из теплоемкого чугуна, следует ознакомиться со специфическими особенностями конструкции прибора и его монтажа:
- Батарею из чугуна перед установкой потребуется развинтить, отрегулировать ниппели, а затем заново собрать прибор. Разборку производят на верстаке, орудуя парой радиаторных ключей, вставляющихся в ниппельные отверстия. Для увеличения приложенной силы и для фиксации в ушко ключа, предназначенного для отвинчивания нижнего ниппеля, вставляют ломик. Во избежание перекоса оба ниппеля, расположенные сверху и снизу, развинчивают одновременно. Работу удобнее делать вдвоем. Развинчивая чугунный радиатор, обратите внимание на направление резьбы. С разных сторон радиатора из чугуна резьбы с противоположным направлением. Развернули? Снимайте секцию.
- По аналогии нужно свинтить все секции, а затем в строгой обратной последовательности сгруппировать в единый прибор с требующимся для обогрева конкретного помещения количеством секций. Собранную батарею нужно опрессовать, при обнаружении течи отрегулировать в проблемном месте ниппель.
- Настенные батареи из чугуна можно зафиксировать на кирпичных и пенобетонных стенах. Стены из древесины не выдержат веса, поэтому собственнику деревянного дома нужны будут радиаторы со специальными напольными подставками-опорами. Однако и на стены нужно установить поддерживающие крепления.
- Так как в частных домах в основном отопление однотрубное, производится монтаж байпаса. В схеме подключения обязательно должен быть кран Маевского и соответствующая запорная арматура.
Монтаж радиаторов отопления в частном доме. Расположение радиаторов
Выбор места для установки отопительных радиаторов осуществляется главным образом в зависимости от конкретных особенностей здания. В частности, нужно учитывать расположение окон – в большинстве случаев установка батарей отопления в частном доме выполняется именно под ними. Отсутствие батарей в данных участках приводит к беспрепятственному проникновению холодного воздуха на нижний уровень помещения.
В нормативах указано, что наиболее эффективная защита от попадания холода через окна достигается в том случае, если ширина батареи составляет минимум 70% от ширины самого окна. Несоответствие размеров радиатора не позволяет ему демонстрировать высокую теплоотдачу и позволит холоду поступать в помещение, где он станет причиной образования конденсата.

Выполняя монтаж радиаторов в частном доме, нужно также обратить внимание на то, чтобы подоконник не закрывал их полностью – чтобы движение разогретых воздушных масс было возможным, им необходимо создать подходящие условия. Самым лучшим вариантом будет своевременное проектирование отопительной системы с учетом особенностей установки радиаторов и использование защитных экранов, обеспечивающих эффективную теплоотдачу и защищающую жильцов от случайного контакта с батареей.
Если дом находится в регионе, который характеризуется суровым климатом, может потребоваться установка радиаторов возле входной двери, причем расстояние от нее желательно свести к минимуму. Ко всем радиаторам нужно обеспечить простой доступ, чтобы при необходимости можно было быстро вмешаться в их работу.
Неправильное подключение радиаторов отопления. О способах подключения батарей
Начнем с того, что схема подключения бывает:
- односторонней;
- перекрестной;
- нижней.

Схемы подключения радиаторов отопления
По одностороннему варианту подключение производится, как правило, в городских квартирах, где используется центральное отопление. Здесь трубы подсоединяются лишь с одной стороны батареи. Преимущество схемы в том, что система может работать с максимальной номинальной мощностью, однако то, насколько эффективна теплоотдача, зависит от кол-ва секций батареи. Вода в данном случае не может доходить до удаленных от места подсоединения участков, что негативно влияет на эффективности всей отопительной системы. Данный эффект особенно заметен при использовании батареи, состоящей из 15-ти секций, потому при подключении многосекционных радиаторов предпочтение лучше отдавать другой схеме.

Адаптер для нижнего одностороннего подключения радиатора
В последние годы все большую популярность обретают биметаллические радиаторы, их можно подключать по диагональной (ее также называют перекрестной) схеме. Суть данной схемы в том, что подводка подсоединяется сверху, а отводка – снизу, но с другой стороны. При таком монтаже жидкость более равномерно распределяется по батарее, а значит, минимизируются потери ее мощности.

Диагональное подключение радиаторов отопления
На заметку! При использовании диагональной схемы необходимо учитывать то, как располагаются отводящая/подводящая трубы. Ведь если подвод сделать снизу, а отвод – сверху, то радиатор может потерять свыше 50% своей мощности.

Диагональная схема подключения радиаторов отопления при двухтрубной и однотрубной системе
Порой описанные выше схемы по тем или иными причинам не используются в помещении. Тогда остается только нижнее подключение , при котором образуется сквозной проход теплоносителя; очевидно, что до верхних секций радиатора жидкость в таком случае не доходит, из-за чего теплоотдача может снизиться на 15%. Тем не менее, данную схему нередко применяют в частных домах с индивидуальным отоплением. А теплоотдачу можно восполнить посредством распределительных трубок.

Как закрутить футорку в радиатор. Обзор комплекта подключения радиатора футорки
Добрый день, уважаемые читатели. Сегодня мы рассмотрим довольно легкую, но не менее важную тему: » Обзор комплекта подключения алюминиевого радиатора (футорки)»Что-то писать во вступлении не буду, да и лучше сразу перейти к делу.

Перед нами практически полное подключение (кроме кранов).
— крепления радиаторов с дюбелями
— комплект подключения футорок 4 шт., развоздушник (кран Маевского), заглушка, ключ под развоздушник
Крепление радиатора с дюбелем.
Крепление металлическое покрытое белой краской, что позволит не выделяться на фоне радиатора. Сначало сверлим отверстие в стене, забиваем дюбель, закручиваем крепление в дюбель. В углубление крепления ложится радиатор. Для монтажа радиатора для лучшей фиксации вам понадобится 4 шт. крепления.
Футорка (правая)
В комплекте идет 2 шт. футорки с прокладками. Они также покрашены в белый цвет, чтобы не выделяться. Накручиваются на радиатор без особого труда. Если присмотреться, то на футорке можно увидеть букву «D» — это означает с какой стороны вкручивается футорка. в данном случае «справа».
Футорка (левая)
Все тоже самое с покрытием и применением, что и предыдущая футорка, только здесь уже буква «S» и соответственно подключение «слева».
Заглушка
Заглушка вкручивается в футорку просто, чтобы заглушить если с данной стороны нет подключения. Заглушка закручивается абсолютно во все футорки, будь то левая или правая футорка. Цвет заглушки белый, в комплекте с прокладкой.
Развоздушник или кран Маевского
Функция развоздушника — убирать воздух, который образовался в системе отопления, а точнее в радиаторе. Развоздушник монтируется таким образом, чтобы слив (маленькое тонкое отверстие) было вниз. Когда стравливается весь воздух из радиатора нужно слить еще пару литров воды и соответственно, чтобы вода не брызгала во все стороны, а строго вниз направление должно быть вниз
Обратите внимание на эту монтажную мелочь, как направление отверстия для развоздушивания. Цвет развоздушника белый, прокладка в комплекте
Ключ для развоздушника
Открывать развоздушник можно при помощи специального для этого ключа. Если ключа нет или вы его потеряли, можно воспользоваться обычной плоской отверткой, только не едьте специально за ним на стройрынки. Такие случаи были, когда этот ключ продавался )))
Футорка с заглушкой в сборе (слева), футорка с развоздушником в сборе (справа)
Вот так выглядит футорка в сборе будь то заглушка или развоздушник, либо же идет продолжение подходящей к радиатору трубы.
Подключение алюминиевого или биметаллического радиатора.
Вот схематично показано, как подключается радиатор (батарея). Думаю, что-то пояснять излишне. Все прекрасно показано. В футорку мы подключаем либо шаровый кран с продолжением с трубой, либо заглушку, либо развоздушник. Но в любом случае у нас будет труба подачи в радиатор, труба обратки из радиатора, развоздушник (ставится всегда в верхней части радиатора, заглушка.
Верхняя часть алюминиевого радиатора в разрезе с футоркой
Вот так выглядит вкрученная футорка в радиатор. Как видим футорка достаточно хорошо и глубоко вкручивается в радиатор, что достаточно надежно.
Футорка вкручена в радиатор (подключение снизу)
Здесь мы вкрутили футорку («D»-правая) в цельный алюминиевый радиатор. дабы показать, как она выглядит с этой стороны.
Футорки с первого взгляда очень просто и незначительно, но подбирайте даже эти запчасти с умом. И помните, всегда лучше доверить дело профессионалам, как в плане продажи, так и в плане монтажа.