Схема подключения радиаторов отопления. Однотрубная схема отопительных систем
- Схема подключения радиаторов отопления. Однотрубная схема отопительных систем
- Подключение радиаторов отопления при двухтрубной системе. Двухтрубный вариант подключения
- Неправильное подключение радиаторов отопления. О способах подключения батарей
- Какое подключение радиаторов отопления лучше. Нижнее
- Схема подключения радиаторов отопления в многоэтажном доме. Двухтрубная схема отопления квартиры: варианты разводки
- Подключение батарей отопления с нижней подачей. Зависимость эффективность радиатора от схемы его врезки в систему
- Схема подключения радиаторов отопления в частном доме. Типы систем отопления
- Как правильно подключить радиатор отопления при однотрубной системе. Как правильно подключаются радиаторы отопления при двухтрубной системе: разновидности
Схема подключения радиаторов отопления. Однотрубная схема отопительных систем

Однотрубная система отопления: вертикальная и горизонтальная разводка.
В однотрубной схеме систем отопления подвод горячего теплоносителя (подача) к радиатору и отвод остывшего (обратка) осуществляется по одной трубе. Все приборы относительно направления движения теплоносителя соединены между собой последовательно. Поэтому температура теплоносителя на входе в каждый последующий радиатор по стояку значительно снижается после снятия тепла с предыдущего радиатора. Соответственно теплоотдача радиаторов с удалением от первого прибора снижается.
Такие схемы используются, в основном, в старых системах центрального теплоснабжения многоэтажных зданий и в автономных системах гравитационного типа (естественная циркуляция теплоносителя) в частных жилых домах. Главным определяющим недостатком однотрубной системы является невозможность независимой регулировки теплоотдачи каждого радиатора в отдельности.
Для устранения этого недостатка возможно использование однотрубной схемы с байпасом (перемычкой между подачей и обраткой), но и в этой схеме первый радиатор будет на ветке всегда самый горячий, а последний самым холодным.

В многоэтажных домах используется вертикальная однотрубная система отопления.
В многоэтажных домах использование такой схемы позволяет экономить на длине и стоимости подводящих сетей. Как правило, отопительная система выполнена в виде вертикальных стояков, проходящих через все этажи здания. Теплоотдача радиаторов рассчитывается при проектировании системы и не может быть отрегулирована с помощью радиаторных вентилей или другой регулирующей арматуры. При современных требованиях к комфортным условиям в помещениях, эта схема подключения приборов водяного обогрева не удовлетворяет требованиям жителей квартир, находящихся на разных этажах, но присоединенных к одному стояку системы отопления. Потребители тепла вынуждены «терпеть» перегрев или недогрев температуры воздуха в переходный осенний и весенний период.

Отопление по однотрубной схеме в частном доме.
В частных домах однотрубная схема используется в гравитационных отопительных сетях, в которых циркуляция горячей воды осуществляется благодаря дифференциалу плотностей нагретого и остывшего теплоносителей. Поэтому такие системы получили название естественных. Главным плюсом этой системы является энергонезависимость. Когда, например, при отсутствии в системе циркуляционного насоса, подключаемого к сетям электроснабжения и, в случае перебоев с энергопитанием, система отопления продолжает функционировать.
Главным недостатком гравитационной однотрубной схемы подключения является неравномерное распределение температуры теплоносителя по радиаторам. Первые радиаторы на ветке будут самые горячие, а по мере удаления от источника тепла температура будет падать. Металлоемкость гравитационных систем всегда выше, чем у принудительных за счет большего диаметра трубопроводов.
Подключение радиаторов отопления при двухтрубной системе. Двухтрубный вариант подключения
Рассмотрим ее особенности:
- Инструкция по монтажу схемы подразумевает наличие двух отдельных трубопроводов, к которым подключается каждое из устройств.
- При этом один водопровод является подающим, откуда поступает горячая вода, а другой – обратным, отдающим уже охлажденную воду.
- Так как пути, преодолеваемые теплоносителем, как в подающей трубе, так и в обратной, равны, их гидравлическое сопротивление одинаково. То есть такая схема гидравлически уравновешена, что делает ее применение наиболее оптимальным.

Правильное подключение радиаторов отопления при двухтрубной системе — диагональный метод
Совет: использование в данном случае диагонального метода подключения приборов отопления сделает работу системы более эффективной.
- Впрочем, схемы могут быть и тупиковыми, а это означает, что самый:
- длинный путь проделывает уже остывшая вода, отходящая от последнего в цепи прибора отопления;
- короткий — пролегает от первого.
По этой причине придется регулировать подачу горячей воды своими руками в каждой из батареи кранами или использовать термостатические клапаны.
Схема может быть принудительной (встраивается насос) и самотечной, основное достоинство последней заключается в том, что она не требует наличия электричества. Для этого делается верхняя разводка, а приборы отопления. так же, как и в предыдущем случае, подключаются диагонально.

Принудительная двухтрубная схема подключения радиаторов отопления с котлом и насосом
Используется она чаще всего в небольших жилых домах, имеющих не больше двух этажей. Хотя она станет идеальной в населенных пунктах, испытывающих перебои с электроэнергией, используется не часто, что объясняется необходимостью применения большого количества материалов и неэстетичным внешним видом.
Используется не только в жилых домах, но и в любых других зданиях, вне зависимости от их назначения. Ее организация требует больших затрат материалов и сил, но все же преимущества такой системы неоспоримы.
В системе есть возможность автоматического регулирования температуры
Совет: вы сможете легко подобрать ее для любых строений, какими бы сложными они ни были.
На одной ветке возможно расположение большого количества устройств отопления, и это не потребует дополнительной установки гидравлических регуляторов давления. Подача воды и обратный отток в таких схемах подключаются отдельно, что позволяет регулировать обогрев всех помещений дома автоматически. В данном случае терморегуляторы не будут оказывать никакого влияния на другие приборы, а их цена лишь ненамного увеличит стоимость монтажа.

Неправильное подключение радиаторов отопления. О способах подключения батарей
Начнем с того, что схема подключения бывает:
- односторонней;
- перекрестной;
- нижней.

Схемы подключения радиаторов отопления
По одностороннему варианту подключение производится, как правило, в городских квартирах, где используется центральное отопление. Здесь трубы подсоединяются лишь с одной стороны батареи. Преимущество схемы в том, что система может работать с максимальной номинальной мощностью, однако то, насколько эффективна теплоотдача, зависит от кол-ва секций батареи. Вода в данном случае не может доходить до удаленных от места подсоединения участков, что негативно влияет на эффективности всей отопительной системы. Данный эффект особенно заметен при использовании батареи, состоящей из 15-ти секций, потому при подключении многосекционных радиаторов предпочтение лучше отдавать другой схеме.

Адаптер для нижнего одностороннего подключения радиатора
В последние годы все большую популярность обретают биметаллические радиаторы, их можно подключать по диагональной (ее также называют перекрестной) схеме. Суть данной схемы в том, что подводка подсоединяется сверху, а отводка – снизу, но с другой стороны. При таком монтаже жидкость более равномерно распределяется по батарее, а значит, минимизируются потери ее мощности.

Диагональное подключение радиаторов отопления
На заметку! При использовании диагональной схемы необходимо учитывать то, как располагаются отводящая/подводящая трубы. Ведь если подвод сделать снизу, а отвод – сверху, то радиатор может потерять свыше 50% своей мощности.

Диагональная схема подключения радиаторов отопления при двухтрубной и однотрубной системе
Порой описанные выше схемы по тем или иными причинам не используются в помещении. Тогда остается только нижнее подключение , при котором образуется сквозной проход теплоносителя; очевидно, что до верхних секций радиатора жидкость в таком случае не доходит, из-за чего теплоотдача может снизиться на 15%. Тем не менее, данную схему нередко применяют в частных домах с индивидуальным отоплением. А теплоотдачу можно восполнить посредством распределительных трубок.

Какое подключение радиаторов отопления лучше. Нижнее

Схема, ещё называемая вентильной, которая традиционно считается менее эффективной, нежели предыдущая. Однако она даёт возможность скрыто подвести трубопровод из пола, плинтуса, стены, что во многом определяет её популярность. Зачастую монтаж радиаторов отопления с нижним подключением выполняют своими руками хозяева автономных комплексов обогрева в небольших домах, коттеджах. Именно поэтому к такому способу установки наиболее адаптированы стальные панельные приборы, некоторые модели алюминиевых и биметаллических секционных, которые рекомендованы для индивидуальных систем обогрева.
Для реализации этой технологии они оснащаются двумя отверстиями в донной части, к которым подсоединяется разводка.
Нижнее однотрубное подключение вентильных радиаторов отопления
Предполагает наличие только одной магистрали (подающей), идущей замкнутым круговым контуром от котла и возвращающейся к нему же. Прибор врезается в эту линию, подсоединяясь к ней входным и выходящим патрубками. Основные преимущества такой схемы: минимальный расход материалов для её обустройства и простота сборки.
Недостатков несколько больше
- нижнее подключение радиаторов отопления к однотрубной системе исключает возможность регулировки мощности отдельной единицы
- неравномерный прогрев приборов, когда первые в цепи получают более горячий теплоноситель, последние – уже практически остывший
- необходимость сливать всю систему в случае ремонта или замены одного устройства
Нижнее подключение 2-трубное радиаторов отопления
В этом случае имеются две отдельных линии: подающая и обратная, каждая из которых подводится к определённому патрубку прибора. Для реализации такой разводки потребуется больше труб, запорно-регулирующей арматуры, фитингов и т.д., но, в конечном итоге, она позволит оптимизировать расход энергии без ущерба для комфорта микроклимата помещений. Во-первых, в таком комплексе имеется возможность индивидуально регулировать мощность каждого прибора благодаря установке ручных или термостатических вентилей. Во-вторых, наличие отсечной арматуры позволяет без проблем демонтировать прибор.
В 2-трубных системах нижнее подключение радиаторов отопления плюсы которого очевидны, а минусы не слишком существенны, является наиболее популярным вариантом. Оно может выполняться двумя способами
- Параллельным. В этом случае каждый прибор последовательно подсоединяется к подающей и обратной линиям. Вариант, где-то напоминающий однотрубную схему, но более усовершенствованный.
- Лучевым. Разводка идёт от распределительного коллектора индивидуально к каждому потребителю. Лучший в плане комфорта эксплуатации и экономичности способ, требующий значительных затрат на стадии монтажа.
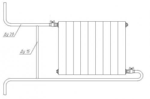
Схема подключения радиаторов отопления в многоэтажном доме. Двухтрубная схема отопления квартиры: варианты разводки
Двухтрубная схема отопления квартиры отличается тем, что вода, переносящая тепло, подводится к батареям и выводится с помощью двух водопроводных труб.
Существует несколько видов двухтрубных разводок: стандартная (классическая), веерная, попутная и лучевая.
- Классическая модель отопления
При стандартной схеме отопления квартиры подача нагретой воды осуществляется в одном направлении, затем теплоноситель движется в противоположную сторону. В современных многоэтажных зданиях чаще используется классическая система отопления, которая считается наиболее эффективной. В этом случае тепло распространяется по всем батареям в равной мере, без перерасхода. Можно регулировать температуру отопительного прибора в каждой комнате. Процесс может быть автоматизирован посредством подключения специальных клапанов, на которые устанавливаются термоголовки.
- «Петля Тихельмана» (попутная схема подключения отопления в квартире)

Это вариант классической разводки, который отличается от стандартной схемы. Направление движения теплоносителя в подающем и в отводящем трубопроводе одинаковое. Эта отопительная система подходит для помещений, где большие расстояния от котла до обогреваемых комнат. Применение попутной схемы дает возможность уменьшения гидравлического сопротивления. Теплоноситель равномерно распределяется по всем батареям.
- Лучевая или веерная система

Сегодня в многоэтажных домах применяется веерная схема подключения отопления. Каждая квартира обогревается индивидуально. Жильцы устанавливают счетчики, учитывающие расход тепла. Подобная отопительная схема может использоваться в частных домах, если сделать разводку труб на каждом этаже. Для этого понадобятся: индивидуальный трубопровод и коллектор, имеющий выход ко всем квартирам. Потребуется установка счетчиков, учитывающих количество потребленного тепла. Каждый хозяин будет платить конкретную сумму согласно прибору учета.
Лучевой способ позволяет распределять трубопроводы по этажам таким образом, чтобы можно было веерно подключать радиаторы к единому коллектору. От него к каждой батарее подсоединяется подающая и отводящая трубы. С помощью веерной схемы отопления квартиры возможно равномерное распределение горячей воды по радиаторам. Потери тепла будут минимальными.
Важно: при лучевой схеме необходимо выполнять разводку трубопровода целыми элементами (трубы не должны иметь развилок или обрывов). Если используются изделия из меди или полимеров, лучше применять стяжку из бетона. Тогда трубопровод при эксплуатации не разорвет. Трубы не будут подтекать в местах стыков.
Подключение батарей отопления с нижней подачей. Зависимость эффективность радиатора от схемы его врезки в систему
Для чего говорилось все то. что размещено в предыдущих разделах статьи? А дело в том, что от взаимного расположения подающей и обратной трубы очень серьезно зависит теплоотдача радиатора отопления.
| Схема врезки радиатора в контур | Направление потоков теплоносителя |
|---|---|
| Диагональное двухстороннее подключение радиатора, с подачей сверху | |
![]() | ![]() |
| Такая схема считается наиболее эффективной. В принципе, именно она берется за основу при расчете теплоотдачи конкретной модели радиатора, то есть мощность батареи пори таком подключении принимается за единицу. Теплоноситель, не встречая никакого сопротивления, полностью проходит через верхний коллектор, через все вертикальные каналы, обеспечивая максимальную теплоотдачу. Весь радиатор прогревается равномерно по всей своей площади. | |
![]() | ![]() |
Схема подключения радиаторов отопления в частном доме. Типы систем отопления
Прежде чем производить подключение радиатора отопления в частном доме, необходимо продумать: по какому типу будет производиться монтаж системы. Отопление разделяют на два вида по типу разводки – однотрубная и двухтрубная. Каждая из них имеет свои отличительные особенности, поэтому рассмотрим их отдельно.
Однотрубная система
Однотрубная схема используется преимущественно в многоэтажных строениях и отличается:
- простотой подключения;
- высокой гидродинамической устойчивостью;
- низкими расходами на материалы и оборудование,
- возможностью использования разных типов теплоносителя (вода, антифриз);
Несмотря на вышеперечисленные преимущества, такая отопительная система имеет и ряд недостатков, к коим относятся:
- ограниченное количество радиаторов на одной магистрали;
- невозможность регулировать температуру;
- низкая энергоэффективность.
Большинство из этих недостатков может быть устранено при помощи специальных технических решений, поэтому однотрубная система крайне востребована в многоэтажных частных домах (от 3х этажей), так как её намного легче монтировать. Также такой вариант разводки применяется при использовании современных котлов, которые создают достаточное давление в системе для быстрой рециркуляции теплоносителя.
Схема подключения радиатора отопления двухтрубная система
Двухтрубная система отличается тем, что поступление в радиатор горячего теплоносителя и перемещение холодного производится по двум не связанным между собой веткам. Такие отопительные системы в свою очередь делятся на вертикальные и горизонтальные. В первом случае они монтируются в многоэтажных строениях, а во втором – в одноэтажных.
У двухтрубной системы существует большое количество преимуществ перед однотрубной, а именно:
- одинаковая температура теплоносителя во всех батареях;
- возможность монтажа терморегуляторов на каждую линию;
- благодаря легкости разводки труб по такой системе отопительная схема может быть использована в здании любой площади и планировки;
- высокая энергоэффективность.
Недостатки двухтрубной схемы – это сложность монтажа и более высокая стоимость и количество необходимых материалов.
Как правильно подключить радиатор отопления при однотрубной системе. Как правильно подключаются радиаторы отопления при двухтрубной системе: разновидности
Различают две разновидности систем обогрева: одно- и двухтрубные. Чтобы определиться с оптимальным методом подсоединения батарей к обогревательному контуру, определимся с особенностями функционирования каждого вида.
Обогревание при однотрубной сети являет собой экономный вариант. Использование такой схемы позволяет существенно сэкономить на растратах при покупке материала и его монтаже. Подключение радиаторов отопления по однотрубной системе применяется в многоэтажках, а также частных домах. Принцип подсоединения такого вида обусловлен тем, что каждый радиатор соединён между собой последовательным способом, как показано ниже.

Из выхода крайнего радиатора контур возвращается к обогреваемому котлу или стояку многоэтажек. Подсоединение радиаторов к однотрубной системе имеет не только преимущество в виде экономии, но ещё и недостаток — отсутствие возможности регулировать теплоотдачу. Для этого можно установить один регулятор на первом теплообменнике, что позволит контролировать всю систему в целом. Ещё одним минусом такого типа системы обогрева является разница температур на начальном и конечном регистре. Батареи, которые подсоединены первыми к котлу, отдают больше тепла, нежели конечные теплообменники в контуре. Это отражается на температурных показателях в помещении, которая будет отличаться в зависимости от того, сколько регистров обогрева установлено в помещении. Если в небольшом частном доме последовательное подключение радиаторов функционирует эффективно, то в многоэтажном доме теплообменники на верхних этажах будут недополучать тепла.
Двухтрубная разводка является более приемлемым вариантом, так как она имеет две нити трубопровода, которые отходят от котла: подача и обратка. Каждый источник подключён к обеим трубам, поэтому такой вариант ещё называют параллельным способом. Преимущество данной системы сложно недооценить, так как каждый теплообменник получает теплоноситель с одинаковым показателем температуры. Это значит, что в доме или квартире каждая батарея будет иметь одинаковую температуру.

На каждом регистре обогрева устанавливается регулятор, при помощи которого контролируется температура в помещении. В отличие от однотрубной, двухтрубная конструкция имеет такой недостаток, как затраты на покупку труб. Для сооружения контура двухтрубного типа понадобится вдвое больше материалов, поэтому у владельцев частных домов возникает вопрос, что же лучше выбрать.




