Правильное подключение радиаторов отопления. О способах подключения батарей
- Правильное подключение радиаторов отопления. О способах подключения батарей
- Подключение радиаторов отопления при двухтрубной системе. Двухтрубный вариант подключения
- Как правильно подключить радиатор отопления при однотрубной системе. Как правильно подключить радиаторы
- Схема подключения радиаторов отопления в многоэтажном доме. Зависимость эффективность радиатора от схемы его врезки в систему
- Неправильное подключение радиаторов отопления. Однотрубная схема подключения радиаторов отопления в частном доме
- Схемы подключения радиаторов отопления в частном доме. Как устроена двухтрубная система отопления
- Какое подключение радиаторов отопления лучше. Нижнее
- Подключение батарей отопления с нижней подачей. Какие радиаторы рассчитаны на нижнее подключение
Правильное подключение радиаторов отопления. О способах подключения батарей
Начнем с того, что схема подключения бывает:
- односторонней;
- перекрестной;
- нижней.

Схемы подключения радиаторов отопления
По одностороннему варианту подключение производится, как правило, в городских квартирах, где используется центральное отопление. Здесь трубы подсоединяются лишь с одной стороны батареи. Преимущество схемы в том, что система может работать с максимальной номинальной мощностью, однако то, насколько эффективна теплоотдача, зависит от кол-ва секций батареи. Вода в данном случае не может доходить до удаленных от места подсоединения участков, что негативно влияет на эффективности всей отопительной системы. Данный эффект особенно заметен при использовании батареи, состоящей из 15-ти секций, потому при подключении многосекционных радиаторов предпочтение лучше отдавать другой схеме.

Адаптер для нижнего одностороннего подключения радиатора
В последние годы все большую популярность обретают биметаллические радиаторы, их можно подключать по диагональной (ее также называют перекрестной) схеме. Суть данной схемы в том, что подводка подсоединяется сверху, а отводка – снизу, но с другой стороны. При таком монтаже жидкость более равномерно распределяется по батарее, а значит, минимизируются потери ее мощности.

Диагональное подключение радиаторов отопления
На заметку! При использовании диагональной схемы необходимо учитывать то, как располагаются отводящая/подводящая трубы. Ведь если подвод сделать снизу, а отвод – сверху, то радиатор может потерять свыше 50% своей мощности.

Диагональная схема подключения радиаторов отопления при двухтрубной и однотрубной системе
Порой описанные выше схемы по тем или иными причинам не используются в помещении. Тогда остается только нижнее подключение , при котором образуется сквозной проход теплоносителя; очевидно, что до верхних секций радиатора жидкость в таком случае не доходит, из-за чего теплоотдача может снизиться на 15%. Тем не менее, данную схему нередко применяют в частных домах с индивидуальным отоплением. А теплоотдачу можно восполнить посредством распределительных трубок.

Подключение радиаторов отопления при двухтрубной системе. Двухтрубный вариант подключения
Рассмотрим ее особенности:
- Инструкция по монтажу схемы подразумевает наличие двух отдельных трубопроводов, к которым подключается каждое из устройств.
- При этом один водопровод является подающим, откуда поступает горячая вода, а другой – обратным, отдающим уже охлажденную воду.
- Так как пути, преодолеваемые теплоносителем, как в подающей трубе, так и в обратной, равны, их гидравлическое сопротивление одинаково. То есть такая схема гидравлически уравновешена, что делает ее применение наиболее оптимальным.

Правильное подключение радиаторов отопления при двухтрубной системе — диагональный метод
Совет: использование в данном случае диагонального метода подключения приборов отопления сделает работу системы более эффективной.
- Впрочем, схемы могут быть и тупиковыми, а это означает, что самый:
- длинный путь проделывает уже остывшая вода, отходящая от последнего в цепи прибора отопления;
- короткий — пролегает от первого.
По этой причине придется регулировать подачу горячей воды своими руками в каждой из батареи кранами или использовать термостатические клапаны.
Схема может быть принудительной (встраивается насос) и самотечной, основное достоинство последней заключается в том, что она не требует наличия электричества. Для этого делается верхняя разводка, а приборы отопления. так же, как и в предыдущем случае, подключаются диагонально.

Принудительная двухтрубная схема подключения радиаторов отопления с котлом и насосом
Используется она чаще всего в небольших жилых домах, имеющих не больше двух этажей. Хотя она станет идеальной в населенных пунктах, испытывающих перебои с электроэнергией, используется не часто, что объясняется необходимостью применения большого количества материалов и неэстетичным внешним видом.
Используется не только в жилых домах, но и в любых других зданиях, вне зависимости от их назначения. Ее организация требует больших затрат материалов и сил, но все же преимущества такой системы неоспоримы.
В системе есть возможность автоматического регулирования температуры
Совет: вы сможете легко подобрать ее для любых строений, какими бы сложными они ни были.
На одной ветке возможно расположение большого количества устройств отопления, и это не потребует дополнительной установки гидравлических регуляторов давления. Подача воды и обратный отток в таких схемах подключаются отдельно, что позволяет регулировать обогрев всех помещений дома автоматически. В данном случае терморегуляторы не будут оказывать никакого влияния на другие приборы, а их цена лишь ненамного увеличит стоимость монтажа.

Как правильно подключить радиатор отопления при однотрубной системе. Как правильно подключить радиаторы
От правильного подключения радиаторов зависит не только надежность их работы, но и эффективность отопления в целом. Например, при нижнем подключении радиатора он будет прогреваться несколько хуже, чем при диагональном.
Особенности установки радиатора
Подключение радиаторов отопления при однотрубной системе отопления может выполняться 2 способами:
- без использования байпаса (проточная схема). В таком случае гарантирована максимальная теплоотдача радиатора, но работу системы гибкой и надежной назвать нельзя. При такой схеме выход из строя даже одной батареи потребует отключение всей системы отопления, отключить только один радиатор не получится;
- установка радиатора с байпасом. Это несколько снижает приток теплоносителя в него в результате чего теплоотдача отопительного прибора уменьшается на величину до 10-15%, но критичными такие потери назвать никак нельзя (тем более, что при расчете всегда закладывается запас, те же 10-15%). Зато хозяин жилья получит возможность не только отключить любую батарею в любой момент, но и регулировать температуру в ней.

На фото — байпас
Обратите внимание!
Чтобы не возникло проблем с циркуляцией теплоносителя в системе отопления. диаметр байпаса нужно подбирать на 1 шаг меньше, чем диаметр подводящей трубы.
Также при установке радиаторов понадобится:
- пара шаровых кранов, устанавливаются по обе стороны от радиатора и используются для мгновенного отключения подачи воды в него;
- в принципе, инструкция этого не требует, но желательно на входе в батарею установить простенький автоматический терморегулятор. Пара сотен рублей на бюджете не скажутся, а вот возможность регулировать теплоотдачу отопителя дорогого стоит;
- фитинги для подключения байпаса к трубопроводу. Желательно обойтись без сварки, а использовать любой другой тип разъемного соединения, например, американку;
- также при установке крайне необходимо кран Маевского, часто возникают ситуации, когда один участок батареи вдруг становится прохладным, виной всему – воздушные пробки. Кран Маевского позволяет вручную спускать воздух из радиатора.

Пример правильного подключения
Обратите внимание!
На участке трубопровода под батареей можно установить шаровый кран для того, чтобы циркуляция теплоносителя осуществлялась только через радиатор отопления (регулируемый байпас).
При отключении батареи он открывается.
Как правильно подключить радиатор
Теплоотдача отопителя во много зависит от того, как именно к нему подключены подводящая и отводящая трубы. Разница между разными способами подключения может составлять до 20-25%.

Схема подключения радиаторов отопления в многоэтажном доме. Зависимость эффективность радиатора от схемы его врезки в систему
Для чего говорилось все то. что размещено в предыдущих разделах статьи? А дело в том, что от взаимного расположения подающей и обратной трубы очень серьезно зависит теплоотдача радиатора отопления.
| Схема врезки радиатора в контур | Направление потоков теплоносителя |
|---|---|
| Диагональное двухстороннее подключение радиатора, с подачей сверху | |
![]() | ![]() |
| Такая схема считается наиболее эффективной. В принципе, именно она берется за основу при расчете теплоотдачи конкретной модели радиатора, то есть мощность батареи пори таком подключении принимается за единицу. Теплоноситель, не встречая никакого сопротивления, полностью проходит через верхний коллектор, через все вертикальные каналы, обеспечивая максимальную теплоотдачу. Весь радиатор прогревается равномерно по всей своей площади. | |
![]() | ![]() |
Неправильное подключение радиаторов отопления. Однотрубная схема подключения радиаторов отопления в частном доме
Система отопления с однотрубным подключением батарей прекрасно справляется с обогревом частного дома в несколько этажей. Простота и ценовая доступность делают этот тип системы самым распространённым.

Отличить однотрубное подключение очень просто. Единая магистраль трубопровода, по которому циркулирует теплоноситель, закольцована и замыкается на отопительном котле.
Все радиаторы в помещениях подключены к ней параллельно или последовательно. Теплоноситель идёт через радиальные пути сверху вниз, на вышестоящие этажи тепло проводят подающие трубы. Циркуляция жидкости может быть естественной.
Минусы однотрубного подключения:
- Последовательное подключение подразумевает, что вход и обратка остаются цепью единой магистрали. А это значит, что от радиатора к радиатору температура теплоносителя будет становиться все ниже. Если сравнить нагрев первого и последнего «звена» отопительной системы, разница станет очевидна. Решением этой проблемы становится увеличение секций по ходу магистрали трубопровода. При этом стоимость может значительно возрасти.
- Нет возможности отрегулировать теплоотдачу отдельного радиатора.
- Давление в трубах не должно опускаться, циркуляция должна быть постоянной и равномерной. Любые перепады приведут к теплопотере. При естественном движении теплоносителя в трубопроводе соблюдайте уклон труб, что затруднительно при их низком расположении. Справиться с этой проблемой установка насоса.
- Невозможно врезать контуры водяного отопления полов.
Плюсы:
Экономично и не требует большого количества материала. Соответственно сокращается масштаб работ при подключении.

- С простой схемой разводки можно справиться самостоятельно, имея минимальные навыки проведения сантехнических работ. Не требует монтажа дополнительных приборов и сложных узлов.
- Не требует повышенного внимания. При условии правильного монтажа будет долговечна и надёжно справится со своей задачей.
- Монтируется как в одноэтажном помещении, так и в несколько этажей.
- Трубопровод в большинстве случаях расположен низко, что открывает простор для декорирования и маскировки отопления при создании интерьера помещения.
Принципы установки: фото
Часто встречается расположение магистрали вдоль стен комнаты, параллельно, или под небольшим уклоном к плоскости пола. Различия возникают только в схемах врезки трубы в радиатор.

Фото 1. Так выглядит схема однотрубного подключения с естественной циркуляцией теплоносителя с уклоном магистрали.
Самый простой способ подключения открытого типа с установкой расширительного бака в высшей точке разводки. Радиаторы врезаны последовательно, трубопровод находится внизу, вход и выход расположены на противоположных частях. Предпочтительна установка насоса.
При естественной циркуляции теплоносителя необходим не допускающий застоя «разгонный коллектор» и дальнейшее соблюдение уклона магистрали. Для предотвращения появления воздушных пробок устанавливаются краны Маевского или воздухоотводчики.

Фото 2. Стандартный кран Маевского, используемый для предотвращения возникновения воздушных пробок.
Усовершенствованное подключение однотрубной системы получило название «ленинградка». Этот способ позволяет отапливать многоквартирные дома, оставаясь простым в монтаже и экономичным в плане расхода материала. Отличие «ленинградки» заключается в байпасе — трубной перемычке между входом и выходом каждого радиатора. Его наличие позволяет равномерно регулировать температуру теплоносителя относительно удалённости от котла.

Фото 3. Однотрубная система подключения «ленинградка» с диагональным подключением радиаторов.
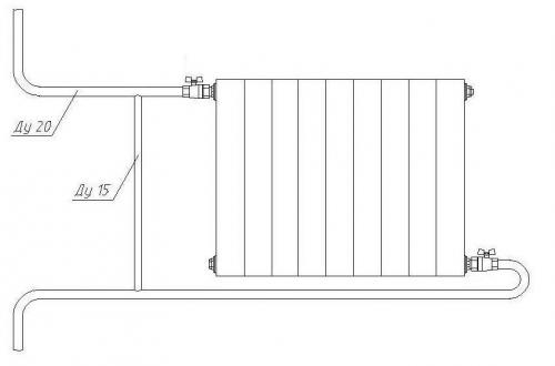
Схемы подключения радиаторов отопления в частном доме. Как устроена двухтрубная система отопления
Отопление частного дома с использованием радиаторов подразумевает обустройство трубопроводной сети. Двухтрубная система отопления лучше всего подходит для самостоятельного изготовления, так как «прощает» неопытному мастеру некоторые ошибки в работе.
Общие сведения о двухтрубной системе отопления
Любая система обогрева с жидким теплоносителем состоит из одного или нескольких замкнутых контуров, соединяющих радиаторы и котёл.
В двухтрубной разводке горячий теплоноситель подаётся по одной ветви контура, а возвращается по другой, отсюда и происходит название.
Схема типичной двухтрубной системы отопления в частном доме.
Признаки классификации:
- Организация движения теплоносителя – самотёчная и принудительная.
- Конструкция – открытая или закрытая, горизонтальная или вертикальная.
- Разводка труб – лучевая, тупиковая, кольцевая.
Комбинируя свойства, можно добиться наилучшего соответствия условиям эксплуатации.
Преимущества и недостатки
Плюсы и минусы двухтрубной системы следует рассматривать с учётом эксплуатационных свойств и технических характеристик.
| Преимущества | Недостатки |
| Одинаковая температура теплоносителя во всех радиаторах | Повышенный расход труб – к радиатору необходимо вести 2 ветки, подводящую и отводящую |
| Регулировка теплоотдачи каждой батареи | Большой диаметр труб стояка и подводки к первым в контуре радиаторам |
| Небольшое гидравлическое сопротивление | |
| Работоспособность всей системы при поломке одного или нескольких радиаторов | |
| Использование в зданиях большой этажности | |
| Гибкость вариантов подводки – в полу, в стенах, вдоль стен, под потолком и за фальшпотолком |
В таблице отмечены общие для всех двухтрубных сетей недостатки. Однако каждому варианту разводки могут быть присущи отрицательные качества, ограничивающие применение, которые мы еще рассмотрим далее.
Схемы открытых и закрытых двухтрубных систем отопления
Циркуляция теплоносителя осуществляется тремя способами:
- самотёчным (гравитационный);
- принудительным с помощью насоса;
- комбинированным.
Кроме того, системы разделяются на открытые и закрытые. Этот показатель характеризует взаимодействие теплоносителя и атмосферы.
При нагревании объём любого жидкого теплоносителя увеличивается. Известно, что жидкость практически не поддаётся сжатию, поэтому для размещения «излишков» требуется отдельное устройство – расширительный бак.
Открытый тип
Схема двухтрубной системы отопления открытого типа.
В открытых системах бак устанавливают в высшей точке, он соединён с атмосферой патрубком.
Преимущества открытой системы – простота и минимум дополнительных устройств. В качестве расширительного бачка используют любую.
Готовый расширительный бак под СО открытого типа.
По мере необходимости в бак добавляют воду. Для этого:
- устанавливают краны и соединяют систему с водопроводом;
- доливают теплоноситель через открывающийся люк.
Внимание! Открытую систему не допускается заполнять антифризом – испарившиеся газы могут быть ядовиты.
Закрытый тип
В закрытых системах используют герметичный расширительный бачок с эластичной диафрагменной или баллонной мембраной внутри. Мембрана разделяет устройство на 2 части. В одну камеру насосом нагнетают воздух под давлением 1,2–1,5 атм, а вторая соединена с трубой системы отопления.
Когда теплоноситель нагревается и расширяется, его избыток заполняет бачок. При понижении температуры жидкости мембрана выдавливает теплоноситель в систему. Предварительное нагнетание в бак воздуха позволяет поддерживать давление, необходимое для работы котла, автоматика которого отключает питание при давлении меньше 1,2 атм.
В герметичных конструкциях можно использовать антифризы или гликоли.
Схема двухтрубной системы отопления закрытого типа.
В закрытых сетях бак располагают неподалёку от котла, что упрощает контроль за работоспособностью всей конструкции.
Самотёчные схемы
Самотёчные (гравитационные) системы работают за счёт законов физики. При нормальном атмосферном давлении, будучи нагретой до 50оС, вода имеет плотность 988 кг/м3, а при 85оС — 968 кг м3.
Схема двухтрубной гравитационной системы открытого типа.
В отопительном контуре горячая вода (более лёгкая) поднимается по трубам, а остывший в радиаторах теплоноситель движется вниз, возвращаясь в котел по «обратке». Циркуляционный насос не используется.
Какое подключение радиаторов отопления лучше. Нижнее

Схема, ещё называемая вентильной, которая традиционно считается менее эффективной, нежели предыдущая. Однако она даёт возможность скрыто подвести трубопровод из пола, плинтуса, стены, что во многом определяет её популярность. Зачастую монтаж радиаторов отопления с нижним подключением выполняют своими руками хозяева автономных комплексов обогрева в небольших домах, коттеджах. Именно поэтому к такому способу установки наиболее адаптированы стальные панельные приборы, некоторые модели алюминиевых и биметаллических секционных, которые рекомендованы для индивидуальных систем обогрева.
Для реализации этой технологии они оснащаются двумя отверстиями в донной части, к которым подсоединяется разводка.
Нижнее однотрубное подключение вентильных радиаторов отопления
Предполагает наличие только одной магистрали (подающей), идущей замкнутым круговым контуром от котла и возвращающейся к нему же. Прибор врезается в эту линию, подсоединяясь к ней входным и выходящим патрубками. Основные преимущества такой схемы: минимальный расход материалов для её обустройства и простота сборки.
Недостатков несколько больше
- нижнее подключение радиаторов отопления к однотрубной системе исключает возможность регулировки мощности отдельной единицы
- неравномерный прогрев приборов, когда первые в цепи получают более горячий теплоноситель, последние – уже практически остывший
- необходимость сливать всю систему в случае ремонта или замены одного устройства
Нижнее подключение 2-трубное радиаторов отопления
В этом случае имеются две отдельных линии: подающая и обратная, каждая из которых подводится к определённому патрубку прибора. Для реализации такой разводки потребуется больше труб, запорно-регулирующей арматуры, фитингов и т.д., но, в конечном итоге, она позволит оптимизировать расход энергии без ущерба для комфорта микроклимата помещений. Во-первых, в таком комплексе имеется возможность индивидуально регулировать мощность каждого прибора благодаря установке ручных или термостатических вентилей. Во-вторых, наличие отсечной арматуры позволяет без проблем демонтировать прибор.
В 2-трубных системах нижнее подключение радиаторов отопления плюсы которого очевидны, а минусы не слишком существенны, является наиболее популярным вариантом. Оно может выполняться двумя способами
- Параллельным. В этом случае каждый прибор последовательно подсоединяется к подающей и обратной линиям. Вариант, где-то напоминающий однотрубную схему, но более усовершенствованный.
- Лучевым. Разводка идёт от распределительного коллектора индивидуально к каждому потребителю. Лучший в плане комфорта эксплуатации и экономичности способ, требующий значительных затрат на стадии монтажа.
Подключение батарей отопления с нижней подачей. Какие радиаторы рассчитаны на нижнее подключение
Диагональная схема присоединения радиаторов недаром считается самой эффективной. Именно так обеспечивается максимальный теплосъём, равномерное распределение теплоносителя и оптимальный температурный градиент, способствующий интенсивной конвекции. Даже при нижнем подводе труб к радиатору одним из обязательных требований считается обеспечение протока воды по диагонали от верхнего края к нижнему противоположному. Но не все радиаторы имеют устройство, позволяющее добиться такого распределения теплоносителя.
Конструкция панельного радиатора с нижней подводкой
Наиболее распространённый тип нагревательных приборов, в которых требуемые условия предусмотрены конструкцией, это стальные панельные радиаторы. Другой разновидностью можно назвать секционные радиаторы с нижним подключением, хотя коренные отличия в их устройстве имеются только у первых двух секций, все остальные — самые обычные. Оба упомянутых типа нагревателей имеют пару патрубков, расположенных в донной части, то есть ориентированных к полу. В обоих случаях специфика устройства такова, что патрубок подачи подключен напрямую к каналу, по которому теплоноситель направляется в верхнюю часть лабиринта.
Секционный радиатор с нижним подключением
Также возможно дооснащение обычных секционных радиаторов с целью их подключения с нижним боковым подводом. Для этого используется специальная арматура, за счёт которой изменяется конфигурация каналов для циркуляции. Нижнее подключение может быть двухсторонним, в этом случае со стороны подачи вместо футорки вкручивается клапан, который торцом упирается в ниппель первой секции и глушит его, при этом выходное отверстие направлено строго вверх.
Клапан для нижнего подключения радиатора
Также возможно и одностороннее подключение, для которого необходима установка клапана с трубчатым зондом, предназначенным для оттока охлаждённого теплоносителя.
Термостатический узел для нижнего подключения радиатора
Описанный спектр арматуры может использоваться для большинства моделей секционных биметаллических и алюминиевых радиаторов. В разряде исключений оказываются разве что такие экзотические представители мира нагревательных приборов, как Rifar Monolit, не имеющие ниппелей, хотя в их модельном ряду присутствуют модификации для нижнего подвода труб. В сантехнической практике также встречаются примеры нижнего подключения чугунных радиаторов, хотя возможность такого монтажа всегда определяется индивидуально в зависимости от модели.



