Радиатор алюминиевый или стальной. Стальные лестничные радиаторы
- Радиатор алюминиевый или стальной. Стальные лестничные радиаторы
- Стальные или алюминиевые радиаторы для частного дома. Отличия стальных и алюминиевых радиаторов: сравниваем по критериям выбора
- Какой радиатор лучше стальной или биметаллический. Выбираем лучший радиатор отопления, стальной или биметаллический
- Стальной радиатор. Плюсы и минусы стальных радиаторов отопления
- Биметаллические радиаторы. Устойчивость к коррозии
- Стальные радиаторы, как выбрать. Особенности стальных радиаторов
Радиатор алюминиевый или стальной. Стальные лестничные радиаторы
Названы так, потому что имеют характерную форму лестницы, расположенной в горизонтальном или вертикальном положении. Вертикальные батареи чаще всего ставят в санузлы и лестничные пролеты. Горизонтальные батареи весьма эффективны в гостиных и спальнях.
Главным преимуществом стальных радиаторов этого типа является их весьма привлекательный внешний вид, во многих случаях намного превосходящий алюминиевые решения. Лестничные батареи выглядят очень эффектно, во-многом потому, что они представлены в нескольких цветовых вариантах.
Отметим также значительную мощность таких радиаторов, при относительно небольших габаритах. В особенности, если сравнивать их со стальными панельными радиаторами. Поэтому, располагая небольшой площадью монтажа, вы можете установить небольшой лестничный радиатор, который справится с обогревом даже большой комнаты.
Такие радиаторы из стали считаются более эффективным из-за небольшого потребления воды. Лестничные батареи отличаются более удобным контролем за их работой и менее частой продувки установки. Не следует забывать о широком ассортименте таких продуктов.
Самым большим недостатком стальных радиаторов является их подверженность коррозии. Если в вашей отопительной система вода низкого качества, нагревательные устройства могут быть повреждены довольно быстро.
Также важным критерием является влажность воздуха в помещениях. Помните, что из-за постоянно высокой влажности может возникнуть коррозия радиаторов. Вот почему стальные батареи не рекомендуется устанавливать в ванных комнатах или помещениях, куда часто попадает дождь и влага.
Источник: https://domastroevo.ru/stati/radiator-alyuminievyy-ili-stalnoy-stalnye-lestnichnye-radiatory
Стальные или алюминиевые радиаторы для частного дома. Отличия стальных и алюминиевых радиаторов: сравниваем по критериям выбора
Чтобы понять, какой радиатор отопления лучше: стальной или алюминиевый, трубчатый или панельный, литой или экструзионный, необходимо учитывать все особенности их использования. Варианты, идеально подходящие для частного дома, могут быть не очень удачными для квартиры и наоборот. Ниже мы разберем наиболее важные критерии выбора и сравним типы батарей в соответствии с ними.
Сравнение теплоотдачи
Качество теплоотдачи зависит не только от материала радиатора, но и от его конструкции. Самой низкой способностью отдавать тепло обладают стальные трубчатые модели. Панельные варианты значительно превосходят их по этому параметру, однако и они уступают алюминиевым моделям. Однако при расчете важно помнить, что качество обогрева зависит еще и от температуры теплоносителя, который поступает в отопительную систему. Большинство отдельных котлов не может нагреть воду выше 90 градусов, температура жидкости в городской отопительной системе также редко превышает этот показатель. Соответственно, разница в теплоотдаче в реальных условиях будет не так заметна, как заявлено производителем.
Требования к теплоносителю и срок службы
Длительность службы радиатора, а также качество его работы во многом зависит от качества теплоносителя и его совместимости с металлом, из которого сделана батарея. При подборе радиатора важно учитывать следующие нюансы.
- Подача грязной воды в систему приводит к заиливанию оборудования и существенно снижает его КПД.
- Чрезмерно жесткая вода с высокой кислотностью вызывает коррозию тепловых радиаторов.
- При использовании неармированных полипропиленовых труб в систему может проникать кислород, который также ускоряет процессы коррозии.
Коррозии подвержены как алюминиевые, так и стальные радиаторы, однако модели из стали считаются менее устойчивыми к процессам разрушения. Некоторые производители алюминиевых радиаторов дополнительно наносят на внутреннюю стенку специальное защитное покрытие. Такие батареи особенно требовательны к качеству теплоносителя. Если жидкость содержит механические примеси, они разрушают пленку. После этого теплоноситель вступает в реакцию с алюминием, вызывая коррозию и образование газа, который накапливается в батарее и снижает ее КПД. При службе в таких условиях радиатор может выйти из строя в течение 5-6 лет.
Важно помнить, что допустимый уровень pH теплоносителя для алюминиевых радиаторов составляет 7-8. Согласно нормативам, вода, которая используется в общегородских отопительных сетях, имеет pH 8,3-9,5. Соответственно, даже при раннем выходе батареи из строя случай будет считаться негарантийным.
Средний срок службы радиаторов в идеальных условиях составляет:
- стальной панельный – 15 лет;
- стальной трубчатый – 20 лет;
- алюминиевый литой или экструзионный – 35 лет;
- алюминиевый анодированный – 50 лет.
Не стоит забывать, что на срок службы влияет не только устойчивость к коррозии, но и физическая прочность. Алюминий - это мягкий металл. Сильный удар или даже чересчур сильное затягивание крана может привести к деформации, потере герметичности и выходу оборудования из строя.
Совместимость с металлами
При выборе радиатора важно учитывать материал, из которого изготовлены трубы. Так, считается, что для водяных систем отопления не стоит сочетать алюминиевые батареи и трубы из меди. В случае использования пара в качестве теплоносителя нежелательно использовать медные трубы вместе со стальным радиатором. Однако при желании это правило можно обойти, если следовать несложным правилам.
- Использовать переходники из нейтрального металла, чтобы избежать соприкосновения алюминия и меди.
- Выбирать качественный теплоноситель с минимальным количеством примесей, а также не забывать про ингибиторы коррозии.
- При монтаже закрытой отопительной системы коррозия идет не так активно, поскольку свежая вода не поступает в трубы регулярно.
Кроме того, желательно выбрать тот радиатор, в ТТХ которого указана возможность использования с медными трубами. В этом случае при поломке в течение гарантийного срока можно обратиться в сервисный центр для ремонта или замены продукции.
Допустимое рабочее давление
При выборе радиатора необходимо учитывать два типа давления: рабочее и опрессовочное. В таблице представлены средние пределы для разных типов батарей.
Значения, указанные в таблице, указаны для новых радиаторов. При длительной эксплуатации и коррозии металла прочность снижается. Чем старше батарея, тем больше внимания она требует, особенно в период опрессовки.
Источник: https://alyuminievye-batarei.aystroika.info/novosti/radiatory-alyuminievye-vs-stalnye-alyuminievye
Какой радиатор лучше стальной или биметаллический. Выбираем лучший радиатор отопления, стальной или биметаллический

Чтобы решить, какой радиатор отопления лучше, стальной или биметаллический, следует принять во внимание основные конструкционные различия, технические и эксплуатационные характеристики.
Не стоит поспешно приобретать понравившиеся батареи, ориентируясь исключительно на их стоимость или внешний вид, предварительно не получив исчерпывающей информации об остальных параметрах и отличиях.
Различия между радиаторами из стали и биметалла
Неверно будет считать, что единственным отличием между стальными и биметаллическими батареями является используемый при производстве металл. Существуют важные отличия в конструкции и устройстве влияющие на характеристики каждого прибора отопления.
Конструкционные особенности биметаллических приборов отопления
Биметаллические калориферы состоят из стального или медного сердечника, в виде прочной толстостенной трубы, окруженной алюминиевым корпусом. Такая конструкция влияет на способность выдерживать максимальное рабочее давление теплоносителя в системе отопления 16 атм., и выше. Дополнительно можно отметить следующие преимущества:
- Длительный срок эксплуатации устройства. Батареи из биметалла гарантированно проработают больше 15, при условии правильной эксплуатации 20 лет.
- Невысокие требования к качеству теплоносителя. Сталь ржавеет медленно, не вступает в химическую реакцию с добавками, используются для увеличения теплоотдачи в центральных системах отопления.
- Возможность подключения к центральной системе отопления в многоэтажном доме.

Между радиаторами из стали и биметалла существенная разница в стоимости. Производитель предлагает алюминиево-стальные батареи, по цене, приблизительно на треть дороже, чем за металлический аналог.
Конструкция трубчатых и панельных батарей из стали
Батареи из стали изготавливаются двумя основными способами. От выбранной конструкции зависят эксплуатационные характеристики изделия:
- Стальные панельные радиаторы – конструкция представляет две металлические пластины, соединенные между собой. На внутренней стороне каждого листа выдавлена канавка. При стыковке между пластинами образуется канал для циркуляции теплоносителя.
- Батареи трубного типа – представляют простую конструкцию, состоящую из стальной трубы и напаянными или закольцованными ребрами для распределения тепла. Устройство отличает низкая стоимость и сравнительно небольшая эффективность. Выгодным отличием стальных трубчатых радиаторов является устойчивость к высокому гидравлическому давлению.

Сравнение теплоэффективности стальных и биметаллических радиаторов
Теплоотдача биметаллических и стальных радиаторов приблизительно одинаковая. Это обусловлено тем, что в качестве основного нагревательного элемента обоих типов батарей используется сердечник, пластина или труба из стали.
В качестве достоинства биметалла можно отметить большее время необходимое для остывания батареи.

Какой радиатор выбрать, биметалл или сталь
Сравнение стальных трубчатых радиаторов с биметаллическими показало практически идентичные параметры теплоотдачи и устойчивости к высокому давлению в системе отопления и некачественному теплоносителю. Панельные модели, хотя и имеют красивый внешний вид и привлекательную стоимость, уступают в этом параметре предыдущим вариантам.
Устанавливать стальные панели не рекомендуется в высотных домах, а также в помещениях с повышенной сыростью. Но для частного дома с автономным отоплением, стальные панельные радиаторы являются оптимальным вариантом. Срок эксплуатации изделия рассчитан на 10 лет. Толщина стали в панелях 1,25 мм, что обеспечивает долгий срок службы.
Биметаллические калориферы можно устанавливать для любых помещений. Способность выдерживать высокое давление позволяет подключение к центральной системе отопления. При этом приборы имеют красивый внешний вид, поэтому их чаще всего приобретают для офисов и квартир. Несколько уменьшает популярность изделий высокая стоимость.
Трубчатые калориферы – в качестве недостатков можно отметить непрезентабельный внешний вид. Остальные характеристики относительно теплоотдачи, стоимости и надежности не уступают тем, что имеют панельные и биметаллические приборы отопления. Производители батарей недавно начали налаживать выпуск хромированной продукции, что несколько увеличило спрос потребителей.
Что лучше выбрать, стальные отопительные радиаторы или биметаллические? Для подключения к центральному отоплению лучше использовать биметалл или, по крайней мере, трубчатый калорифер. Для автономных систем вполне подойдут панельные модели.
Чтобы решить, какой радиатор отопления лучше, стальной или биметаллический, следует принять во внимание основные конструкционные различия, технические и эксплуатационные характеристики.
Не стоит поспешно приобретать понравившиеся батареи, ориентируясь исключительно на их стоимость или внешний вид, предварительно не получив исчерпывающей информации об остальных параметрах и отличиях.
Конструктивные отличия
Биметаллические калориферы состоят из стального или медного сердечника, в виде прочной толстостенной трубы, окруженной алюминиевым корпусом. Такая конструкция влияет на способность выдерживать максимальное рабочее давление теплоносителя в системе отопления 16 атм., и выше.
Дополнительно можно отметить следующие преимущества:
- Между радиаторами из стали и биметалла существенная разница в стоимости. Производитель предлагает алюминиево-стальные батареи, по цене, приблизительно на треть дороже, чем за металлический аналог.
- Батареи из стали изготавливаются двумя основными способами. От выбранной конструкции зависят эксплуатационные характеристики изделия:
Технические характеристики
Теплоотдача биметаллических и стальных радиаторов приблизительно одинаковая. Это обусловлено тем, что в качестве основного нагревательного элемента обоих типов батарей используется сердечник, пластина или труба из стали.

Источник: https://alyuminievye-batarei.aystroika.info/novosti/radiatory-alyuminievye-vs-stalnye-alyuminievye
Стальной радиатор. Плюсы и минусы стальных радиаторов отопления
На смену громоздким и нескладным чугунным радиаторам пришло новое поколение элегантных и легких стальных радиаторов. Как понятно из названия, выполненные такие радиаторы из стали и могут быть трубчатыми и панельными. Панельные радиаторы самые распространенные и могут состоять из различного количества секций. Трубчатые радиаторы представляют собой конструкцию из стальных труб, по которым проходит горячая вода. Такие радиаторы бывают абсолютно разного и оригинального дизайна.
Основными производителями стальных радиаторов выступают страны Европы: Германия, Италия, Чехия и Франция. При их производстве используют низкоуглеродную сталь с покрытием фосфатами, порошковой эмалью и термической обработкой. Панельные радиаторы производятся разных форм и размеров, что позволяет удовлетворить потребности большинства потребителей. Соотношение цены и качества стальных радиаторов является максимально выгодной и доступной.
Достоинства:
Оригинальный и эстетичный внешний вид, современность конструкции. Стальные радиаторы выглядят очень просто и стильно, они подходят к большинству интерьеров, занимают немного места и совсем не портят вид комнаты.
Невысокая цена , большой выбор моделей и производителей на рынке. Ассортимент стальных радиаторов может удовлетворить потребности любого покупателя, а простота конструкции помогает сохранить невысокую цену на изделие.
Низкая тепловая инертность и хорошая тепловая отдача. Малый объем теплоносителя помогает потреблять меньше энергии, при этом хорошо прогревая воздух, а доля теплового потока, которая передается конвекцией достигает 75%, что позволяет отнести данный тип радиаторов к конвекторам.
Разрешены в использовании в жилых многоквартирных домах, больницах и даже дошкольных заведениях. Самым главным достоинством данных радиаторов выступает их экологичность и безопасность.
Простота монтажа и демонтажа.
Недостатки:
Низкая устойчивость к гидро- и пневмоударам. Низкое рабочее давление и чувствительность к ударам, в т.ч. и гидравлическим, приводит к сокращению срока службы данного типа радиаторов.
Низкая коррозийная стойкость . При сливе воды из системы, соприкосновение атмосферы со стенками радиатора может вызвать появление коррозии.
Биметаллические радиаторы. Устойчивость к коррозии
Устойчивость радиаторов к коррозии напрямую связана с составом теплоносителя и его кислотно-щелочным балансом. Чтобы улучшить свойства теплоносителя, в него добавляют химические присадки . При любой теплосети есть химическая лаборатория, где проверяют и при необходимости корректируют состав теплоносителя. В частных домах хозяева выбирают теплоноситель самостоятельно или по совету сантехника.
Антифризы на основе пропиленгликоля и этиленгликоля не нуждаются в дополнительных присадках — их добавляют при производстве. Эти теплоносители бывают в виде концентратов, которые нужно разбавлять водой. А вода из скважины может быть разного качества, поэтому в чистом виде лучше не использовать ее ни как теплоноситель, ни для разбавления концентрированного антифриза, потому что это может повредить радиаторы.
Коррозия внутри алюминиевого радиатора. Источник: reemont.ru
Из-за присадок теплоноситель может иметь более щелочную или кислотную среду. Алюминиевые радиаторы рассчитаны на pH от 7 до 8,3. Чем выше показатель щелочи в теплоносителе, тем быстрее материал может коррозировать, особенно в местах соединений радиаторов с отопительными трубами. Если через алюминиевые радиаторы постоянно проходит щелочной теплоноситель, со временем соединительные элементы истончатся и разгерметизируются, а радиатор протечет. Алюминиевые радиаторы не выносят и сильно кислотные среды.
Биметаллические радиаторы выдерживают pH теплоносителя от 7 до 10, поэтому их можно устанавливать в более щелочные среды. Как правило, в центральных теплосетях стараются поддерживать pH от 7 до 9, но этот показатель не фиксированный и может меняться, поэтому для домов с центральным отоплением лучше выбрать биметаллические радиаторы.
Стальные радиаторы, как выбрать. Особенности стальных радиаторов
Стальные радиаторы предназначены для отопительных систем с рабочим давлением от 6 до 15 атмосфер и температурой теплоносителя 110-120 градусов, что позволяет использовать их как для автономного, так и для централизованного отопления в зданиях со средней этажностью.
Преимуществами отопительных приборов из нержавеющей стали являются:
- Высокая теплоотдача, благодаря высокой теплопроводности стали КПД радиатора близок к 100%.
- Низкая инерционность. Радиатор быстро нагревается и быстро остывает, что позволяет поддерживать идеальный микроклимат в помещении.
- Небольшой вес, который упрощает монтаж и транспортировку, а также позволяет устанавливать радиаторы даже на слабые стены.
- Простота конструкции обеспечивает легкость обслуживания прибора.
- Долговечность.
- Широкий выбор моделей в различных габаритах.
- Эстетичный внешний вид. Благодаря разнообразию дизайнерских решений и возможности окраски панелей в широкой цветовой гамме, стальной радиатор идеально впишется в любой интерьер.
К недостаткам можно отнести:
- Подверженность коррозии. Не смотря на использование всевозможных защитных покрытий на внутренней поверхности радиатора рано или поздно все равно начинается разрушительный процесс.
- Низкая устойчивость к гидравлическим ударам. Сварные швы соединяющие стальные листы в пластинах панельных радиаторов и секции в трубчатых являются уязвимыми местами для перепадов давления, они могут приводить как к деформации радиатора, так и появлению протечек.
Трубчатый или панельный
Существует два конструктивных типа радиаторов отопления: панельные и трубчатые. Первые дешевле, легче и компактнее, но прочность у них ниже. Вторые имеют больший вес и выдерживают более высокое давление в отопительной системе. Ниже рассмотрим особенности каждого из типов.
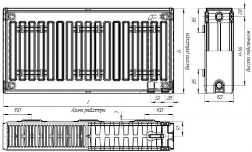
Панельный стальной радиатор отопления состоит из 2 базовых элементов:
- Нагревательная панель. Внутри нее полое пространство, через которое протекает теплоноситель. Тепло может излучаться как через плоскую панель обращенную в помещение, так и передаваться на конвекционный элемент.
- Конвекционный элемент представляет собой гофрированную пластину, прилегающую к нагревательной панели, его задача расширять площадь теплоотдачи благодаря оребрению и обеспечивать конвекцию воздуха в помещении. Благодаря конвекции воздух в помещении прогревается быстрее, но также в воздух поднимается пыль.
В каталогах часто можно видеть тип радиатора обозначенный двумя цифрами. Первая цифра указывает на количество нагревательных панелей в конструкции, а вторая на количество конвекционных вариантов. Самые распространенные типы – 11, 22 и 33, но существуют также модели меньшим количеством конвекционных элементов (21, 31 и 32) и совсем без конвекции (10,20 и 30).
Достоинства панельных радиаторов:
- Малый вес.
- Высокая теплоотдача.
- Низкая цена.
Недостатки:
- Низкая стойкость к гидроударам и невысокое рабочее давление.
- Низкая инерционность. Быстро остывают после выключения отопительной системы.
- Конвекция приводит к повышению количества пыли в воздухе.
Трубчатые радиаторы отопления
По этому принципу работали старые чугунные радиаторы в домах советской постройки. В отличие от панельных радиаторов трубчатые состоят из секций, в которых два коллектора соединены между собой более тонкими трубками, на секцию таких трубок может быть от двух до четырех, секции соединяются между собой посредством сварки.
Также трубчатые радиаторы можно расширять, добавляя новые секции, что позволяет более точно подобрать мощность отопительного прибора для конкретного помещения. В случае с панельными радиаторами это невозможно.
Преимущества:
- Стойкость к гидроударам.
- Долговечность.
- Эстетичный внешний вид.
- Меньшая толщина.
Источник: https://alyuminievye-batarei.aystroika.info/novosti/radiatory-alyuminievye-vs-stalnye-alyuminievye