Подключение радиаторов к системе отопления примеры. Виды системы
- Подключение радиаторов к системе отопления примеры. Виды системы
- Как правильно подключить радиатор отопления при однотрубной системе. Однотрубная система
- Схемы подключения радиаторов отопления в многоквартирном доме. Разновидности отопительных систем в зависимости от типа проводки труб
- Схемы подключения радиаторов отопления в частном доме. Как устроена двухтрубная система отопления
- Нижнее подключение радиаторов отопления. Какие радиаторы рассчитаны на нижнее подключение
- Неправильное подключение радиаторов отопления. Топ-7 ошибок при установке радиаторов
- Подключение радиаторов отопления при двухтрубной системе. О способах подключения батарей
Подключение радиаторов к системе отопления примеры. Виды системы
При устройстве отопительных систем применяют две схемы:
- Однотрубную – является наиболее простой, так как теплоноситель циркулирует по одной трубе, к которой последовательно подсоединены отопительные приборы. Ее недостатком является то, что она не позволяет регулировать подачу тепла. Поэтому теплоотдача соответствует проектной норме, заложенной при проектировании. Такая схема применяется в небольших системах, так как при большой протяжности трубопровода и большом количестве радиаторов, приборы будут нагреваться неравномерно.
- Двутрубную — смысл ее заключается в том, что горячая вода течет по одной трубе, а остывшая возвращается в котел по другой. Подключение батарей отопления в частном доме в этом случае осуществляется, соответственно, параллельно. Достоинством такого устройства является равномерный нагрев секций, а также возможность регулировки теплоотдачи. Из недостатков можно выделить лишь потребность в большем количестве труб, соответственно стоимость конструкции возрастает.
Схема двутрубной системы
Следует отметить, что вне зависимости от типа системы, подключение батарей отопления своими руками можно реализовать двумя способами:
- По вертикальной схеме – нагревательный прибор соединяется с вертикальным стояком, от которого выполняется разводка к радиаторам.
- По горизонтальной схеме – циркуляция теплоносителя осуществляется по горизонтальным трубопроводам.
Выбор схемы подключения батарей отопления зависит от особенностей дома. К примеру, если жилье содержит несколько этажей, то соединение реализуется по вертикальной схеме.
Как правильно подключить радиатор отопления при однотрубной системе. Однотрубная система
Это упрощенный вариант обустройства отопления в коттедже. Данный вариант довольно экономичен, так как требует для разводки меньше труб и выполняется с меньшими трудозатратами на монтажные работы. Система представляет собой цепь радиаторов, соединенных одной трубой. Теплоноситель, нагретый в котле, поступает поочередно в каждый радиатор, перетекая из одного в другой. То есть «обратка» из одой батареи становится подачей для следующей, и т. д.
Для однотрубных систем сейчас можно установить специальные модули Радиплект и Радиплект Терм от Gibax, благодаря которым можно поддерживать температуру в домеилирежимами. Их монтаж достаточно прост, а минимальное количество соединений даст дополнительную гарантию на надежность соединений.
Однотрубная схема подключения радиаторов отопления в частном доме имеет один существенный недостаток – при ней радиаторы нагреваются неравномерно. Самым горячим всегда будет первый радиатор, а дальше от батареи к батарее температура будет постепенно снижаться. Следовательно, поддерживать одинаковую температуру во всех помещениях имея однотрубное отопление невозможно.
При определенных особенностях планировки однотрубная система может быть вполне подходящей. Так, если в небольшом доме цепь радиаторов будет начинаться с жилых комнат и заканчиваться техническими помещениями, этот вариант может оказаться оптимальной. Но в просторных коттеджах лучше устанавливать двухтрубное отопление.
Двухтрубная система
Более дорогостоящий в обустройстве, но простой и удобный в эксплуатации вариант. В этой системе функционируют одновременно две линии труб. Первая подает горячую воду к каждой батарее. То есть идет одна труба с заходом в каждый радиатор. Теплоноситель, прежде чем попасть в радиатор, независимо от его расположения в цепи, не заходит в соседние радиаторы, а идет напрямую. Вторая труба собирает обратку из всех радиаторов и доставляет ее в коллектор нагрева.
Преимущества донного типа разводки в том, что во всех точках теплообмена достигается практически одна температура. Такая система лучше поддается регулировке и обеспечивает равномерный обогрев всего здания.
Лучевая (коллекторная) система
Коллекторная схема это вариант двухтрубного подключения, но с более сложной разводкой. Применяется в тех случаях, когда нужно скрыть трубы, например под напольным покрытием. В этом случае обустраивается два коллектора – под подачу и под обратку, и от каждого радиатора тянется одна труба в первый коллектор, и еще одна во второй.
В некоторых схемах подключения применяются два вида системы. Весь дом может отапливаться по двухтрубному принципу, но для отдельного участка, например веранды или большой гостиной применена связка нескольких радиаторов по однотрубному принципу. При разработке двухтрубной схемы подключения батарей отопления в частном доме главное не запутаться в коллекторах подачи и обратки.
Терморегулятор для радиатора отопления: конструкция и установка
Схема подключения радиаторов к отопительной системе
Теплоноситель перемещается по трубам и каналам батарей благодаря двум факторам. Первый – это стремление жидкости заполнить пустоты. При отсутствии воздушных пробок создается естественный динамический напор теплоносителя. Второй фактор – движение потоков разной температуры. Горячая вода стремится вверх, вытесняя в нижний поток холодную.
Диагональное верхнее подключение
Диагональное подключение радиаторов с верхней подачей позволяет обустроить самое эффективное отопление помещений. Горячая вода подается в верхний вход, внутри она распространяется по секциям, и, остывая, опускается вниз, после чего вытесняется в нижний вход в коллектор обратки, расположенный с другой стороны радиатора.
Схемы подключения радиаторов отопления в многоквартирном доме. Разновидности отопительных систем в зависимости от типа проводки труб
Однотрубная. Подача горячей воды осуществляется на верхний этаж. Оттуда, стекая по радиаторам, она поступает вниз по одиночному закольцованному инженерному сооружению из цилиндрических изделий. Такой тип соединения считается самым простым. Он отличается высокой надежностью и применяется во всех многоквартирных домах, где подключено центральное отопление.
Чтобы добиться такой простоты, на радиаторы не ставятся датчики регулировки температуры. Потому разница остывания теплоносителя между верхним и нижним этажами порой может превышать 10 градусов. Все зависит от материала, из которого изготовлен радиатор.
Вот почему однотрубные системы оборудуются чугунными батареями. Эти приборы имеют высокую теплоотдачу, вследствие чего уменьшается разница остывания устройств между этажами.
Однотрубные отопительные системы подразделяются на две группы:
- без перемычек;
- с несколькими перемычками.
Второй тип конструкции оборудуется вентилем, позволяющим следить за потоком воды, а также терморегулятором, контролирующим температуру теплоносителя.
Двухтрубная. Чтобы происходила циркуляция жидкости в радиаторе, устанавливаются несколько закольцованных трубопроводов. Через одно кольцо подается горячий теплоноситель, а через другое, называемое обраткой, жидкость возвращается для нагрева.
Радиаторы в такой отопительной системе имеют одинаковую температуру. Однако два контура требуют большего количества расходных материалов. Подобные конструкции устанавливаются в коттеджах и элитных многоэтажных домах.
Схемы подключения радиаторов отопления в частном доме. Как устроена двухтрубная система отопления
Отопление частного дома с использованием радиаторов подразумевает обустройство трубопроводной сети. Двухтрубная система отопления лучше всего подходит для самостоятельного изготовления, так как «прощает» неопытному мастеру некоторые ошибки в работе.
Общие сведения о двухтрубной системе отопления
Любая система обогрева с жидким теплоносителем состоит из одного или нескольких замкнутых контуров, соединяющих радиаторы и котёл.
В двухтрубной разводке горячий теплоноситель подаётся по одной ветви контура, а возвращается по другой, отсюда и происходит название.
Схема типичной двухтрубной системы отопления в частном доме.
Признаки классификации:
- Организация движения теплоносителя – самотёчная и принудительная.
- Конструкция – открытая или закрытая, горизонтальная или вертикальная.
- Разводка труб – лучевая, тупиковая, кольцевая.
Комбинируя свойства, можно добиться наилучшего соответствия условиям эксплуатации.
Преимущества и недостатки
Плюсы и минусы двухтрубной системы следует рассматривать с учётом эксплуатационных свойств и технических характеристик.
| Преимущества | Недостатки |
| Одинаковая температура теплоносителя во всех радиаторах | Повышенный расход труб – к радиатору необходимо вести 2 ветки, подводящую и отводящую |
| Регулировка теплоотдачи каждой батареи | Большой диаметр труб стояка и подводки к первым в контуре радиаторам |
| Небольшое гидравлическое сопротивление | |
| Работоспособность всей системы при поломке одного или нескольких радиаторов | |
| Использование в зданиях большой этажности | |
| Гибкость вариантов подводки – в полу, в стенах, вдоль стен, под потолком и за фальшпотолком |
В таблице отмечены общие для всех двухтрубных сетей недостатки. Однако каждому варианту разводки могут быть присущи отрицательные качества, ограничивающие применение, которые мы еще рассмотрим далее.
Схемы открытых и закрытых двухтрубных систем отопления
Циркуляция теплоносителя осуществляется тремя способами:
- самотёчным (гравитационный);
- принудительным с помощью насоса;
- комбинированным.
Кроме того, системы разделяются на открытые и закрытые. Этот показатель характеризует взаимодействие теплоносителя и атмосферы.
При нагревании объём любого жидкого теплоносителя увеличивается. Известно, что жидкость практически не поддаётся сжатию, поэтому для размещения «излишков» требуется отдельное устройство – расширительный бак.
Открытый тип
Схема двухтрубной системы отопления открытого типа.
В открытых системах бак устанавливают в высшей точке, он соединён с атмосферой патрубком.
Преимущества открытой системы – простота и минимум дополнительных устройств. В качестве расширительного бачка используют любую.
Готовый расширительный бак под СО открытого типа.
По мере необходимости в бак добавляют воду. Для этого:
- устанавливают краны и соединяют систему с водопроводом;
- доливают теплоноситель через открывающийся люк.
Внимание! Открытую систему не допускается заполнять антифризом – испарившиеся газы могут быть ядовиты.
Закрытый тип
В закрытых системах используют герметичный расширительный бачок с эластичной диафрагменной или баллонной мембраной внутри. Мембрана разделяет устройство на 2 части. В одну камеру насосом нагнетают воздух под давлением 1,2–1,5 атм, а вторая соединена с трубой системы отопления.
Когда теплоноситель нагревается и расширяется, его избыток заполняет бачок. При понижении температуры жидкости мембрана выдавливает теплоноситель в систему. Предварительное нагнетание в бак воздуха позволяет поддерживать давление, необходимое для работы котла, автоматика которого отключает питание при давлении меньше 1,2 атм.
В герметичных конструкциях можно использовать антифризы или гликоли.
Схема двухтрубной системы отопления закрытого типа.
В закрытых сетях бак располагают неподалёку от котла, что упрощает контроль за работоспособностью всей конструкции.
Самотёчные схемы
Самотёчные (гравитационные) системы работают за счёт законов физики. При нормальном атмосферном давлении, будучи нагретой до 50оС, вода имеет плотность 988 кг/м3, а при 85оС — 968 кг м3.
Схема двухтрубной гравитационной системы открытого типа.
В отопительном контуре горячая вода (более лёгкая) поднимается по трубам, а остывший в радиаторах теплоноситель движется вниз, возвращаясь в котел по «обратке». Циркуляционный насос не используется.
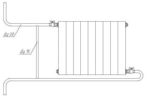
Нижнее подключение радиаторов отопления. Какие радиаторы рассчитаны на нижнее подключение
Диагональная схема присоединения радиаторов недаром считается самой эффективной. Именно так обеспечивается максимальный теплосъём, равномерное распределение теплоносителя и оптимальный температурный градиент, способствующий интенсивной конвекции. Даже при нижнем подводе труб к радиатору одним из обязательных требований считается обеспечение протока воды по диагонали от верхнего края к нижнему противоположному. Но не все радиаторы имеют устройство, позволяющее добиться такого распределения теплоносителя.
Конструкция панельного радиатора с нижней подводкой
Наиболее распространённый тип нагревательных приборов, в которых требуемые условия предусмотрены конструкцией, это стальные панельные радиаторы. Другой разновидностью можно назвать секционные радиаторы с нижним подключением, хотя коренные отличия в их устройстве имеются только у первых двух секций, все остальные — самые обычные. Оба упомянутых типа нагревателей имеют пару патрубков, расположенных в донной части, то есть ориентированных к полу. В обоих случаях специфика устройства такова, что патрубок подачи подключен напрямую к каналу, по которому теплоноситель направляется в верхнюю часть лабиринта.
Секционный радиатор с нижним подключением
Также возможно дооснащение обычных секционных радиаторов с целью их подключения с нижним боковым подводом. Для этого используется специальная арматура, за счёт которой изменяется конфигурация каналов для циркуляции. Нижнее подключение может быть двухсторонним, в этом случае со стороны подачи вместо футорки вкручивается клапан, который торцом упирается в ниппель первой секции и глушит его, при этом выходное отверстие направлено строго вверх.
Клапан для нижнего подключения радиатора
Также возможно и одностороннее подключение, для которого необходима установка клапана с трубчатым зондом, предназначенным для оттока охлаждённого теплоносителя.
Термостатический узел для нижнего подключения радиатора
Описанный спектр арматуры может использоваться для большинства моделей секционных биметаллических и алюминиевых радиаторов. В разряде исключений оказываются разве что такие экзотические представители мира нагревательных приборов, как Rifar Monolit, не имеющие ниппелей, хотя в их модельном ряду присутствуют модификации для нижнего подвода труб. В сантехнической практике также встречаются примеры нижнего подключения чугунных радиаторов, хотя возможность такого монтажа всегда определяется индивидуально в зависимости от модели.
Неправильное подключение радиаторов отопления. Топ-7 ошибок при установке радиаторов
Конечно, монтаж батарей лучше поручить профессионалам, имеющим инженерное образование и знающим нюансы работы отопительных систем.
Но среди сантехников, которых рекомендует управляющая компания, и специалистов частных монтажных организаций иногда находятся недостаточно опытные люди.
Об ошибках, которые горе-мастера могут совершить при установке радиаторов, рассказывает Роман Шидлаускас — директор по развитию российского представительства итальянского производителя радиаторов Global Radiatori.
Начнем с того, что существует две разных системы: система горячего водоснабжения, из которой вода подается в краны, и система отопления, откуда вода подается в батареи.
На первый взгляд кажется, что все просто: чтобы батареи грели, нужна горячая вода. Так почему бы не подключить их к системе водоснабжения? К тому же в теории так можно продлить отопительный сезон, который заканчивается весной, а горячая вода есть почти круглый год. Но нет, так делать нельзя.
Все дело в том, что система водоснабжения работает в открытом цикле. Это значит, что вода в радиаторах будет постоянно обновляться, и каждый раз прибор будет взаимодействовать с новыми примесями и реагентами, которые могут в ней содержаться.
Вспомните, что может идти из крана, после длительного отключения воды? Коричневая жижа, которую даже сложно назвать водой и в которой чего только нет.
Именно эти примеси будут постепенно разрушать стенки батареи, что быстро приведет к образованию коррозии и протечкам.
Система отопления устроена иначе: в ней вода циркулирует в закрытом цикле, поэтому количество агрессивных примесей, которые могли попасть в теплоноситель, не растет. А значит риск протечки гораздо ниже.
Установка батарей до закрытия теплового контура здания
Если в квартире или доме затеяли масштабный ремонт с заменой окон, а дело происходит осенью, зимой или ранней весной, то батареи нельзя устанавливать, пока окна не застеклены.
Проблема в минусовых температурах — из-за них вода, которая сразу после монтажа пускается в радиаторы, может подмерзнуть. В результате давление в приборе увеличится, прокладки между секциями могут лопнуть и образуются протечки.
Так что не стоит торопиться с установкой радиаторов до остекления, а если речь идет о частном доме, то и до установки всех дверей.
Кстати, вот вам еще один ремонтный лайфхак: не снимайте пленку с батарей сразу, дождитесь окончания работ. Пленка защитит приборы от капель клея, краски и цемента и поможет сохранить их внешний вид.
Байпас и трубы одного диаметра
В большинстве российских домов используется стояковая система отопления. Это значит, что нужно обязательно устанавливать байпас — дополнительную трубу-переходник, которая располагается между стояком и батарей, соединяя трубы на вход и выход теплоносителя.
Таким образом, если в одной из квартир перекрываются радиаторы, в других они продолжают греть, потому что вода проходит через байпас.
Если доступ теплоносителя в прибор открыт, то большая часть воды проходит через радиатор, а часть — сразу уходит в байпас. Это получается благодаря тому, что сечение (внутренний диаметр) у байпаса меньше, чем у труб, ведущих к батарее.

Но видимо не все монтажники учили в школе физику, поэтому могут использовать байпас того же размера, что и трубы. В результате большая часть воды уходит через байпас вниз по стояку, а батареи не прогреваются.
Скрытие радиаторов экранами
Такое часто происходит по просьбе владельцев квартиры, по мнению которых приборы отопления не вписываются в дизайн интерьера.
Грамотный монтажник должен предупредить жильцов, что если замуровать батареи в стену, пусть даже с дверцами, а сверху закрыть их глухим подоконником, в квартире будет холодно.
Из-за недостаточной циркуляции теплый воздух не сможет проникнуть вглубь комнаты и будет греть только подоконник и дверцы, за которыми он скрывается.
Кстати, заставлять радиаторы мебелью тоже не рекомендуется. Шкафы или спинки диванов, сделанные из ДСП, из-за постоянного воздействия высоких температур быстро рассыхаются.
Подключение радиаторов отопления при двухтрубной системе. О способах подключения батарей
Начнем с того, что схема подключения бывает:
- односторонней;
- перекрестной;
- нижней.

Схемы подключения радиаторов отопления
По одностороннему варианту подключение производится, как правило, в городских квартирах, где используется центральное отопление. Здесь трубы подсоединяются лишь с одной стороны батареи. Преимущество схемы в том, что система может работать с максимальной номинальной мощностью, однако то, насколько эффективна теплоотдача, зависит от кол-ва секций батареи. Вода в данном случае не может доходить до удаленных от места подсоединения участков, что негативно влияет на эффективности всей отопительной системы. Данный эффект особенно заметен при использовании батареи, состоящей из 15-ти секций, потому при подключении многосекционных радиаторов предпочтение лучше отдавать другой схеме.

Адаптер для нижнего одностороннего подключения радиатора
В последние годы все большую популярность обретают биметаллические радиаторы, их можно подключать по диагональной (ее также называют перекрестной) схеме. Суть данной схемы в том, что подводка подсоединяется сверху, а отводка – снизу, но с другой стороны. При таком монтаже жидкость более равномерно распределяется по батарее, а значит, минимизируются потери ее мощности.

Диагональное подключение радиаторов отопления
На заметку! При использовании диагональной схемы необходимо учитывать то, как располагаются отводящая/подводящая трубы. Ведь если подвод сделать снизу, а отвод – сверху, то радиатор может потерять свыше 50% своей мощности.

Диагональная схема подключения радиаторов отопления при двухтрубной и однотрубной системе
Порой описанные выше схемы по тем или иными причинам не используются в помещении. Тогда остается только нижнее подключение , при котором образуется сквозной проход теплоносителя; очевидно, что до верхних секций радиатора жидкость в таком случае не доходит, из-за чего теплоотдача может снизиться на 15%. Тем не менее, данную схему нередко применяют в частных домах с индивидуальным отоплением. А теплоотдачу можно восполнить посредством распределительных трубок.
