Как соединить радиаторы отопления между собой. Зачем наращивать мощность отопительных батарей
- Как соединить радиаторы отопления между собой. Зачем наращивать мощность отопительных батарей
- Последовательное подключение радиаторов отопления. Как правильно подключаются радиаторы отопления при двухтрубной системе: разновидности
- Как соединить радиатор отопления с трубой. Варианты обвязки радиаторов отопления
- Как правильно собрать алюминиевый радиатор отопления. Как собрать алюминиевый радиатор
- Схемы подключения радиаторов отопления. Как правильно выбрать место
- Соединение секций алюминиевых радиаторов. Можно ли наращивать батареи в квартире
- Правильное подключение радиаторов отопления. О способах подключения батарей
Как соединить радиаторы отопления между собой. Зачем наращивать мощность отопительных батарей

Необходимость размышлений о том, как соединить радиаторы отопления между собой, может возникнуть только по одной причине – недостаток теплоотдачи. Иными словами, температурный режим не способствует комфортному проживанию в доме. Вполне возможно, что все это следствие неправильной работы котельного оборудования или засор системы, но это тема для отдельного разговора.
Мы же обсудим погрешности при расчете схемы отопления, ведь это частая причина его неудовлетворительной работы. Да что там говорить, когда не учитываются материал стен дома/квартиры, степень их теплоизоляции, высота потолка.
Сколько нужно секций?
Отопительные приборы из биметалла известны не только большим запасом прочности и отличными показателями теплоотдачи. Узлы с ниппельным соединением весьма удобны в плане подбора нужного количества секций. Для определения необходимого числа ребер существует простая формула: K=S(100/R), где
- K – количество секций.
- R – теплоотдача секции.
- S – площадь помещения.
Допустим, имеем радиаторы Global Mix К с теплоотдачей 145 Вт и комнату на 16 м². По формуле для оптимального обогрева помещения достаточно обогревательного прибора на 11 секций. После выполнения расчетов уже можно думать о том, как соединить биметаллические радиаторы между собой в единую систему.
Есть возможность поступить проще: посчитать количество ребер из расчета одна секция на 2 м². Оба способа вполне рабочие, но для комнат высотой до трех метров. Нельзя забывать и о поправочных коэффициентах:
- В помещениях с несколькими окнами отопительные приборы ставят под каждым оконным проемом. При этом общее количество секций разделяют на количество окон.
- Число секций для угловых помещений умножают на коэффициент 1,2.
- Для помещения, имеющего энергосберегающее остекление, при размещении батарей из биметалла применяется такой же коэффициент, но с понижающим знаком.
Важно! Максимальное число радиаторных секций – 16. Если по расчетам у вас большее количество, то батарею нужно разделить на две части.
Последовательное подключение радиаторов отопления. Как правильно подключаются радиаторы отопления при двухтрубной системе: разновидности
Различают две разновидности систем обогрева: одно- и двухтрубные. Чтобы определиться с оптимальным методом подсоединения батарей к обогревательному контуру, определимся с особенностями функционирования каждого вида.
Обогревание при однотрубной сети являет собой экономный вариант. Использование такой схемы позволяет существенно сэкономить на растратах при покупке материала и его монтаже. Подключение радиаторов отопления по однотрубной системе применяется в многоэтажках, а также частных домах. Принцип подсоединения такого вида обусловлен тем, что каждый радиатор соединён между собой последовательным способом, как показано ниже.

Из выхода крайнего радиатора контур возвращается к обогреваемому котлу или стояку многоэтажек. Подсоединение радиаторов к однотрубной системе имеет не только преимущество в виде экономии, но ещё и недостаток — отсутствие возможности регулировать теплоотдачу. Для этого можно установить один регулятор на первом теплообменнике, что позволит контролировать всю систему в целом. Ещё одним минусом такого типа системы обогрева является разница температур на начальном и конечном регистре. Батареи, которые подсоединены первыми к котлу, отдают больше тепла, нежели конечные теплообменники в контуре. Это отражается на температурных показателях в помещении, которая будет отличаться в зависимости от того, сколько регистров обогрева установлено в помещении. Если в небольшом частном доме последовательное подключение радиаторов функционирует эффективно, то в многоэтажном доме теплообменники на верхних этажах будут недополучать тепла.
Двухтрубная разводка является более приемлемым вариантом, так как она имеет две нити трубопровода, которые отходят от котла: подача и обратка. Каждый источник подключён к обеим трубам, поэтому такой вариант ещё называют параллельным способом. Преимущество данной системы сложно недооценить, так как каждый теплообменник получает теплоноситель с одинаковым показателем температуры. Это значит, что в доме или квартире каждая батарея будет иметь одинаковую температуру.

На каждом регистре обогрева устанавливается регулятор, при помощи которого контролируется температура в помещении. В отличие от однотрубной, двухтрубная конструкция имеет такой недостаток, как затраты на покупку труб. Для сооружения контура двухтрубного типа понадобится вдвое больше материалов, поэтому у владельцев частных домов возникает вопрос, что же лучше выбрать.

Как соединить радиатор отопления с трубой. Варианты обвязки радиаторов отопления
Установка радиаторов отопления подразумевает их подключение к трубопроводам. Есть три основных способа подключения:
В случае если радиаторы ставите и нижним подключением, выбора у вас нет. Каждый производитель жестко привязывает подачу и обратку и его рекомендации соблюдать надо неукоснительно, так как иначе тепла просто не получите. С боковым подключением вариантов больше (подробнее о них написано тут ).
Обвязка при одностороннем подключении
Одностороннее подключение чаще всего применяется в квартирах. Может быть двухтрубным или однотрубным (наиболее частый вариант). В квартирах все еще используют металлические трубы, потому рассмотрим вариант обвязки радиатора стальными трубами на сгонах. Кроме труб подходящего диаметра нужны два шаровых крана, два тройника и два сгона — детали с наружной резьбой на обоих концах.
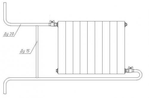
Боковое подключение с байпасом (однотрубная система)
Все это соединяется как показано на фото. При однотрубной системе байпас обязателен — он позволяет отключить радиатор не останавливая и не спуская систему. Кран на байпас ставить нельзя — им вы перекроете движение теплоносителя по стояку, чем вряд ли обрадуете соседей и, скорее всего, попадете под штраф.
Все резьбовые соединения уплотняются фум-лентой или льняной подмоткой, поверх которой наносится упаковочная паста. При вкручивании крана в коллектор радиатора много подмотки не требуется. Слишком больше ее количество может привести к появлению микротрещин и последующему разрушению. Это актуально практически для всех типов отопительных приборов, кроме чугунных. При установке всех остальных, пожалуйста, без фанатизма.
Вариант со сваркой
Если есть навыки/возможность использования сварки, можно байпас приварить. Именно так обычно выглядит обвязка радиаторов в квартирах.
При двухтрубной системе байпас не нужен. К верхнему входу подключается подача, к нижнему — обратка, краны, естественно, нужны.
Односторонняя обвязка при двухтрубной системе
При нижней разводке (трубы проложены по полу) такой тип подключения делают очень редко — получается неудобно и некрасиво, намного лучше в этом случае использовать диагональное подключение.
Обвязка при диагональном подключении
Установка радиаторов отопления с диагональным подключением — самый оптимальный вариант с точки зрения теплоотдачи. Она в этом случае самая высокая. При нижней разводке данный тип подключения реализуется несложно (пример на фото) — подача с оной стороны вверху, обратка с другой внизу.
Как правильно собрать алюминиевый радиатор отопления. Как собрать алюминиевый радиатор
Собираем в обратной последовательности. Секции располагаем на ровной поверхности (подходящих размеров стол или просто кладём на пол). Если радиатор не новый, откручиваем торцевую заглушку и кран Маевского.
Перед монтажом следует хорошо исследовать резьбы и пазы, они должны быть качественными, без сколов и перепадов. На монтируемой секции для пробы «прогоняем» резьбу вкручивая-выкручивая ниппель. Здесь нужно обратить внимание на то, что перед резьбой под слоем заводской краски может находится прокладка. Потрите слегка торец мелкой наждачной бумагой, если она там обнаружится, то её нужно аккуратно срезать ножом с острым лезвием.

Так алюминиевый радиатор выглядит в разрезе
Перед тем, как добавить секции радиатора отопления, обязательно зачищаем торцы до гладкой поверхности. Снимаем даже заводскую краску. На торцах радиаторов она не нужна, а только будет способствовать раннему проявлению течей. Под краску рано или поздно начнет просачиваться теплоноситель. В случае с незамерзающими жидкостями это произойдет очень скоро, если используется в системе вода, то не очень, но произойдет обязательно. И тогда между секциями начнет подтекать теплоноситель, хотя прокладки еще в идеальном состоянии. А все дело в том, что краска на торцах расслоилась или ее разъело, появились микротрещины. Так что обязательно зачищаем торцы до чистого металла, но используем мелкую наждачную бумагу, чтобы поверхность металла была гладкой и без царапин. Это гарантирует эксплуатации системы без течи в радиаторах.
Для лучшей герметичности торцы потом нужно обезжирить (можно бензином). Обезжиривают также и прокладки, но их нужно вымыть обычным мыльным раствором. Для системы, которая будет заполняться водой обезжиривание — необязательная процедура, а для систем, которые будет работать на антифризах ее проводить нужно. Антифризы имеют большую текучесть и просачиваются в самые мельчайшие поры. После того, как все высохнет начинаем собирать алюминиевые радиаторы.
Затем наживляем на пол-оборота обе ниппель-гайки. Сверху на ниппель одеваются термостойкие паронитовые (силиконовые) прокладки для герметизации стыков. Теперь берём секцию, которую нужно прикрутить и плотно приставляем к гайкам, проверяя плотность их прилегания. Далее, вставляем ключ в верхнее отверстие и закручиваем на 1-2 оборота. При этом пока не пользуемся рычагом. Крутим руками. Затем проделываем ту же операцию и в нижнем отверстии. Повторяем несколько раз, поочередно на несколько оборотов затягивая обе гайки.

Секции откручиваем постепенно, на один -два оборота гайки то снизу, то сверху
Закручиваем настолько, насколько хватит сил. Только после ручной затяжки можно пользоваться рычагом. Это нужно делать в два этапа на каждом ниппеле. Чрезмерных усилий лучше не прикладывать при финальной затяжке ниппелей, поскольку можно легко сорвать резьбу: алюминий мягкий металл, не забываем.
Если секция собрана полностью, на неиспользованные отверстия с одной стороны накручиваем заглушку, а с другой — кран «Маевского» (для выпуска воздуха из системы). Теперь вы знаете, как собрать секции радиатора отопления и при необходимости сможете дорастить несколько секций.
Схемы подключения радиаторов отопления. Как правильно выбрать место
Отопление в доме работает одновременно в двух направлениях:
- Прогрев помещения,
- Препятствование движению холодного воздуха.
Именно поэтому подключение радиаторов отопления в частном доме является достаточно сложным процессом, от правильности проведения которого будет зависеть комфорт в помещении.
Чаще всего батареи располагают под подоконником, для этого необходимо выдержать определенное расстояние:
- Между стеной и батареей – от трех до пяти сантиметров.
- Между полом и радиатором – не менее 10 сантиметров.
Кроме того, батарею не следует располагать полностью под подоконником – если он слишком широкий, нагревательный прибор следует выдвинуть вперед, используя для этого специальные крепления.
В случае, если жар очень сильный, рекомендуется поставить экран, распределяющий теплый воздух.
В коттеджах или домах наиболее часто батареи размещаются в двух вариантах – это однотрубный и двухтрубный метод подключения. Стоит рассмотреть каждый из них подробнее, чтобы подобрать для себя самый оптимальный.
Однотрубная схема
Фото 2 Однотрубная схема подключения
Способы подключения радиаторов отопления в частном доме включают в себя самый простой – это однотрубный метод, по которому все батареи соединяются между собой последовательно, используя одну трубу. Она идет от отопительного котла к первому радиатору, затем ко второму, третьему и так далее. Есть еще один вариант такого подключения – цельная труба, к которой радиаторы присоединяются с помощью стояков и трубы обратного движения (обратки). В первом варианте схемы нельзя заблокировать один из радиаторов, без остановки подачи тепла в другие. Преимущество метода – экономия материалов, минус – большая разница в нагревании первого радиатора от котла и радиатора в самой дальней комнате.
Двухтрубная схема

Фото 3 Двухтрубная схема подключения
Способ подключать радиаторы отопления в частном доме по такой схеме несколько сложнее. Система состоит из нескольких батарей отопления, которые между собой соединяются параллельным способом. При этом подведение горячей воды осуществляется по одной трубе, а обратка – по другой. Данный метод больше всего подходит для обогрева частного дома или коттеджа, так как степень прогрева в этом случае практически идентична во всех помещениях, ее можно регулировать, используя удобный терморегулятор.

Фото 4 Схема диагонального подключения батарей
При размещении радиаторов следует учитывать то, как была спроектирована отопительная система, в частности, если движение теплоносителя обеспечивает насос, проблем в данном случае гораздо меньше, но существует зависимость от энергоносителей.
Гораздо чаще встречается естественная циркуляция, то есть горячий теплоноситель, чаще всего это вода, поднимаясь вверх, выталкивает своей массой холодный. В этом случае отопительная система не зависит от энергоносителей, но проектировать подобную схему необходимо только специалистам, которые изучат общую протяженность труб, специфику, количество отопительных элементов, а также число секций в радиаторах.
Одним словом, если стоит цель обеспечить качественный обогрев дома, необходимо учитывать все особенности конкретного объекта, а проведение процесса доверить профессионалам.
Соединение секций алюминиевых радиаторов. Можно ли наращивать батареи в квартире
Соединение секций радиатора отопления вполне возможно в большинстве случаев. Наращивание делают тогда, когда температура воздуха в помещении слишком низкая из-за недостаточной теплоотдачи приборов отопления. Это является результатом неправильного расчета системы обогрева – с учетом площади комнат и с игнорированием высоты потолков, качества утепления, габаритов и количества оконных проемов, прочих факторов.
Важно! Снижение тепловой отдачи прибора связано с некорректной работой котла или образованием отложений на внутренних стенках радиаторов. Поэтому до начала работ нужно понять причину проблем и устранить ее.

Секционные радиаторы можно наращивать путем соединения дополнительных элементов между собой
Предварительно перед наращиванием отопления желательно посмотреть наглядное
Соединение возможно не с любыми биметаллическими приборами, это также нужно учитывать.
Существуют следующие варианты радиаторов:
- Секционные модели – самые популярные, технические параметры позволяют устанавливать их в многоквартирных современных домах с централизованной системой отопления. В состав приборов входит набор отдельных секций, поэтому сборка, наращивание сложностей не представляют.
- Литые – оптимальный выбор для установки в системах с нестабильными показателями давления. Недостатки – дороговизна, невозможность уменьшать или увеличивать количество секций.
То есть литые радиаторы отопления не наращивают, соединение секций и применение дополнительных элементов для них невозможно. Понимание, как увеличить размеры батареи отопления секционного типа, позволит создать в каждом помещении оптимальный микроклимат.
Правильное подключение радиаторов отопления. О способах подключения батарей
Начнем с того, что схема подключения бывает:
- односторонней;
- перекрестной;
- нижней.

Схемы подключения радиаторов отопления
По одностороннему варианту подключение производится, как правило, в городских квартирах, где используется центральное отопление. Здесь трубы подсоединяются лишь с одной стороны батареи. Преимущество схемы в том, что система может работать с максимальной номинальной мощностью, однако то, насколько эффективна теплоотдача, зависит от кол-ва секций батареи. Вода в данном случае не может доходить до удаленных от места подсоединения участков, что негативно влияет на эффективности всей отопительной системы. Данный эффект особенно заметен при использовании батареи, состоящей из 15-ти секций, потому при подключении многосекционных радиаторов предпочтение лучше отдавать другой схеме.

Адаптер для нижнего одностороннего подключения радиатора
В последние годы все большую популярность обретают биметаллические радиаторы, их можно подключать по диагональной (ее также называют перекрестной) схеме. Суть данной схемы в том, что подводка подсоединяется сверху, а отводка – снизу, но с другой стороны. При таком монтаже жидкость более равномерно распределяется по батарее, а значит, минимизируются потери ее мощности.

Диагональное подключение радиаторов отопления
На заметку! При использовании диагональной схемы необходимо учитывать то, как располагаются отводящая/подводящая трубы. Ведь если подвод сделать снизу, а отвод – сверху, то радиатор может потерять свыше 50% своей мощности.

Диагональная схема подключения радиаторов отопления при двухтрубной и однотрубной системе
Порой описанные выше схемы по тем или иными причинам не используются в помещении. Тогда остается только нижнее подключение , при котором образуется сквозной проход теплоносителя; очевидно, что до верхних секций радиатора жидкость в таком случае не доходит, из-за чего теплоотдача может снизиться на 15%. Тем не менее, данную схему нередко применяют в частных домах с индивидуальным отоплением. А теплоотдачу можно восполнить посредством распределительных трубок.
